27.66 m² 298,8 € 2 Zimmer

Lager im Erdgeschoss in der Josefstadt !

30.11.2025

Objekt Standort

A-1080 Wien

marker Entfernung sowie Fahrtzeit (PKW) zu deinem Standort berechnen
oder
Die Route konnte nicht ermittelt werden

Allgemeine Informationen

Objekt ID: 1096
  • Vergabeart
    Miete
  • monatliche kosten
    298,8 €
  • Kaution
    1200€
  • Nutzfläche
    27.66 m²
  • Zimmer
    2
  • Provision
    1.212,37 € inkl. 20% USt.

Ausstattung

  • Barrierefrei

Beschreibung

Lager im Erdgeschoss in der Josefstadt !

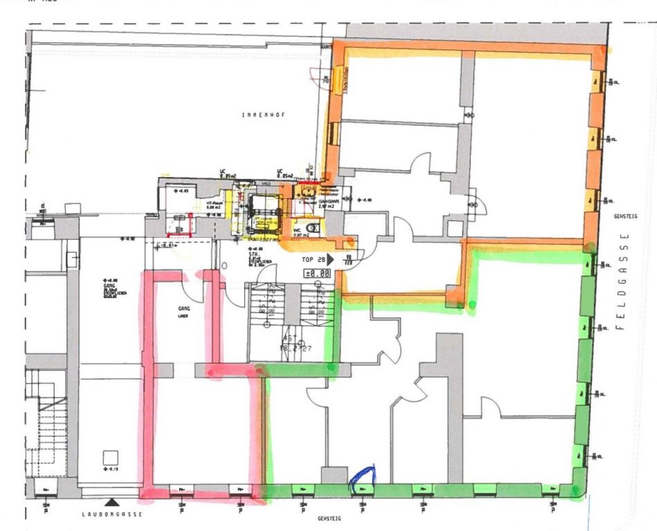
Im Herzen der Josefstadt gelangt ab sofort in einem denkmalgeschützten Haus dieses Lager im Erdgeschoss (ohne WC) zur unbefristeten Vermietung.

Siehe auf der beiliegenden Planskizze, die rosa markierte Fläche.

Ebenso ist eine Vermietung an Personen möglich, die ihre unternehmerischen Umsätze aus einer unechten Umsatzsteuerbefreiung gemäß § 6 (1) 27 UStG, lukrieren. Sollte dies nicht der Fall sein, wird die Umsatzsteuer in der Höhe von 20 % hinzugerechnet.

Raumaufteilung Top 2b:

- Vorraum
- ein weiterer Raum


Umgebung/Infrastruktur:

- Perfekte Anbindung an den öffentlichen Verkehr.
- In unmittelbarer Nähe befinden sich zahlreiche Geschäfte des täglichen Bedarfs, Restaurants, und Kaffeehäuser.
- Zu Fuß ist der Hamerlingpark in 2 Minuten erreichbar. 


Öffentliche Verkehrsmittel:

- U-Bahnlinie 6, Station: Josefstädter Straße
- Straßenbahnlinien: 2, 12, 5, 43, 44
- Buslinie: 13A

Laut Energieausweis vom 3.2.2025:

weist dieser einen Heizwärmebedarf von 161,8 kWh/m² pro Jahr auf.

 

 
Wir weisen darauf hin, dass zwischen dem Vermittler und dem zu vermittelnden Dritten ein familiäres oder wirtschaftliches Naheverhältnis besteht.
Der Vermittler ist als Doppelmakler tätig.Infrastruktur / EntfernungenGesundheitArzt <500mApotheke <500mKlinik <500mKrankenhaus <500mKinder & SchulenSchule <500mKindergarten <500mUniversität <1.000mHöhere Schule <500mNahversorgungSupermarkt <500mBäckerei <500mEinkaufszentrum <1.500mSonstigeGeldautomat <500mBank <500mPost <500mPolizei <500mVerkehrBus <500mU-Bahn <500mStraßenbahn <500mBahnhof <500mAutobahnanschluss <3.500mAngaben Entfernung Luftlinie / Quelle: OpenStreetMap
Agent Name

Andrea Jäger

IMMOBILIENJÄGER

office@immobilienjaeger.at

Energie/Heizung

Heizungsart: Fernwärme

Befeuerung: Fernwärme

HWB (kWh/m²/Jahr): 161.8

Anbieter


Anfragen

Ergebnisse werden geladen ...