223.9 m² 4.583,33 €

223 m2 Geschäftslokal unbefristet zu vermieten!

30.11.2025

Objekt Standort

A-1090 Wien

marker Entfernung sowie Fahrtzeit (PKW) zu deinem Standort berechnen
oder
Die Route konnte nicht ermittelt werden

Allgemeine Informationen

Objekt ID: 5520
  • Vergabeart
    Miete
  • monatliche kosten
    4.583,33 €
  • Kaution
    40000€
  • Nutzfläche
    223.9 m²
  • Provision
    3 Bruttomonatsmieten zzgl. 20% USt.

Ausstattung

  • Fahrstuhl

Beschreibung

223 m2 Geschäftslokal unbefristet zu vermieten!

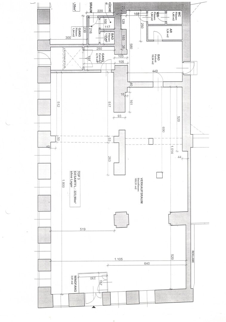
Vermietet wird ein 223,9 m2 großes Geschäftslokal im Erdgeschoß mit einem zirka 150 m2 großen Lager in sehr guter zentraler Lage im 9. Wiener Bezirk in unmittelbarer Nähe zum Lichtensteinpark. Das Objekt kann für sämtliche Branchen ausser Gastronomie benützt werden. 

Das Objekt teilt sich wie folgt auf:

- ein zirka 190 m2 großer, heller straßenseitiger Verkaufsraum
- zirka 30 m2 Neben und Nassräume mit zwei WC's
- ein zirka 80 m2 großes Lager im Souterain, Zugang mit Lastenaufzug sowohl vom Geschäftslokal als auch straßenseitig

 

Das Objekt wird durch eine Gaszentralheizung beheizt. 

Verfügbar ab 1. Dezember 2025 
Miete inkl. BK und UST: € 5.500,-
unbefristeter Mietvertrag
Kaution: € 40.000,- 
Provision: 3 BMM Provision + 20 % UST

Für Besichtigungstermine bzw. weitere Informationen kontaktieren Sie bitte Herrn Uyar unter 0699 / 171 05 918 oder per Email uyar@immobilienquartier.at 

Mieter gesucht?  www.immobilienquartier.at/vermieten

 Infrastruktur / EntfernungenGesundheitArzt <500mApotheke <500mKlinik <500mKrankenhaus <1.000mKinder & SchulenSchule <500mKindergarten <500mUniversität <500mHöhere Schule <500mNahversorgungSupermarkt <500mBäckerei <500mEinkaufszentrum <2.500mSonstigeGeldautomat <500mBank <500mPost <500mPolizei <500mVerkehrBus <500mU-Bahn <500mStraßenbahn <500mBahnhof <500mAutobahnanschluss <2.000mAngaben Entfernung Luftlinie / Quelle: OpenStreetMap
Agent Name

Ömer Ömer

Immobilienquartier iQ OG

uyar@immobilienquartier.at

Energie/Heizung

Heizungsart: Zentralheizung

Befeuerung: Gas

HWB (kWh/m²/Jahr): 130

HWB Energieklasse: C

Anbieter


Anfragen

Ergebnisse werden geladen ...