35.44 m² 696,65 € 1 Zimmer

Frequentiertes Geschäftslokal-Büro, Nähe Lidlpark

13.12.2025

Objekt Standort

A-1170 Wien

marker Entfernung sowie Fahrtzeit (PKW) zu deinem Standort berechnen
oder
Die Route konnte nicht ermittelt werden

Allgemeine Informationen

Objekt ID: 5111
  • Vergabeart
    Miete
  • monatliche kosten
    696,65 €
  • Nutzfläche
    35.44 m²
  • Zimmer
    1
  • Provision
    3 Bruttomonatsmieten zzgl. 20% USt.

Beschreibung

Frequentiertes Geschäftslokal-Büro, Nähe Lidlpark

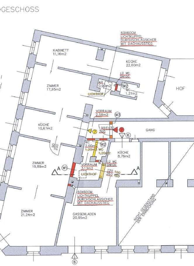
Zur Vermietung gelangt ein Lokal in einer gut frequentierten Lage im 17. Wiener Bezirk, dieses man ausschließlich als Geschäftslokal oder Büro mieten kann.


Das Objekt, welches im Erdgeschoss liegt, umfasst insgesamt ca. 35,24 m². Über die gesamte Höhe und Breite der Frontseite ist eine Auslage vorhanden. Sie betreten das Lokal gassenseitig und gelangen sofort in den größten Raum mit ca. 20,95 m². Hier befinden sich sowohl ein Fenster zur Straßenseite.  als auch eine 60x60 cm Lichtkuppel mit durchschlagsicherem Glas. Im hinteren Bereich des Lokals befindet sich eine Küche mit ca. 8,76 m² mit anschließender Türe in das Stiegenhaus. Des Weiteren gibt es zusätzlich einen kleinen Vorraum mit einer Lichtkuppel durch diese man zur Toilette gelangt.
Eine UID-Nummer ist als Nachweis erforderlich.


Überzeugen Sie sich selbst von diesem lukrativen Objekt.
Für Besichtigungen und nähere Informationen stehen wir Ihnen gerne zur Verfügung!


Christian Kiedl
national - Tel: 0664 336 0836
international - Tel: +43 664 336 0836
e-mail: kiedl@lifestyle-properties.at


Wir weisen darauf hin, dass zwischen dem Vermittler und dem zu vermittelnden Dritten ein familiäres oder wirtschaftliches Naheverhältnis besteht.


Der Vermittler ist als Doppelmakler tätig.


Infrastruktur / Entfernungen

Gesundheit
Arzt <500m
Apotheke <500m
Klinik <1.000m
Krankenhaus <1.500m
Kinder & Schulen
Schule <500m
Kindergarten <500m
Universität <2.000m
Höhere Schule <1.500m
Nahversorgung
Supermarkt <500m
Bäckerei <500m
Einkaufszentrum <1.000m
Sonstige
Geldautomat <500m
Bank <500m
Post <500m
Polizei <500m
Verkehr
Bus <500m
U-Bahn <500m
Straßenbahn <500m
Bahnhof <1.000m
Autobahnanschluss <4.000m
Angaben Entfernung Luftlinie / Quelle: OpenStreetMap

Agent Name

Christian Kiedl

Lifestyle Properties

kiedl@lifestyle-properties.at

Energie/Heizung

Heizungsart: Etagenheizung

Befeuerung: Gas

HWB (kWh/m²/Jahr): 132.1

HWB Energieklasse: D

fGEE: 2.29

fGEE Energieklasse: D

Anbieter


Anfragen

Ergebnisse werden geladen ...