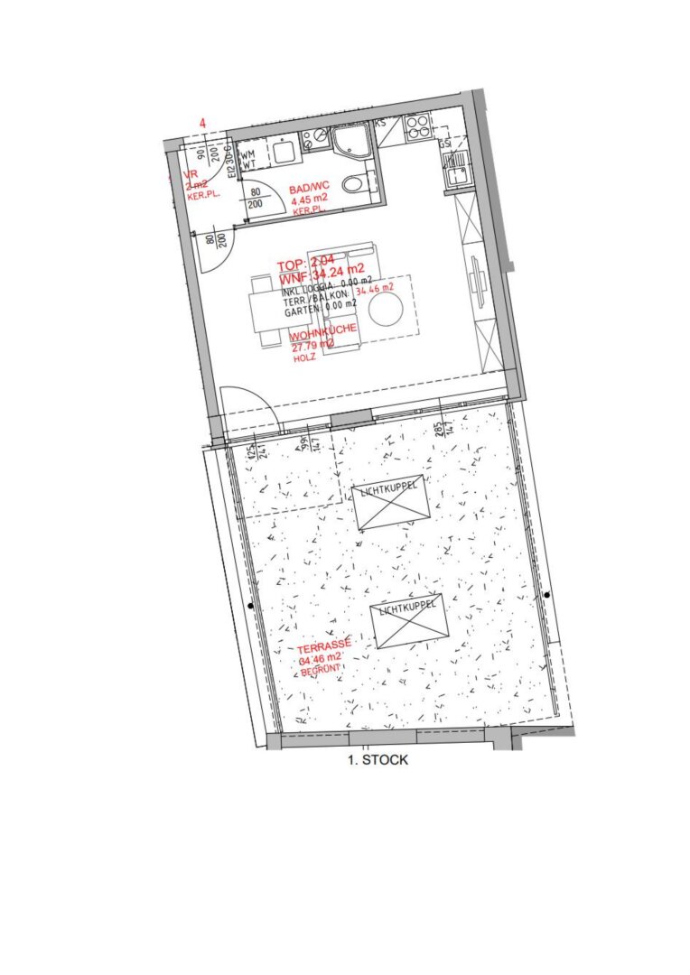
34.24 m² 499,09 € 1 Zimmer

34,24 m² | ca. 37 m² Terrasse | 1. OG | Bezug nach Vereinbarung

19.01.2026

Objekt Standort

Domgasse , A-3100 St. Pölten

marker Entfernung sowie Fahrtzeit (PKW) zu deinem Standort berechnen
oder
Die Route konnte nicht ermittelt werden

Allgemeine Informationen

Objekt ID: 5773
  • Vergabeart
    Miete
  • monatliche kosten
    499,09 €
  • Wohnfläche
    34.24 m²
  • Zimmer
    1
  • Provision
    Gemäß Erstauftraggeberprinzip bezahlt der Abgeber die Provision.

Ausstattung

  • Fahrstuhl
  • Barrierefrei

Freiflächen

  • Terrasse

Beschreibung

34,24 m² | ca. 37 m² Terrasse | 1. OG | Bezug nach Vereinbarung

34,24 m² Wohnfläche + ca. 37 m² Terrasse 
1. OG - Bezug nach Vereinbarung  


Raumaufteilung: Vorzimmer, Einzelwohnraum mit Kochnische, Terrasse, Badezimmer mit Dusche und Badewanne und WC


Miete gesamt: € 549,- inkl. BK/USt.


Kaution: 4 BMM


Wir weisen darauf hin, dass zwischen dem Vermittler und dem zu vermittelnden Dritten ein familiäres oder wirtschaftliches Naheverhältnis besteht.


Der Immobilienmakler erklärt, dass er – entgegen dem in der Immobilienwirtschaft üblichen Geschäftsgebrauch des Doppelmaklers – einseitig nur für den Vermieter tätig ist.


Infrastruktur / Entfernungen

Gesundheit
Arzt <250m
Apotheke <250m
Klinik <750m
Krankenhaus <1.250m
Kinder & Schulen
Schule <250m
Kindergarten <250m
Universität <1.000m
Höhere Schule <250m
Nahversorgung
Supermarkt <250m
Bäckerei <250m
Einkaufszentrum <250m
Sonstige
Bank <250m
Geldautomat <250m
Polizei <250m
Post <250m
Verkehr
Bus <250m
Bahnhof <500m
Autobahnanschluss <3.000m
Flughafen <6.000m
Angaben Entfernung Luftlinie / Quelle: OpenStreetMap

IMMOCENTRAL Immobilientreuhand GmbH
Agent Name

Marion Kleebinder

IMMOCENTRAL Immobilientreuhand GmbH

m.kleebinder@immocentral.at

Energie/Heizung

Heizungsart: Zentralheizung

Befeuerung: Fernwärme

HWB (kWh/m²/Jahr): 77.4

HWB Energieklasse: C

fGEE: 1.21

fGEE Energieklasse: B

Anbieter


Anfragen

Ergebnisse werden geladen ...