46.75 m² 590 € 2 Zimmer

46,75 m² | Sofortbezug | Durchdachter Grundriss

07.04.2026

Objekt Standort

Wiener Strasse , A-3100 St. Pölten

marker Entfernung sowie Fahrtzeit (PKW) zu deinem Standort berechnen
oder
Die Route konnte nicht ermittelt werden

Allgemeine Informationen

Objekt ID: 5864
  • Vergabeart
    Miete
  • monatliche kosten
    590 €
  • Wohnfläche
    46.75 m²
  • Zimmer
    2
  • Provision
    Gemäß Erstauftraggeberprinzip bezahlt der Abgeber die Provision.

Ausstattung

  • Fahrstuhl
  • Abstellraum

Beschreibung

46,75 m² | Sofortbezug | Durchdachter Grundriss

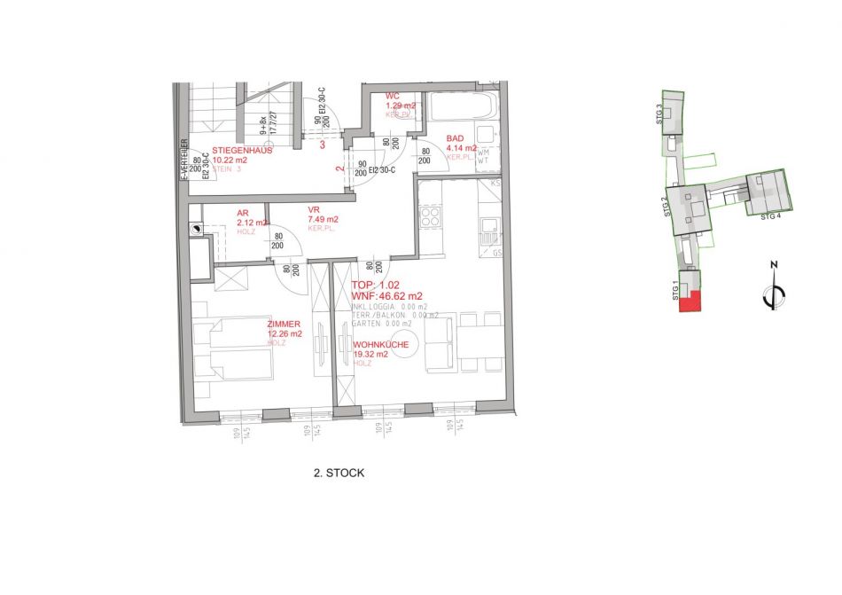
46,75 m² Wohnfläche 
2. OG ohne Lift – Sofortbezug 


Raumaufteilung: Vorraum, Wohnküche, Schlafzimmer, Bad, WC, Abstellraum


Miete gesamt: € 649,- inkl. BK/USt.


Kaution: 4 BMM 


Wir weisen darauf hin, dass zwischen dem Vermittler und dem zu vermittelnden Dritten ein familiäres oder wirtschaftliches Naheverhältnis besteht.


Der Immobilienmakler erklärt, dass er – entgegen dem in der Immobilienwirtschaft üblichen Geschäftsgebrauch des Doppelmaklers – einseitig nur für den Vermieter tätig ist.


Infrastruktur / Entfernungen

Gesundheit
Arzt <250m
Apotheke <250m
Klinik <1.000m
Krankenhaus <1.250m
Kinder & Schulen
Schule <250m
Kindergarten <250m
Universität <1.250m
Höhere Schule <250m
Nahversorgung
Supermarkt <250m
Bäckerei <250m
Einkaufszentrum <250m
Sonstige
Bank <250m
Geldautomat <250m
Polizei <250m
Post <250m
Verkehr
Bus <250m
Bahnhof <500m
Autobahnanschluss <3.000m
Flughafen <5.750m
Angaben Entfernung Luftlinie / Quelle: OpenStreetMap

IMMOCENTRAL Immobilientreuhand GmbH
Agent Name

Marion Kleebinder

IMMOCENTRAL Immobilientreuhand GmbH

m.kleebinder@immocentral.at

Energie/Heizung

Heizungsart: Zentralheizung

Befeuerung: Fernwärme

HWB (kWh/m²/Jahr): 60.1

HWB Energieklasse: C

fGEE: 1.12

fGEE Energieklasse: C

Anbieter


Anfragen

Ergebnisse werden geladen ...