936 m² 56.160 €

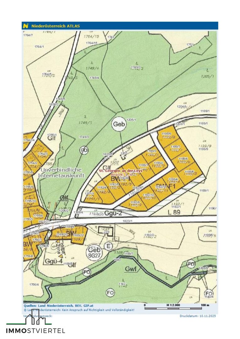
Baugrundstücke am Ortrand von St. Georgen an der Leys in Aussichtslage!

10.02.2026

Objekt Standort

A-3282 St. Georgen an der Leys

marker Entfernung sowie Fahrtzeit (PKW) zu deinem Standort berechnen
oder
Die Route konnte nicht ermittelt werden

Allgemeine Informationen

Objekt ID: 178102594
  • Vergabeart
    Kauf
  • Kaufpreis
    56.160 €
  • Grundfläche
    936 m²
  • Provision
    2.021,76 € inkl. 20% USt.

Beschreibung

Baugrundstücke am Ortrand von St. Georgen an der Leys in Aussichtslage!

* Sie suchen den perfekten Baugrund für Ihr neues zu Hause 

* Sie legen dabei viel Wert auf ruhige Lage und Wohnqualität?

* dann wäre diese Bauparzelle die Richtige für Ihr Bauvorhaben

* Sonnige Südhangaussichtslage

* Hebesatz/Aufschließungskosten: € 520,-

* Flächenwidmung "Bauland Wohngebiet" mit 936 m²

* kein Bebauungsplan

* Bebauungsfrist binnen 6 Jahren ab Kaufdatum zur Baubewilligung

* vorrangig zur Hauptwohnsitzbegründung 

* Vorkaufsrecht der Gemeinde 

* Anschlüsse wie Wasser, Kanal, Leerverrohrung Internet - NÖGIG und Strom sind an der Grundgrenze vorhanden

* Bodenanalyse vom Land NÖ erhalten Sie bei konkreten Interesse auf Anfrage

* Aufschließungskosten sind vom Käufer gesondert zu bezahlen

* Für Fragen und eine Besichtigung stehe ich Ihnen gerne unter 0676/5418421 zur Verfügung.
Wir weisen darauf hin, dass zwischen dem Vermittler und dem zu vermittelnden Dritten ein familiäres oder wirtschaftliches Naheverhältnis besteht.
Der Vermittler ist als Doppelmakler tätig.Infrastruktur / EntfernungenGesundheitArzt <4.500mKrankenhaus <7.000mApotheke <7.000mKlinik <9.000mKinder & SchulenSchule <6.000mKindergarten <4.500mNahversorgungSupermarkt <1.500mBäckerei <7.000mEinkaufszentrum <7.000mSonstigeBank <1.500mGeldautomat <1.500mPost <1.500mPolizei <7.000mVerkehrBus <1.000mBahnhof <7.000mAngaben Entfernung Luftlinie / Quelle: OpenStreetMap
Agent Name

Martin Öllinger

IMMOSTVIERTEL IMMOBILIEN Martin Öllinger

m.oellinger@immostviertel.at

Anbieter


Anfragen

Ergebnisse werden geladen ...