253 m² 3.782,35 €

Großzügige Bürofläche in Toplage von Schwaz

29.10.2025

Objekt Standort

A-6130 Schwaz

marker Entfernung sowie Fahrtzeit (PKW) zu deinem Standort berechnen
oder
Die Route konnte nicht ermittelt werden

Allgemeine Informationen

Objekt ID: 2335
  • Vergabeart
    Miete
  • monatliche kosten
    3.782,35 €
  • Nutzfläche
    253 m²
  • Provision
    3 Bruttomonatsmieten zzgl. 20% USt.

Beschreibung

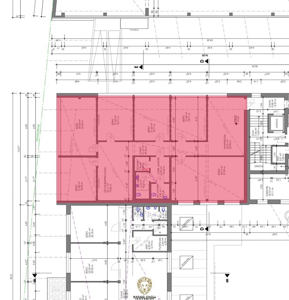
Großzügige Bürofläche in Toplage von Schwaz

In Schwaz in der Münchnerstraße 48 direkt an der Anschlussstelle an die A12 gelangt diese ca. 253 qm große Bürofläche zur Vermietung.


Die Einheit befindet sich im 1. OG und ist mittels Lift erschlossen.


Die Büros sind sehr geschmackvoll und nach dem neuesten Stand der Technik eingerichtet.


Raumhöhe: ca. 3m


Die Büroflächen stehen ab Jänner 2026 zur Verfügung.


- Bezüglich Parkplätzen ist mit den anderen Mietern folgende Regelung getroffen: „Der Mieter kann die vorhandenen Parkplätze nach Möglichkeiten mitbenützen,   wobei ausdrücklich festgehalten wird, dass dieser Parkplatz auch von         denjenigen Kunden benützt werden kann, welche die Geschäfts-, Verkaufs-, und Büroräumlichkeiten der übrigen Baulichkeiten aufsuchen.“


Die angeführten Angaben und Informationen dienen lediglich als unverbindliche Vorinformation und bleiben somit ohne jede Gewähr.



Infrastruktur / Entfernungen

Gesundheit
Arzt <500m
Apotheke <500m
Klinik <1.000m
Krankenhaus <1.500m
Kinder & Schulen
Schule <500m
Kindergarten <500m
Nahversorgung
Supermarkt <500m
Bäckerei <500m
Einkaufszentrum <500m
Sonstige
Bank <500m
Geldautomat <1.000m
Post <1.000m
Polizei <500m
Verkehr
Bus <500m
Bahnhof <1.000m
Autobahnanschluss <1.000m
Angaben Entfernung Luftlinie / Quelle: OpenStreetMap

Agent Name

Harald Knoll

Harald Knoll Immobilien

office@immobilien-knoll.at

Anbieter


Anfragen

Ergebnisse werden geladen ...