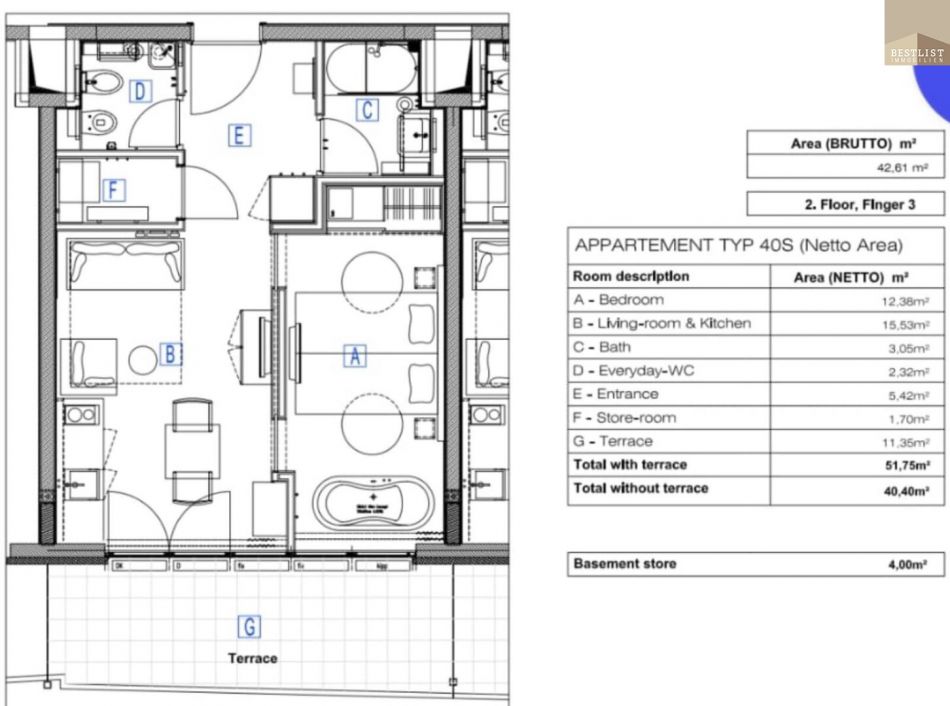
40.4 m²
460.000 €
2 Zimmer
Gemütliche Ferienwohnung in Petrcane (Kroatien)
09.08.2025
Objekt Standort
Punta Skala , A-23231 Petrčane
oder
Allgemeine Informationen
Objekt ID: 310969-
VergabeartKauf
-
Kaufpreis460.000 €
-
Wohnfläche40.4 m²
-
Zimmer2
-
Provision3% des Kaufpreises zzgl. 20% USt.
Ausstattung
-
Swimming-Pool
-
Abstellraum
-
Parkplatz
Freiflächen
-
Terrasse
Beschreibung
Gemütliche Ferienwohnung in Petrcane (Kroatien)
Charmante Ferienwohnung in Punta Skala – Erholung an der dalmatinischen KüsteZum Verkauf gelangt diese liebevoll gestaltete Ferienwohnung in der renommierten Ferienanlage Punta Skala, nur wenige Schritte vom kristallklaren Meer entfernt. Die gepflegte Anlage befindet sich im idyllischen Küstenort Petrčane, unweit von Zadar, und bietet eine perfekte Kombination aus Ruhe und mediterranem Flair.
Die Wohnung liegt in einem modernisierten Gebäude innerhalb der Anlage und eignet sich ideal für zwei Personen. Sie verfügt über ein Schlafzimmer, ein modernes Badezimmer sowie einen offenen Wohn-Essbereich mit gut ausgestatteter Küchenzeile. Der Balkon lädt zum Verweilen ein – genießen Sie hier die frische Meeresluft und den Blick ins Grüne.
Wohnfläche: ca. 40,40 m²
Zimmer: 2
Balkon: ca. 11,35 m² Balkon mit traumhaften Meerblick
Lage: wenige Gehminuten zum Meer
Nutzung: ideal als Ferienresidenz oder zur touristischen Vermietung
Lage und Infrastruktur
Die exklusive Immobilie befindet sich in traumhafter Lage auf der Halbinsel Punta Skala, in der beliebten Ortschaft Petrčane, nur ca. 12 Kilometer nordwestlich von Zadar – einer der schönsten Städte Dalmatiens. Die Region ist bekannt für ihre hohe Lebensqualität, kristallklares Wasser, gepflegte Strände und mediterranes Klima.
Punta Skala zählt zu den begehrtesten Lagen an der kroatischen Adriaküste. Die Immobilie liegt in unmittelbarer Nähe zum Meer und bietet spektakuläre Ausblicke auf die Adria und vorgelagerte Inseln. Die Umgebung ist geprägt von luxuriösen Resorts, hochwertigen Villen und gepflegten Grünflächen, die Ruhe, Privatsphäre und einen hohen Erholungswert garantieren.
Infrastruktur und Anbindung:
Strandzugang: nur wenige Gehminuten entfernt
Yachthafen: in der Nähe, ideal für Bootsbesitzer
Restaurants, Cafés und Einkaufsmöglichkeiten: im Umkreis von ca. 1 km
Wellness- und Sporteinrichtungen: in den nahegelegenen Resorts (z. B. Falkensteiner Resort Punta Skala)
Öffentlicher Verkehr: gute Anbindung an Zadar mit Bus oder Taxi
Flughafen Zadar (ZAD): ca. 25 km entfernt, mit internationalen Verbindungen
Autobahnanbindung: über die A1 (Zagreb – Split) bequem erreichbar
Der Energieausweis wurde beauftragt und wird in Kürze nachgereicht.
Rechtlicher Hinweis:
BESTLIST Immobilien ist eine Marke der Friends Immobilien List GmbH.
Die Vermarktung erfolgt im Namen und auf Rechnung der Friends Immobilien List GmbH,
FN 293044y, 2500 Baden, Vöslauer Straße 2, 2352 Gumpoldskirchen, Wiener Straße 11.
Wir weisen darauf hin, dass zwischen dem Vermittler und dem zu vermittelnden Dritten ein familiäres oder wirtschaftliches Naheverhältnis besteht.
Der Vermittler ist als Doppelmakler tätig.

Ulrike List
Friends Immobilien Dienstleistungs GmbH & Co KG
anfrage@bestlist.immo