115 m² 349.000 € 5 Zimmer

Belagsfertige Doppelhaushälfte mit 5 Zimmern und einer Terrasse in Naarn zu kaufen!

19.01.2026

Objekt Standort

A-4331 Naarn

marker Entfernung sowie Fahrtzeit (PKW) zu deinem Standort berechnen
oder
Die Route konnte nicht ermittelt werden

Allgemeine Informationen

Objekt ID: 5950/4414
  • Vergabeart
    Kauf
  • Kaufpreis
    349.000 €
  • Wohnfläche
    115 m²
  • Zimmer
    5
  • Provision
    3% des Kaufpreises zzgl. 20% USt.

Ausstattung

  • Rolladen
  • Abstellraum

Freiflächen

  • Terrasse

Beschreibung

Belagsfertige Doppelhaushälfte mit 5 Zimmern und einer Terrasse in Naarn zu kaufen!

Belagsfertige Doppelhaushälfte mit 5 Zimmern und einer Terrasse in Naarn zu kaufen!

Träumen Sie von einem modernen Zuhause in ruhiger und familienfreundlicher Lage? Diese exklusive Doppelhaushälfte in Naarn erfüllt höchste Ansprüche an Wohnkomfort und Lebensqualität. Auf rund 115 m² Wohnfläche überzeugt die Immobilie mit einer durchdachten Raumaufteilung und einem harmonischen Wohnkonzept, das perfekt auf die Bedürfnisse einer Familie abgestimmt ist.

Der Rohbau wurde von einem Baumeister errichtet, die Fertigstellung der Heizung ist bereits vorgesehen. Hochwertige Fenster sowie die Eingangstür von Internorm unterstreichen den gehobenen Ausstattungsstandard.

Im Inneren erwartet Sie ein lichtdurchfluteter Wohnbereich mit über 33 m², der durch seine offene Gestaltung ein besonders großzügiges und einladendes Wohngefühl vermittelt. Das Obergeschoss beherbergt ein ruhiges Schlafzimmer, zwei helle Kinderzimmer sowie einen separaten Schrankraum. Ein modernes Badezimmer und ein praktischer Abstellraum komplettieren dieses attraktive Wohnangebot. Die Doppelhaushälfte wird belagsfertig verkauft. Die Betriebskostenangaben sind ca. Werte, da es sich um einen Neubau handelt; die tatsächlichen Kosten sind verbrauchsabhängig. 

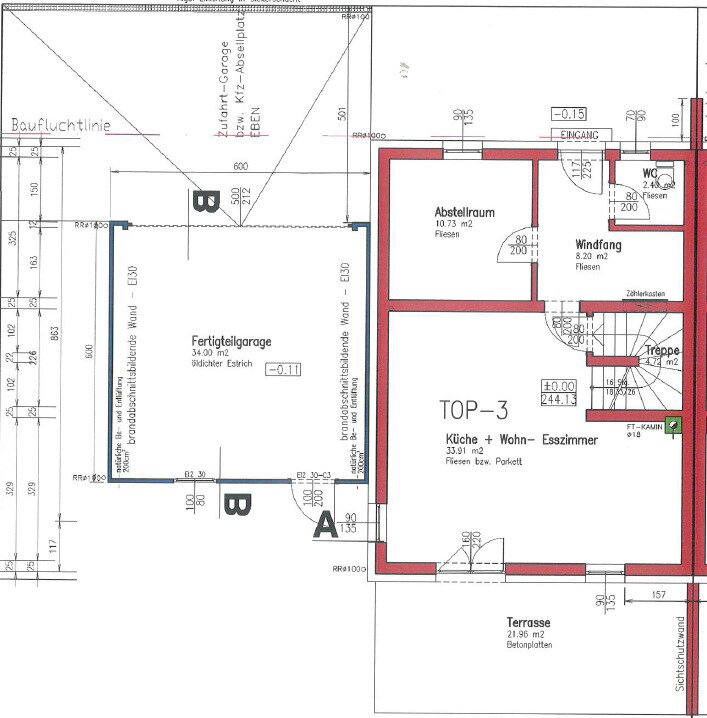
Raumaufteilung

EG: Abstellraum, Windfang, WC, Küche+Wohn-Esszimmer, Terrasse
OG: Bad mit WC, Schrankraum, Schlafzimmer, Galerie, zwei Kinderzimmer 

Lage

Die Doppelhaushälfte liegt in der beliebten und ruhigen Gemeinde Naarn, umgeben von viel Grün und Natur. Hier genießen Sie eine idyllische Atmosphäre, die Entspannung und Erholung bietet. Gleichzeitig sind benachbarte Städte schnell erreichbar. 

Sie haben Interesse?
Ansehen lohnt sich - wir freuen uns über Ihr Interesse! Für weitere Fragen stehen wir Ihnen gerne unter der Rufnummer 0664 398 34 62 zur Verfügung.
Auf Wunsch stellen wir gerne einen Kontakt zu Finanzierungsexperten her.

Rechtliche Informationen
Bitte beachten Sie, dass aufgrund unserer ALLEINBEAUFTRAGUNG und Nachweispflicht für den Abgeber ausschließlich Anfragen unter Angabe Ihrer VOLLSTÄNDIGEN DATEN bearbeiten können (NAME, ANSCHRIFT, E-Mail, Telefonnummer).
Explizit weisen wir darauf hin, dass alle Angaben nach bestem Wissen erstellt wurden. Irrtümer, Druckfehler und Änderungen vorbehalten. Für Auskünfte u. Angaben, die uns vonseiten der Eigentümer und Dritten zur Verfügung gestellt wurden, können wir keine Haftung übernehmen. Besichtigungen u. Beratungen erfolgen kostenlos, lediglich im Falle einer erfolgreichen Vermittlung ist die gesetzliche Provision zur Zahlung fällig.
Der Vermittler ist als Doppelmakler tätig.Infrastruktur / EntfernungenGesundheitArzt <500mApotheke <2.000mKlinik <3.000mKinder & SchulenSchule <500mKindergarten <500mNahversorgungSupermarkt <500mBäckerei <500mEinkaufszentrum <2.500mSonstigeBank <500mGeldautomat <500mPost <2.000mPolizei <3.000mVerkehrBus <500mBahnhof <2.500mAutobahnanschluss <7.500mAngaben Entfernung Luftlinie / Quelle: OpenStreetMap
Agent Name

Aldin Tahic

Thomas Girkinger Immobilien GmbH

tahic@girkinger-immobilien.at

Energie/Heizung

Befeuerung:

HWB (kWh/m²/Jahr): 39

HWB Energieklasse: B

fGEE: 0.7

fGEE Energieklasse: A+

Anbieter


Anfragen

Ergebnisse werden geladen ...