92.49 m²
1.010,86 €
3 Zimmer
MARIAZELL - STADTWOHNUNG MIT FERNBLICK
22.09.2025
Objekt Standort
Pater-Heinrich-Abel-Platz , A-8630 Mariazell
oder
Allgemeine Informationen
Objekt ID: 2625-
VergabeartMiete
-
monatliche kosten1.010,86 €
-
Wohnfläche92.49 m²
-
Zimmer3
-
ProvisionGemäß Erstauftraggeberprinzip bezahlt der Abgeber die Provision.
Ausstattung
-
Einbauküche
-
Fahrstuhl
-
Abstellraum
Beschreibung
MARIAZELL - STADTWOHNUNG MIT FERNBLICK
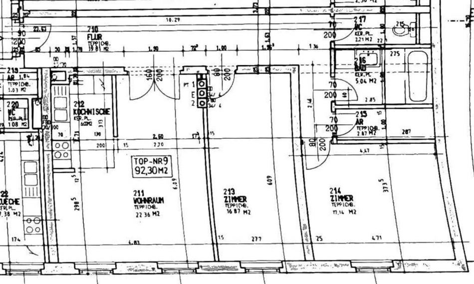
FAMILIENWOHNUNG MIT BLICK AUF DIE MARIAZELLER BASILIKAZur Vermietung kommt eine gepflegte 3-Zimmer-Altbaumiete in einem wunderschönen Stadthaus in Mariazell mit sensationellem Panoramablick und bietet eine ideale Kombination aus Lage, Raumaufteilung und Wohnkomfort.
Die Wohnung befindet sich im 2. Liftstock und ist optimal für eine Familie ausgerichtet. Die sonnigen Räume und die gute Raumaufteilung (alle 3 Zimmer sind zentral begehbar) werden Sie sofort überzeugen - und spätestens beim Blick aus den Fenstern mit dem Blick auf die Mariazeller Basilika und die Bergkulisse, sind Sie überzeugt von dieser Wohnung!
Raumaufteilung:
- Wohnzimmer mit integrierter Einbauküche
- 2 getrennt begehbare Schlafzimmer
- Wannenbad mit Waschmaschinen-Anschluss
- extra Toilette
- Abstellraum
- zentrales Vorzimmer
Ausstattungsmerkmale:
Fernwärme, 2fach verglaste Holzfenster, Holzinnentüren, Laminatböden, vollausgestattete Einbauküche mit Geschirrspüler, E-Herd mit Backrohr, Mikrowelle, Kühl- und Gefrierschrank
Fahrradraum, Kellerabteil, Waschküche im Haus
Sonstiges:
Die Wohnung kann ab sofort angemietet werden; bei einem Zweitwohnsitz ist eine Zweitwohnsitzabgabe an die Gemeinde Mariazell zu bezahlen;
Fernwärme: für die Heizung wird ein monatlicher Akontobetrag in Höhe von EUR 63,- eingehoben und einmal jährlich mit dem tatsächlichen Verbrauch gegengerechnet.
Sollten Sie Interesse an diesem Wohnungsangebot haben, freue ich mich auf Ihre Anfrage und stehe Ihnen für Rückfragen und die Vereinbarung eines Besichtigungstermins gerne zur Verfügung.
Alle Daten stammen vom Eigentümer, der Baubehörde oder der Verwaltung und wurden mit Sorgfalt erhoben. Für die Richtigkeit und Vollständigkeit kann keine Haftung übernommen werden. Es wird darauf hingewiesen, dass sich der Interessent vor Abschluss des Rechtsgeschäftes aus eigener Wahrnehmung d.h. Besichtigung vom Objekt zu überzeugen hat. Zahlenangaben können gerundet oder geschätzt sein. Das Anbot ist freibleibend und unverbindlich. Irrtümer und Änderungen vorbehalten. Nachgezeichnete Pläne können von den Originalplänen abweichen und sind eventuell nicht maßstabgetreu. Verträge, die nicht in der jeweiligen Muttersprache verfasst sind, sind vom Mieter/Käufer selbst in die jeweilige Sprache zu übersetzen. Gerichtsstand: Wien
Datenschutz-Grundverordnung, 25. Mai 2018: Ihre personenbezogenen Kundendaten werden von uns zum Zwecke der Vertragserfüllung erfasst, gespeichert und verarbeitet.
Der Immobilienmakler erklärt, dass er – entgegen dem in der Immobilienwirtschaft üblichen Geschäftsgebrauch des Doppelmaklers – einseitig nur für den Vermieter tätig ist.Infrastruktur / EntfernungenGesundheitArzt <250mKrankenhaus <2.250mApotheke <250mKinder & SchulenSchule <250mKindergarten <250mNahversorgungSupermarkt <250mBäckerei <500mSonstigeGeldautomat <250mBank <250mPost <500mPolizei <5.000mVerkehrBus <500mStraßenbahn <1.000mBahnhof <1.500mFlughafen <2.500mAngaben Entfernung Luftlinie / Quelle: OpenStreetMap

Doris Rotschopf
iMMobilien ROT - Doris Rotschopf
rotschopf@immobilien-rot.atEnergie/Heizung
Heizungsart: Fernwärme Zentralheizung
Befeuerung: Fernwärme
HWB (kWh/m²/Jahr): 153.6
HWB Energieklasse: E
fGEE: 2.53
fGEE Energieklasse: E