101.27 m² 1.350 € 4 Zimmer

DOPPELHAUSHÄLFTE im GRÜNEN - MIETE oder KAUF!

29.01.2025

Objekt Standort

A-2203 Manhartsbrunn

marker Entfernung sowie Fahrtzeit (PKW) zu deinem Standort berechnen
oder
Die Route konnte nicht ermittelt werden

Allgemeine Informationen

Objekt ID: 25524
  • Vergabeart
    Miete
  • monatliche kosten
    1.350 €
  • Wohnfläche
    101.27 m²
  • Nutzfläche
    156.45 m²
  • Grundfläche
    184.5 m²
  • Zimmer
    4
  • Provision
    Gemäß Erstauftraggeberprinzip bezahlt der Abgeber die Provision.

Ausstattung

  • Rolladen
  • Abstellraum
  • Carport

Freiflächen

  • Garten
  • Terrasse

Beschreibung

DOPPELHAUSHÄLFTE im GRÜNEN - MIETE oder KAUF!

Zum Haus

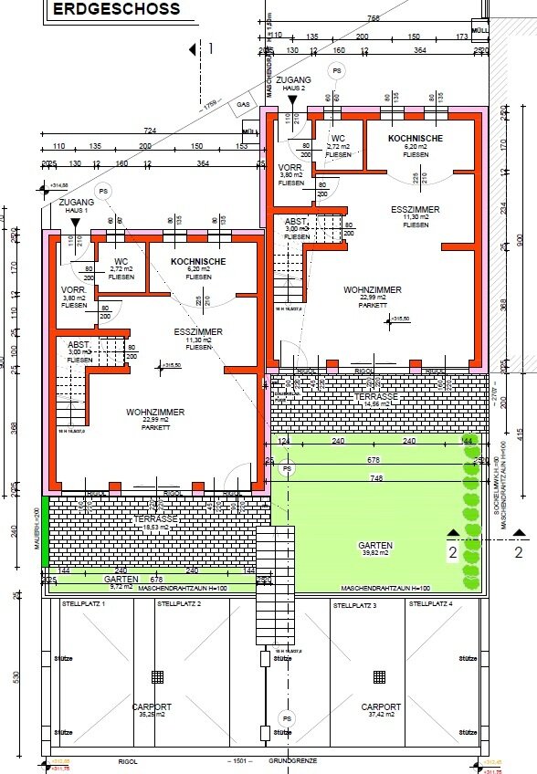
Die Doppelhaushälfte liegen in Manhartsbrunn, eine Katastralgemeinde von Großebersdorf und ist optimal nach Süden ausgerichtet. Die Nutzfläche des Hauses beträgt ca. 156,00 m². Zum Haus gehören zwei Carport-KFZ-Stellplätze mit ca. 30,50 m².  

Das Haus wurde sorgfältig gepflegt und ist in einem neuwertigen Zustand, sodass Sie direkt einziehen und sich wohlfühlen können. 

Ein Highlight dieser Doppelhaushälfte ist der Garten, der zum Entspannen und Genießen einlädt. Hier können Sie Ihre eigenen Gemüse- und Kräuterbeete anlegen oder einfach nur die Sonne und den Grünblick genießen. Eine Terrasse bietet Platz für gemütliche Grillabende mit Freunden und Familie. Zwei überdachte Stellplätze unterm Haus und zwei Stellplätze vorm Haus sorgen für praktische Parkmöglichkeiten.

Die Fenster (Niedrigenergieschallschutzfenster, 3-fach verglast), die Terrassentüre und die Eingangstüre sind aus PVC und einbruchshemmend ausgeführt. 

Das Erdgeschoss ist offen gestaltet - offener Küchen-, Ess- und Wohnbereich. Der Technikraum befindet sich im Erdgeschoss beim Eingangsbereich. Vier weitere Zimmer befinden sich im Obergeschoss, wo sich auch das Badezimmer mit Fenster und ein extra WC (auch mit Fenster),  befinden. 

Die Nassräume sind mit, Badewanne, Dusche, Waschbecken, Spiegel- und Unteraschrank und Waschmaschinenanschluss ausgestattet. Am Boden und an den Wänden wurden große Fliesen verlegt. Die Bodenbeläge im Wohnbereich und in den Zimmern sind aus hochwertigem Laminat. Die weißen Innentüren und Türstöcke sind ebenfalls eingebaut. 

Für die Energieversorgung sorgt ein Gas-Brennwertgerät, welches für die Fußbodenheizung und die Warmwasserzubereitung zuständig ist. Ein ca. 300 Liter Warmwasserspeicher ist vorhanden und steht im Technikraum des Erdgeschosses.

Die Terrasse ist vom Wohnraum aus begehbar. Die Terrasse haben eine Größe von ca. 19,00 m². 

Zum jeweiligen Haus gehören zwei betonierte Carports. Genau so gibt es KFZ-Abstellplätze beim Hauseingang.

 

Mietpreisaufstellung





Nettomietzins


EUR


1.350,00




ca. Betriebskosten-Akonto


EUR


118,18




Zwischensumme


EUR


1.468,18




+ 10% USt.


EUR


146,82




MONATSMIETE       


EUR


1.615,00





 

Der Finanzierungsbeitrag beträgt EUR 20.000,00 und verringert sich jährlich um 1%.

Der Mietvertrag wird auf 36 Monaten, mit Verlängerungsmöglichkeit, abgeschlossen.

 

Anschlüsse

Folgende Anschlüsse sind gegeben: Kanal, Wasser, Strom, Gas, SAT-Kabeln wurden in jedem Zimmer verlegt, Telefon und Internet sind möglich.

 

Lage

Die Ableitung des Ortsnamens von der Katastralgemeinde Manhartsbrunn steht nicht fest, da der Ort früher (wie auch noch jetzt im Volksmunde) "Matzbrunn" hieß. Man kann ihn mit dem Personennamen Magdalena in Verbindung bringen, aber auch ebenso wie den Manhartsberg auf einen Meginhard oder Meinhard zurückführen.

Erst im Jahre 1411 haben wir die erste Nennung des Ortes, der zur Pfarre Harmannsdorf und zur Herrschaft Ulrichskirchen gehörte. 1684 soll der Ort, laut Pfarrchronik, den größten Teil seiner Einwohner verloren haben; 1718 wurde eine Kapelle errichtet, der 1723 Messlizenz erteilt wird, 1784 eine Lokalkaplanei errichtet, 1787 Kirche und Pfarrhof erbaut. Die Franzosen besetzten und plünderten 1810 den Ort.

1836 und 1855 herrschten Choleraseuchen. Aufgrund der waldreichen und schönen Landschaft, sowie der ruhigen Verkehrslage ist Manhartsbrunn als Erholungs– und Ausflugsgebiet besonders geeignet. Dazu stehen Ihnen ein Kinderspielplatz, ein Sportplatz, Waldwege, ein Hotel mit Tennisplätzen und ein Gasthaus zur Verfügung.

Die Marktgemeinde Großebersdorf liegt etwa 10 Kilometer nördlich von Wien in der Nähe der Brünner Bundesstraße. Bereits im Jahre 1130 wurde der Ort erstmals urkundlich erwähnt. Am 22.7.1866 war der Ort Eibesbrunn, der zu Großebersdorf gehört für einen Tag Mittelpunkt der Geschichte, als im Haus Nr. 33 (heute Brünner Straße 1) der Waffenstillstand zwischen Österreich und Preußen geschlossen wurde. Um die Jahrhundertwende war der Ort unter dem Namen "Heudörfl" bekannt und diente den Fuhrwerken als Heustation.

Großebersdorf liegt an der Grenze zu den Ebenen des Marchfeldes und dem Hügelland des Weinviertels in einer Meereshöhe von 172 m und hat eine Fläche von 368 ha.

Der Weinbau prägt den Ort, sehenswert ist die Kellergasse. Trotz der Nähe zur Bundeshauptstadt Wien hat sich der Ort seinen ländlichen Charakter erhalten.

 

Verkehrsanbindung

Eine Busstation ist ca. 110 m entfernt. Der Lokalbahnhof ist ca. 3,47 km entfernt.

Mit dem Auto benötigt man ca. 18 Minuten bis zur Wiener Stadtgrenze (ca. 21,00 km). Auf der Autobahnanschlussstelle S1 ist man in ca. 8 Minuten (ca. 6,20 km).

 

Übergabe

Die Übergabe erfolgt nach Kaufvertragsunterfertigung

 

Weitere Details

„Die dargestellten Möbel und Einrichtungsgegenstände dienen der besseren räumlichen Vorstellung und wurden mittels KI visualisiert. Sie sind nicht Bestandteil der tatsächlichen Ausstattung der Immobilie.“

 

Rechtliche Info

Als Immobilientreuhänder sind wir einerseits Ihnen als Interessent, als auch dem Abgeber als Verkäufer bzw. Vermieter verpflichtet. Immobiliengeschäfte sind keine kleinen Geschäfte des täglichen Lebens, deshalb sind wir einerseits gegenüber dem Abgeber, als auch gegenüber Behörden verpflichtet bei Ungereimtheiten Auskunft geben zu können, an welche Personen Immobilien angeboten wurden.

Auch die europäischen Verbraucherrechte wurden vereinheitlicht, somit wird seit 13. Juni 2014 ebenso mit Ihnen als Interessent ein schriftlicher Maklervertrag abgeschlossen (früher geschah dies mündlich & es entfällt das Ausfüllen von "Besichtigungsscheinen"). Der Verband der Österreichischen Immobilienwirtschaft hat hierzu ebenso eine detaillierte Informationsseite eingerichtet: http://www.ovi.at/recht/verbraucherrechte-vrug/

Wir benötigen daher um Ihnen detaillierte Unterlagen zukommen zu lassen Ihren Namen und Ihre Wohnadresse (Straße, Hausnummer - wenn vorhanden: Stiege & Tür -  PLZ und Ort).
Wir weisen darauf hin, dass zwischen dem Vermittler und dem zu vermittelnden Dritten ein familiäres oder wirtschaftliches Naheverhältnis besteht.
Der Immobilienmakler erklärt, dass er – entgegen dem in der Immobilienwirtschaft üblichen Geschäftsgebrauch des Doppelmaklers – einseitig nur für den Vermieter tätig ist.Infrastruktur / EntfernungenGesundheitArzt <4.000mApotheke <6.500mKrankenhaus <9.000mKlinik <6.500mKinder & SchulenSchule <3.500mKindergarten <500mNahversorgungSupermarkt <3.000mBäckerei <500mEinkaufszentrum <5.500mSonstigeBank <3.000mGeldautomat <3.000mPost <3.000mPolizei <6.000mVerkehrBus <500mAutobahnanschluss <4.500mBahnhof <3.500mStraßenbahn <10.000mAngaben Entfernung Luftlinie / Quelle: OpenStreetMap
Agent Name

Michael Fath

WERTIMMOBILIEN Consulting KG

michael.fath@wertimmobilien.co.at

Energie/Heizung

Befeuerung: Gas

HWB (kWh/m²/Jahr): 45.7

HWB Energieklasse: B

fGEE: 0.6

fGEE Energieklasse: A+

Anbieter


Anfragen

Ergebnisse werden geladen ...