104.78 m² 649.000 € 4 Zimmer

*** Rarität in Kritzendorf *** Familienhit in Grünruhelage

30.11.2025

Objekt Standort

A-3420 Kritzendorf

marker Entfernung sowie Fahrtzeit (PKW) zu deinem Standort berechnen
oder
Die Route konnte nicht ermittelt werden

Allgemeine Informationen

Objekt ID: 4746
  • Vergabeart
    Kauf
  • Kaufpreis
    649.000 €
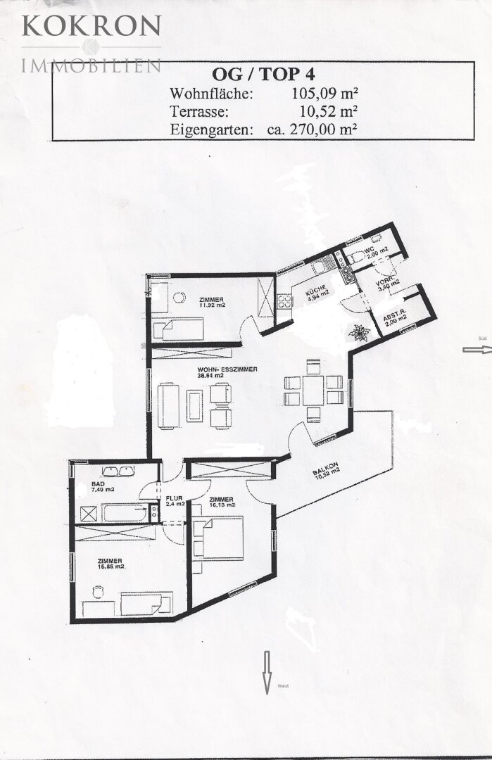
  • Wohnfläche
    104.78 m²
  • Grundfläche
    2695 m²
  • Zimmer
    4
  • Provision
    23.364,00 € inkl. 20% USt.

Ausstattung

  • Einbauküche
  • Rolladen
  • Parkplatz

Freiflächen

  • Balkon

Beschreibung

*** Rarität in Kritzendorf *** Familienhit in Grünruhelage

Ihre Traumwohnung wartet auf Sie!


Sie brauchen viel Platz für Ihre Familie? Sie benötigen eine gute Verkehrsanbindung, möchten aber trotzdem im Grünen wohnen? Sie schätzen Ruhe und nette Nachbarschaft?


Dann ist diese moderne 4-Zimmer-Eigentumswohnung genau das richtige für Sie und Ihre Familie. In herrlicher Grün-Ruhelage in einer Villengegend steht dieses Mehrparteienhaus mit insgesamt nur 6 Wohneinheiten. Jeder dieser Wohnungen ist ein Garten zur Eigennutzung zugeteilt, "Ihr" Garten bietet Ihnen 270m², eine südseitige Terrasse und ein geräumiges Gartenhaus mit Sommerküche und überdachter Terrasse.   


Die Wohnung selbst überzeugt mit einem großen Wohnbereich mit direktem Ausgang auf den Süd-West-Balkon, einer offenen Küche3 (Schlaf)zimmern davon 1 Master-Bedroom mit Ausgang auf den Balkon. Ein großzügiges Tageslichtbad mit Badewanne, Dusche, WC ist zentral bei den Schlafräumen platziert, ein Gäste-WC befindet sich direkt beim Eingang. Jeder Wohnung ist ein eigenes Kellerabteil zugeteilt, außerdem gibt es noch einen Gemeinschaftskeller und einen Fahrradraum.  


Hat diese Immobilie Ihr Interesse geweckt?


Dann Klicken Sie auf den "Anfrage-Button" in dieser Anzeige und ich schicke Ihnen anschließend das detaillierte Exposé. Lediglich Anfragen mit vollständigem Namen, einer Telefonnummer sowie einer E-Mail-Adresse können unsererseits bearbeitet werden.


Besichtigungen


Ich stehe Ihnen auch zu Tagesrandzeiten oder am Wochenende zur Verfügung. Die von uns bereitgestellten Informationen beruhen auf Angaben des Abgebers. Für die Richtigkeit und Vollständigkeit der Angaben kann keine Gewähr bzw. Haftung übernommen werden. Änderungen vorbehalten! Fotos: © Felix Killmeyer (www.photographiekillmeyer.com)


Wir weisen darauf hin, dass zwischen dem Vermittler und dem zu vermittelnden Dritten ein familiäres oder wirtschaftliches Naheverhältnis besteht.


Der Vermittler ist als Doppelmakler tätig.


Infrastruktur / Entfernungen

Gesundheit
Arzt <3.000m
Apotheke <3.000m
Krankenhaus <4.500m
Klinik <1.000m
Kinder & Schulen
Schule <2.000m
Kindergarten <2.000m
Universität <3.000m
Nahversorgung
Supermarkt <1.500m
Bäckerei <3.500m
Einkaufszentrum <8.500m
Sonstige
Bank <1.500m
Geldautomat <4.000m
Post <3.000m
Polizei <3.500m
Verkehr
Bus <1.000m
Autobahnanschluss <3.500m
Bahnhof <1.500m
Straßenbahn <9.500m
Angaben Entfernung Luftlinie / Quelle: OpenStreetMap

Kokron Immobilien e.U.
Agent Name

Mele Bell

Kokron Immobilien e.U.

bell@kokron-immobilien.at

Energie/Heizung

Heizungsart: Zentralheizung

Befeuerung: Öl

HWB (kWh/m²/Jahr): 62.3

HWB Energieklasse: C

fGEE: 1.23

fGEE Energieklasse: C

Anbieter


Anfragen

Ergebnisse werden geladen ...