48.69 m²
471,27 €
2 Zimmer
Mietwohnung mit möblierter Küche ++ Knittelfeld, Kameokastraße ++
02.09.2025
Objekt Standort
A-8720 Knittelfeld
oder
Allgemeine Informationen
Objekt ID: 6349/1495-
VergabeartMiete
-
monatliche kosten471,27 €
-
Kaution1581.3€
-
Wohnfläche48.69 m²
-
Grundfläche48.69 m²
-
Zimmer2
-
ProvisionGemäß Erstauftraggeberprinzip bezahlt der Abgeber die Provision.
Ausstattung
-
Einbauküche
-
Carport
Beschreibung
Mietwohnung mit möblierter Küche ++ Knittelfeld, Kameokastraße ++
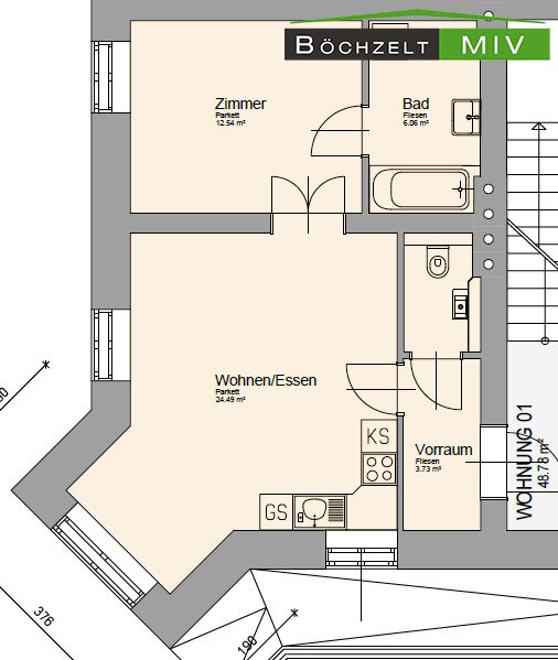
Zur Vermietung gelangt eine Mietwohnung mit ca. 48,69 m² in bester Lage in Knittelfeld in der Kameokastraße. Die Wohnung ist ideal für Singles oder Paare.Die gemütliche 2 - Zimmer Wohnung befindet sich im Erdgeschoss und teilt sich wie folgt auf: Vorraum, Badezimmer mit Badewanne, separates WC, möblierte Küche mit Wohn-/Essbereich und 1 Schlafzimmer. Auch ein Kellerabteil ist der Wohnung zugewiesen und steht Ihnen zum Verstauen Ihrer Gegenstände zur Verfügung. Für Ihr Fahrzeug ist ebenfalls gesorgt mit einem Carport das der Wohnung zugewiesen ist.
Überzeugen Sie sich selbst und vereinbaren Sie gerne einen unverbindlichen Besichtigungstermin unter 03512/822 37!
Kriterien für eine Wohnungsvergabe - Förderung Land Steiermark:
Es handelt sich hierbei um eine vom Land Steiermark geförderte Mietwohnung. Die potentiellen Mieter müssen daher die vom Land vorgegebenen Kriterien erfüllen:
• Österreichische Staatsbürgerschaft, EU-Bürger oder diesen gleichgestellten Personen bzw. Aufenthalt länger als 5 Jahre in Österreich mit aufrechter Arbeitsbewilligung
• Das jährliche Familieneinkommen darf bei einer Person € 40.800,-- nicht überschreiten. Dieser Betrag erhöht sich für die zweite im Haushalt lebende nahestehende Person um 50%, für jede weitere derartige Person um € 5.400,--.
• Die geförderte Wohnung muss als Hauptwohnsitz bewohnt werden
Der Immobilienmakler erklärt, dass er – entgegen dem in der Immobilienwirtschaft üblichen Geschäftsgebrauch des Doppelmaklers – einseitig nur für den Vermieter tätig ist.Infrastruktur / EntfernungenGesundheitArzt <500mApotheke <1.000mKrankenhaus <1.000mKinder & SchulenSchule <1.000mKindergarten <500mNahversorgungSupermarkt <500mBäckerei <1.000mEinkaufszentrum <5.500mSonstigeBank <500mGeldautomat <500mPost <1.000mPolizei <1.500mVerkehrBus <500mAutobahnanschluss <1.500mBahnhof <2.000mFlughafen <6.000mAngaben Entfernung Luftlinie / Quelle: OpenStreetMap

Böchzelt Immobilien GmbH
Böchzelt Immobilien GmbH
office@boechzelt-immobilien.atEnergie/Heizung
Heizungsart: Zentralheizung
Befeuerung: Fernwärme
HWB (kWh/m²/Jahr): 91.89
HWB Energieklasse: C
fGEE: 8.34
fGEE Energieklasse: G