238 m² 2.490.000 €

Exklusive Alleinlage am Salvenberg – Wohnliegenschaft in gesicherter Freilandumgebung

29.12.2025

Objekt Standort

A-6305 Itter

marker Entfernung sowie Fahrtzeit (PKW) zu deinem Standort berechnen
oder
Die Route konnte nicht ermittelt werden

Allgemeine Informationen

Objekt ID: 5390/1063
  • Vergabeart
    Kauf
  • Kaufpreis
    2.490.000 €
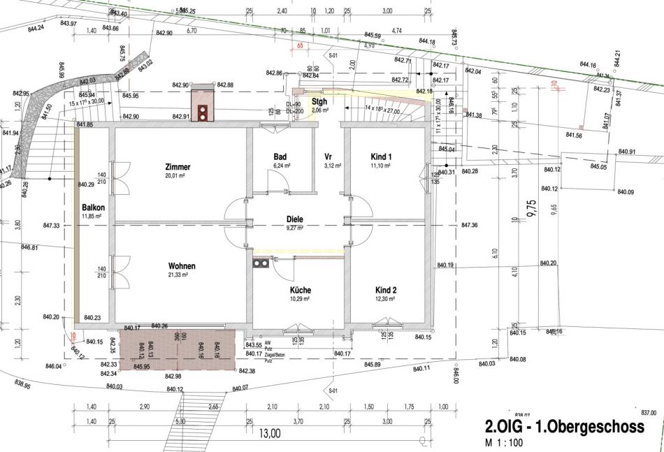
  • Wohnfläche
    238 m²
  • Nutzfläche
    324.17 m²
  • Grundfläche
    2695 m²
  • Provision
    3% des Kaufpreises zzgl. 20% USt.

Ausstattung

  • Möbeliert/Teilmöbeliert

Freiflächen

  • Balkon

Beschreibung

Exklusive Alleinlage am Salvenberg – Wohnliegenschaft in gesicherter Freilandumgebung

Nur bei Zefi Immobilien - Exklusive Alleinlage am Salvenberg – Wohnliegenschaft in gesicherter Freilandumgebung


Diese außergewöhnliche Liegenschaft am Salvenberg in Itter stellt eine seltene Besonderheit des Tiroler Immobilienmarktes dar: eine baulich genehmigte Wohnliegenschaft in absoluter Alleinlage, vollständig umgeben von Freilandwidmung. Die umliegenden Flächen sind dauerhaft von Bebauung ausgeschlossen, wodurch Privatsphäre, Ruhe und unverbaubare Aussicht rechtlich und faktisch gesichert sind.


Die Liegenschaft befindet sich in idyllischer Waldrandlage an einem sonnigen Südhang und eröffnet einen freien Blick über das Tal bis in die umliegende Bergwelt. Die erhöhte Lage garantiert eine optimale Besonnung über den gesamten Tagesverlauf und verleiht dem Anwesen einen ausgeprägten Rückzugs- und Erholungscharakter. Die Zufahrt endet auf Eigengrund, wodurch kein Durchzugsverkehr besteht und die Ruhelage zusätzlich unterstrichen wird.


Das Gebäudeensemble ist funktional klar gegliedert und entspricht der genehmigten Planung laut Einreichunterlagen. Das Haupthaus bildet den zentralen Wohnbereich der Liegenschaft. Ein separat situiertes Nebenhaus mit integrierter Garage schafft eine bewusste Trennung von Wohnen und Nebenfunktionen und erhöht die Nutzungsflexibilität des Gesamtobjekts.


Zwischen den beiden Baukörpern liegt der zentral angeordnete Poolbereich, der als verbindendes Element fungiert und einen geschützten, privaten Außenraum schafft. Die Anordnung der Gebäude sowie die Topografie des Grundstücks ermöglichen klare Blickachsen ohne vis-à-vis und gewährleisten ein hohes Maß an Ungestörtheit.


Die Grundrissgestaltung ist konsequent auf Aussicht und Sonne ausgerichtet. Wohn- und Aufenthaltsräume öffnen sich nach Süden und Südwesten zu den Terrassen- und Balkonflächen und schaffen fließende Übergänge zwischen Innen- und Außenraum. Der großzügige Garten fügt sich harmonisch in die natürliche Umgebung ein und bietet vielfältige Nutzungsmöglichkeiten, ohne den offenen Charakter der Landschaft zu beeinträchtigen.


Trotz der abgeschiedenen Lage ist die Anbindung an die Infrastruktur des Tals gegeben. Das Ortszentrum von Itter, Nahversorger, Schulen sowie öffentliche Verkehrsmittel sind in kurzer Fahrzeit erreichbar, ebenso die Anbindung an das überregionale Verkehrsnetz.


Diese Liegenschaft richtet sich an Käufer, die Wert auf absolute Ruhe, langfristig gesicherte Alleinlage und eine außergewöhnliche Verbindung aus Natur, Architektur und Privatsphäre legen. Aufgrund der Seltenheit dieser Lagequalität eignet sich das Objekt sowohl als exklusiver privater Rückzugsort als auch als nachhaltige, werthaltige Anlageimmobilie.

Noch nichts gefunden? Wir informieren Sie über geeignete Immobilienangebote noch vor allen anderen.
Legen Sie jetzt Ihren individuellen Suchagenten unter folgendem Link an. Wir schicken Ihnen passende Immobilien exklusiv vorab zu.
Suchagent anlegen - https://zefi-immobilien.service.immo/registrieren/de


Wir weisen darauf hin, dass zwischen dem Vermittler und dem zu vermittelnden Dritten ein familiäres oder wirtschaftliches Naheverhältnis besteht.


Der Vermittler ist als Doppelmakler tätig.


Infrastruktur / Entfernungen

Gesundheit
Arzt <1.500m
Apotheke <2.000m
Klinik <8.000m
Kinder & Schulen
Schule <1.500m
Kindergarten <1.500m
Höhere Schule <5.500m
Nahversorgung
Supermarkt <1.500m
Bäckerei <2.000m
Einkaufszentrum <7.000m
Sonstige
Bank <2.000m
Geldautomat <2.000m
Post <1.500m
Polizei <2.000m
Verkehr
Bus <1.500m
Autobahnanschluss <7.000m
Bahnhof <1.500m
Angaben Entfernung Luftlinie / Quelle: OpenStreetMap

Agent Name

Klaudio Zefi

Zefi Immobilien GmbH

klaudio@zefi.at

Energie/Heizung

Heizungsart: Ofen

Befeuerung: Öl

Anbieter


Anfragen

Ergebnisse werden geladen ...