79.85 m² 435.000 € 3 Zimmer

Wohnbauförderung möglich! 3-Zimmer-Neubauwohnung Top W 3 mit Terrasse & Garten sowie 1 TG-Platz *RESERVIERT*

14.03.2026

Objekt Standort

A-6425 Haiming

marker Entfernung sowie Fahrtzeit (PKW) zu deinem Standort berechnen
oder
Die Route konnte nicht ermittelt werden

Allgemeine Informationen

Objekt ID: 6566/2461
  • Vergabeart
    Kauf
  • Kaufpreis
    435.000 €
  • Wohnfläche
    79.85 m²
  • Zimmer
    3
  • Provision
    3% des Kaufpreises zzgl. 20% USt.

Ausstattung

  • Fahrstuhl
  • Garage
  • Abstellraum

Freiflächen

  • Garten
  • Terrasse

Beschreibung

Wohnbauförderung möglich! 3-Zimmer-Neubauwohnung Top W 3 mit Terrasse & Garten sowie 1 TG-Platz *RESERVIERT*

Modernes Wohnen trifft auf alpinen Charme – in zentraler Lage von Haiming entsteht ein hochwertiges Wohnprojekt mit durchdachter Architektur, nachhaltiger Bauweise und schönem Bergblick.
 

Highlights auf einen Blick:



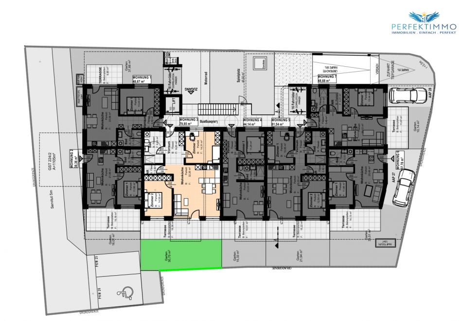
17 moderne Wohnungen auf drei Etagen mit großzügigen Freiflächen (Balkone, Terrassen, Gärten)


Tiefgarage mit 23 Stellplätzen + 3 Außenabstellplätze (inkl. barrierefreiem Besucherparkplatz)


Massive Bauweise mit Wärmedämmung, Luftwärmepumpe & Photovoltaikanlage | HWB Ref, SK: 43,8 kWh/m²a [Klasse B], fGEE, SK: 0,71 [Klasse A]


Individuell gestaltbare Grundrisse – erste Planänderung kostenlos


Hochwertige Ausstattung: Eichenholzparkett, Feinsteinzeug, 3-fach verglaste Fenster


Zentraler Zugang mit Aufzug und offenen Laubengängen


Ideale Lage in ruhiger Umgebung, gute Erreichbarkeit über Alte Bundesstraße


Traumhafte Aussicht auf die Tiroler Bergwelt



 

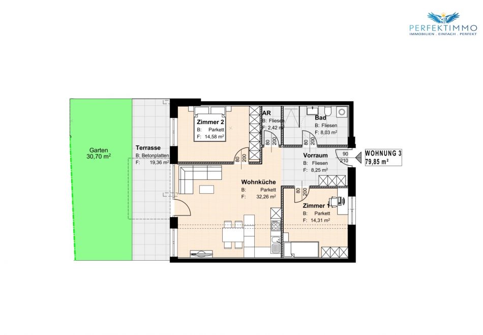
Ein Projekt für Menschen mit Anspruch an Qualität, Komfort und Nachhaltigkeit – perfekt für Paare und Familien.WOHNUNG W 3: 3-Zimmer-Wohnung mit Terrasse und Garten sowie 1 TG-Abstellplatz

 

ECKDATEN:

Stockwerk: Erdgeschoß

Zimmer: 3

Wohnfläche: 79,85 m²

Terrassenfläche: 19,36 m²

Gartenfläche: 30,70 m²

Lager: 1 inkl.

TG-Platz: 1 inkl.

 

RAUMAUFTEILUNG:

Vorraum: 8,25 m² 

Zimmer 1: 14,31 m²

Zimmer 2: 14,58 m² 

Wohnküche: 32,26 m²

Abstellraum: 2,42 m²

Bad/WC: 8,03 m²

 

KAUFPREIS:

Kaufpreis: € 435.000,00

abzüglich Wohnbauförderung: - € 155.707,00

----------------------------------------------------

Restbetrag: € 279.293,00

 

 

Haben wir Ihr Interesse geweckt? Dann zögern Sie nicht und vereinbaren Sie noch heute einen Besichtigungstermin. Lassen Sie sich von der außergewöhnlichen Qualität dieses Neubaus überzeugen und finden Sie Ihr neues Zuhause in Haiming!

 

IHRE ANSPRECHPARTNERIN:

Frau Barbara Lechleitner
geprüfte Immobilienmaklerin
Mobil: ​+43 650 9805332
E-Mail: b.lechleitner@perfektimmo.at
www.perfektimmo.at


NEBENKOSTEN:

Maklerhonorar: 3,6 % inkl. USt
Vertragserrichtungskosten: ca. 2 % netto zzgl. USt zzgl. Barauslagen
Grunderwerbsteuer: 3,5 %
Grundbuchseintragung: 1,1 % - Unter Umständen könnte hier eine Befreiung gemäß dem Beschluss der Österreichischen Bundesregierung für die Eintragung des Eigentumsrechts sowie die Eintragung einer eventuellen Pfandurkunde möglich sein.


Alle Angaben nach bestem Wissen. Irrtum und Zwischenverkauf vorbehalten. Dieses Exposé ist eine Vorinformation, als Rechtsgrundlage gilt alleine der abgeschlossene Kaufvertrag. §15 der Maklerverordnung gilt als vereinbart.

Weitere tolle Angebote finden Sie unter: https://www.perfektimmo.at/angebote
Wir weisen darauf hin, dass zwischen dem Vermittler und dem zu vermittelnden Dritten ein familiäres oder wirtschaftliches Naheverhältnis besteht.
Der Vermittler ist als Doppelmakler tätig.Infrastruktur / EntfernungenGesundheitArzt <500mApotheke <500mKinder & SchulenSchule <500mKindergarten <500mHöhere Schule <8.500mNahversorgungSupermarkt <500mBäckerei <500mSonstigeBank <500mGeldautomat <4.000mPost <500mPolizei <4.000mVerkehrBus <500mBahnhof <1.000mAutobahnanschluss <1.500mAngaben Entfernung Luftlinie / Quelle: OpenStreetMap
Agent Name

Barbara Lechleitner

Energie/Heizung

Befeuerung:

HWB (kWh/m²/Jahr): 43.8

HWB Energieklasse: B

fGEE: 0.71

fGEE Energieklasse: A

Anbieter


Anfragen

Ergebnisse werden geladen ...