379 m² 499.000 €

Historisches Haus in Gumpoldskirchen – sanierungsbedürftig, mit viel Potenzial

25.03.2026

Objekt Standort

Schulgasse , A-2352 Gumpoldskirchen

marker Entfernung sowie Fahrtzeit (PKW) zu deinem Standort berechnen
oder
Die Route konnte nicht ermittelt werden

Allgemeine Informationen

Objekt ID: 311064
  • Vergabeart
    Kauf
  • Kaufpreis
    499.000 €
  • Nutzfläche
    221.02 m²
  • Grundfläche
    379 m²
  • Provision
    3% des Kaufpreises zzgl. 20% USt.

Beschreibung

Historisches Haus in Gumpoldskirchen – sanierungsbedürftig, mit viel Potenzial

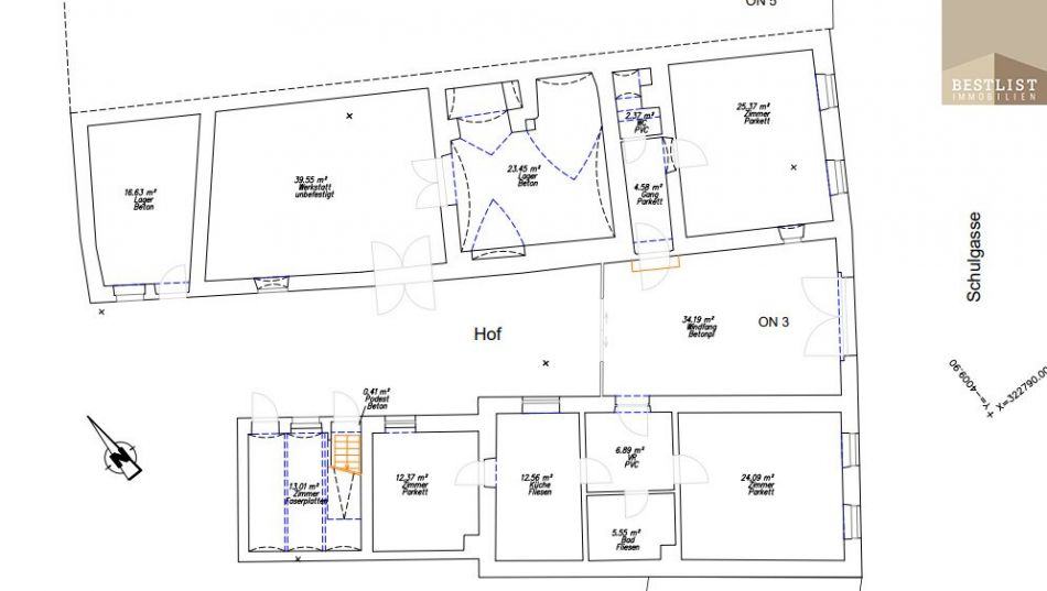
Zum Verkauf gelangt dieses charmante, sanierungsbedürftige Haus im wunderschönen Weinort Gumpoldskirchen. Das Objekt bietet viel Potenzial, um sich seinen gemütlichen Wohntraum zu gestalten.

Über den überdachten Einfahrtsbereich gelangt man in den großzügigen Hof. Der linke Flügel beherbergt eine Wohnhälfte mit mehreren Zimmern und einem Badezimmer, der rechte Flügel bietet zusätzlichen Wohnraum. Weiter im Hofbereich befindet sich ein sonniges, kleines grünes Plätzchen – ideal für entspannte Nachmittage.

Im hinteren Teil des Hauses finden sich historische Lagerräume, die bei Bedarf ausgebaut werden könnten. Auch der Dachboden bietet praktischen Stauraum.

Das Haus befindet sich in einem sanierungsbedürftigen Zustand, sodass Ihnen die Möglichkeit offensteht, das Objekt nach Ihren Vorstellungen zu gestalten.

Es bestehen bereits konkrete Planungen zur möglichen Projektierung des Hauses.

 

Lage und Infrastruktur:
Gumpoldskirchen überzeugt durch eine perfekte Kombination aus Natur, Weinbaukultur und hoher Wohnqualität. Vielfältige Freizeitmöglichkeiten, Restaurants, Weingüter sowie die gute Anbindung an Wien machen den Standort besonders attraktiv. Hier verbinden sich ruhiges Wohnen, kulturelle Angebote und Wohnkomfort auf ideale Weise.

 

Ich freue mich auf Ihre Anfrage und stehe Ihnen jederzeit zur Verfügung!

 


Unser nachhaltiger Denkansatz sieht auch die Vermeidung unnötiger Ausdrucke in Papierform vor. Daher geben Sie uns bitte Bescheid, ob Sie die Unterlagen in gedruckter Form ausgehändigt haben möchten oder ob wir sie Ihnen einfach per E-Mail zusenden sollen. Wir richten uns gerne nach Ihren Wünschen!
Wir weisen darauf hin, dass zwischen dem Vermittler und dem zu vermittelnden Dritten ein familiäres oder wirtschaftliches Naheverhältnis besteht.
Der Vermittler ist als Doppelmakler tätig.Infrastruktur / EntfernungenGesundheitArzt <1.250mApotheke <2.500mKlinik <2.750mKrankenhaus <5.250mKinder & SchulenSchule <500mKindergarten <750mHöhere Schule <3.250mNahversorgungSupermarkt <750mBäckerei <250mEinkaufszentrum <3.000mSonstigeBank <500mGeldautomat <500mPolizei <1.250mPost <250mVerkehrBus <250mAutobahnanschluss <4.750mBahnhof <750mStraßenbahn <2.500mU-Bahn <10.000mFlughafen <9.000mAngaben Entfernung Luftlinie / Quelle: OpenStreetMap
Agent Name

Maximilian Sostar

Friends Immobilien Dienstleistungs GmbH & Co KG

anfrage@bestlist.immo

Energie/Heizung

Befeuerung: Gas

Anbieter


Anfragen

Ergebnisse werden geladen ...