247 m² 1.162,44 € 2 Zimmer

Gepflegte Lagerhalle nähe St. Pölten zur Miete

17.04.2026

Objekt Standort

Untere Ortsstraße , A-3123 Großhain

marker Entfernung sowie Fahrtzeit (PKW) zu deinem Standort berechnen
oder
Die Route konnte nicht ermittelt werden

Allgemeine Informationen

Objekt ID: 5876
  • Vergabeart
    Miete
  • monatliche kosten
    1.162,44 €
  • Nutzfläche
    247 m²
  • Zimmer
    2
  • Provision
    3 Bruttomonatsmieten zzgl. 20% USt.

Ausstattung

  • Barrierefrei

Beschreibung

Gepflegte Lagerhalle nähe St. Pölten zur Miete

Zur Vermietung steht eine vielseitig nutzbare Lagerhalle in verkehrsgünstiger Lage nahe St. Pölten.


Die Immobilie überzeugt durch ihre großzügige Raumhöhe von über 4 Metern sowie durch die optimale Anbindung – ideal für Lager oder Logistik. Die Zufahrt erfolgt über ein großes Einfahrtstor. Ein rund 24 m² großer Vorplatz vor der Halle bietet ausreichend Raum für Be- und Entladetätigkeiten.


Direkt angeschlossen stehen ein beheizbares Büro sowie Sanitäranlagen zur Verfügung, wodurch sich der Standort auch hervorragend als kombinierter Arbeits- und Lagerplatz eignet.


Die Elektrik befindet sich auf dem neusten Stand, Starkstrom ist verfügbar.


Eckdaten:



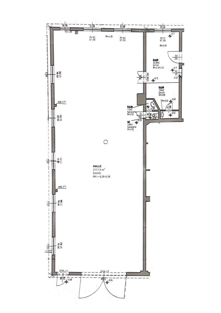
  • Lagerfläche: ca. 217 m²

  • Raumhöhe: ca. 4,3 m

  • Einfahrtstor: ca. 4,1 m Höhe

  • Büro: ca. 30 m² (beheizbar, optional als weitere Lagerfläche nutzbar)


Mietkonditionen:



  • Gesamtmiete: € 980,00 monatlich zzgl. Betriebskosten und USt.

  • Betriebskosten belaufen sich auf ca. € 219,00 pro Monat

  • Kosten für Strom, Wasser und Wärme werden verbrauchsabhängig verrechnet

  • Verfügbarkeit: ab sofort bzw. kurzfristig bezugsbereit

  • Mietdauer: befristet auf 5 Jahre


Fazit: Funktionale und sofort verfügbare Lagerhalle mit durchdachter Ausstattung und hervorragender Erreichbarkeit – ideal für Unternehmen oder Privatpersonen mit Platzbedarf.


Kaution: 3 Bruttomonatsmieten
Provision: 3 Bruttomonatsmieten zzgl. MWSt.


Hinweis gemäß Energieausweisvorlagegesetz: Ein Energieausweis wurde vom Eigentümer bzw. Verkäufer, nach unserer Aufklärung über die generell geltende Vorlagepflicht, sowie Aufforderung zu seiner Erstellung noch nicht vorgelegt. Daher gilt zumindest eine dem Alter und der Art des Gebäudes entsprechende Gesamtenergieeffizienz als vereinbart. Wir übernehmen keinerlei Gewähr oder Haftung für die tatsächliche Energieeffizienz der angebotenen Immobilie.


Wir weisen darauf hin, dass zwischen dem Vermittler und dem zu vermittelnden Dritten ein familiäres oder wirtschaftliches Naheverhältnis besteht.


Der Vermittler ist als Doppelmakler tätig.


Infrastruktur / Entfernungen

Gesundheit
Arzt <3.500m
Apotheke <4.000m
Klinik <3.000m
Krankenhaus <5.000m
Kinder & Schulen
Schule <2.750m
Kindergarten <2.750m
Universität <5.000m
Höhere Schule <5.750m
Nahversorgung
Supermarkt <4.000m
Bäckerei <4.000m
Einkaufszentrum <4.000m
Sonstige
Bank <3.750m
Geldautomat <3.750m
Post <3.750m
Polizei <4.000m
Verkehr
Bus <250m
Autobahnanschluss <4.250m
Bahnhof <3.000m
Angaben Entfernung Luftlinie / Quelle: OpenStreetMap

IMMOCENTRAL Immobilientreuhand GmbH
Agent Name

Magdalena Kaiblinger

IMMOCENTRAL Immobilientreuhand GmbH

m.kaiblinger@immocentral.at

Anbieter


Anfragen

Ergebnisse werden geladen ...