43 m² 560 € 2 Zimmer

PROVISIONSFREIE Balkonwohnung in Gössendorf | 2-Zimmer | 2 Tiefgaragenplätze

30.11.2025

Objekt Standort

A-8077 Gössendorf

marker Entfernung sowie Fahrtzeit (PKW) zu deinem Standort berechnen
oder
Die Route konnte nicht ermittelt werden

Allgemeine Informationen

Objekt ID: 5971/5051
  • Vergabeart
    Miete
  • monatliche kosten
    560 €
  • Wohnfläche
    43 m²
  • Zimmer
    2
  • Provision
    Gemäß Erstauftraggeberprinzip bezahlt der Abgeber die Provision.

Ausstattung

  • Einbauküche
  • Barrierefrei
  • Garage

Freiflächen

  • Balkon

Beschreibung

PROVISIONSFREIE Balkonwohnung in Gössendorf | 2-Zimmer | 2 Tiefgaragenplätze

Verfügbar: Ab sofort!


Bruttomiete inkl. BK, Heizung + 2 Tiefgaragenplätze: € 770,-


STROM EXTRA 


Besichtigungen unter: +43 664 500 92 10


Diese Wohnung befindet sich in einem Neubauprojekt in Gössendorf, welche durch besonders hochwertige Bauweise und Ausstattung besticht. 


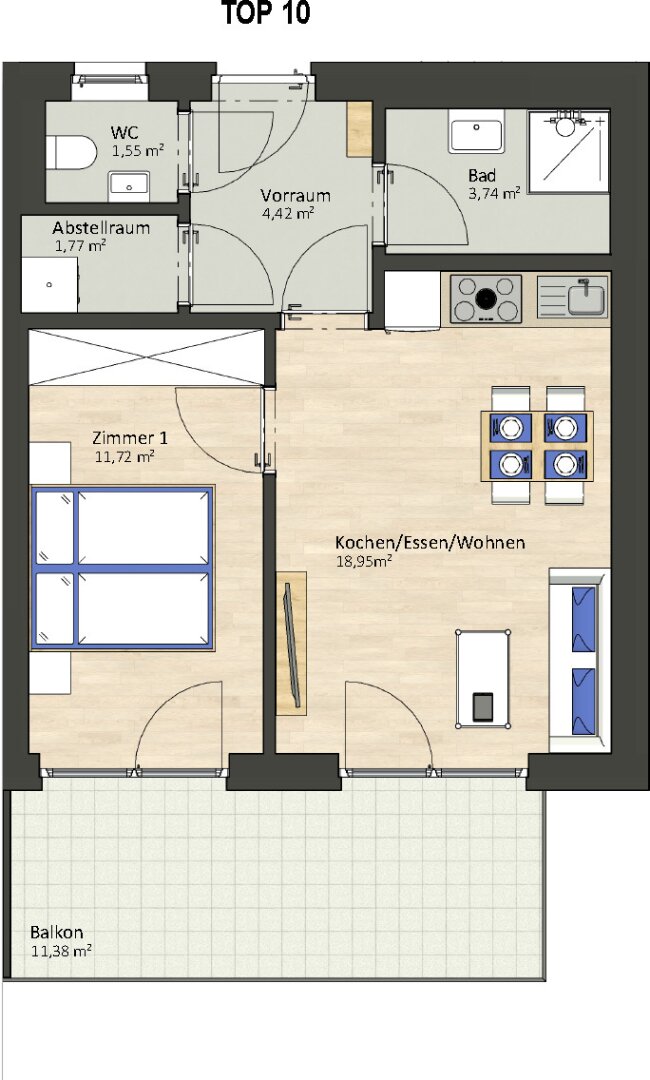
Die 2-Zimmer-Wohnung verfügt über einen Vorraum, 1 Schlafzimmer, eine Wohnküche, ein Badezimmer, ein separates WC, einen Abstellraum, sowie über eine gemütliche großzügige Terrasse.


In der selben Straße, nur wenige Gehminuten entfernt, befinden sich Bildungseinrichtungen, wie Kindergarten und Volksschule. 


Besucherparkplätze sind in der Tiefgarage vorhanden. 


AUSSTATTUNG 



  • Raumhöhe von 2,85 m

  • doppelt beplankte Rigipswände

  • elektrische Raffstores, robuste WPC-Terrassendielen

  • Bodensteckdose für Kücheninsel

  • Einbauküche, Parkettböden, Fußbodenheizung, 

  • Terrasse und Eigengarrten

  • Kellerabteil

  • 2 Tiefgaragenplätze 

  • Fahrradabstellplätze


Weitere Informationen unter: +43 664 500 92 10


Der Immobilienmakler erklärt, dass er – entgegen dem in der Immobilienwirtschaft üblichen Geschäftsgebrauch des Doppelmaklers – einseitig nur für den Vermieter tätig ist.


Infrastruktur / Entfernungen

Gesundheit
Arzt <500m
Apotheke <1.000m
Klinik <8.000m
Krankenhaus <6.500m
Kinder & Schulen
Schule <500m
Kindergarten <500m
Universität <6.500m
Höhere Schule <7.500m
Nahversorgung
Supermarkt <1.000m
Bäckerei <1.000m
Einkaufszentrum <4.000m
Sonstige
Geldautomat <1.000m
Bank <1.000m
Post <1.000m
Polizei <2.500m
Verkehr
Bus <500m
Straßenbahn <5.000m
Autobahnanschluss <2.000m
Bahnhof <3.000m
Flughafen <4.000m
Angaben Entfernung Luftlinie / Quelle: OpenStreetMap

Agent Name

Hr. Trabi

Immotura Consulting GmbH

vermietungsservice@captura-group.cc

Energie/Heizung

Heizungsart: Fernwärme

HWB (kWh/m²/Jahr): 36.4

HWB Energieklasse: B

fGEE: 0.71

fGEE Energieklasse: A

Anbieter


Anfragen

Ergebnisse werden geladen ...