37.85 m² 211.000 € 2 Zimmer

Ihr Platz an der Sonne – Dachgeschoss-Wohnung mit Terrasse

23.11.2025

Objekt Standort

A-1110 Wien,Simmering

marker Entfernung sowie Fahrtzeit (PKW) zu deinem Standort berechnen
oder
Die Route konnte nicht ermittelt werden

Allgemeine Informationen

Objekt ID: 6188
  • Vergabeart
    Kauf
  • Kaufpreis
    211.000 €
  • Wohnfläche
    37.85 m²
  • Nutzfläche
    37.85 m²
  • Zimmer
    2

Ausstattung

  • Fahrstuhl
  • Garage

Freiflächen

  • Terrasse

Beschreibung

Ihr Platz an der Sonne – Dachgeschoss-Wohnung mit Terrasse

Urbanes Wohnen mit Stil – Ihr neues Zuhause im Grünen!

Inmitten des dynamischen 11. Bezirks von Wien entsteht ein Wohnprojekt, das urbanen Lebensstil mit zeitgemäßem Komfort vereint. Es erwarten Sie moderne 1- bis 3-Zimmer-Wohnungen – jede mit eigener Freifläche – perfekt geeignet für Singles, Paare und kleine Familien.

Genießen Sie die Vorzüge eines hochwertigen Erstbezugs und lassen Sie sich von durchdachten Grundrissen, stilvoller Ausstattung und einer hervorragenden Lage überzeugen.

Das Projekt im Überblick:


Erstbezugs-Neubau mit zeitgemäßem Design
Freiflächen bei jeder Einheit: Balkon, Terrasse, Loggia oder Eigengarten
Hochwertige Ausstattung: Fußbodenheizung, außenliegender Sonnenschutz
Kleinkinderspielplatz
Fahrrad- und Kinderwagenraum


Klimavorbereitung im Dachgeschoss


Attraktive Grundrisse, teils mit Blick ins Grüne
Top-Lage: Nähe zur U3 Simmering und kurze Distanz nach Schwechat
Ideal für Eigennutzer und Anleger
Für das gesamte Haus stehen ausschließlich zwei Stellplätze in der hauseigenen Garage zur Verfügung. Diese können jeweils zu einem Preis von 45.000 € erworben werden


Erleben Sie modernes Wohnen in einem der aufstrebendsten Stadtteile Wiens – stilvoll, komfortabel und bestens angebunden.

Ob zur Eigennutzung oder als wertstabile Vorsorge – diese Wohnung erfüllt beide Ansprüche.

 

Ausstattungsstandard – kompakte Zusammenfassung

Die Wohnungen überzeugen durch eine hochwertige Ausstattung, die modernen Wohnkomfort mit Energieeffizienz verbindet:


Effiziente Fußbodenheizung mit Luftwärmepumpe für Heizung und Warmwasser
3-fach isolierverglaste Kunststofffenster, außenliegender Sonnenschutz
Hochwertiger Eiche-Fertigparkett in den Wohnräumen
Moderne Sanitäreinrichtung mit ästhetischem Anspruch
Vorbereitung für Split-Klimaanlagen im Dachgeschoss
Sicherheitseingangstüre
Personenlift, Fahrrad- und Kinderwagenraum, Kleinkinderspielplatz
Für das gesamte Haus stehen ausschließlich zwei Stellplätze in der hauseigenen Garage zur Verfügung. Diese können jeweils zu einem Preis von 45.000 € erworben werden


Diese Ausstattung schafft ein stilvolles, energieeffizientes und familienfreundliches Wohnumfeld.

 

Lage und Infrastruktur:


Die Wohnhausanlage befindet sich in einer ruhigen Wohngegend mit hoher Lebensqualität.
Die U-Bahn-Station U3 Simmering ist in kurzer Distanz erreichbar und bietet eine direkte Verbindung ins Stadtzentrum.
Die Nähe zur Autobahn ermöglicht eine schnelle Erreichbarkeit von Schwechat und dem Flughafen Wien.
In der Umgebung finden sich zahlreiche Einkaufsmöglichkeiten, Schulen, Kindergärten und Freizeiteinrichtungen.
Die Infrastruktur ist insgesamt sehr gut ausgebaut und bietet sowohl für Familien als auch für Berufspendler ideale Voraussetzungen.


Weitere öffentliche Verkehrsmittel:


Buslinien: 73A, 73B, 76B, 79A, 79B
Straßenbahnlinien: 11, 71
S-Bahn und Regionalzüge: S7, REX7


Diese Lage verbindet ruhiges Wohnen mit urbaner Erreichbarkeit und macht das Projekt besonders attraktiv für Eigennutzer und Anleger.

 Objektbeschreibung:

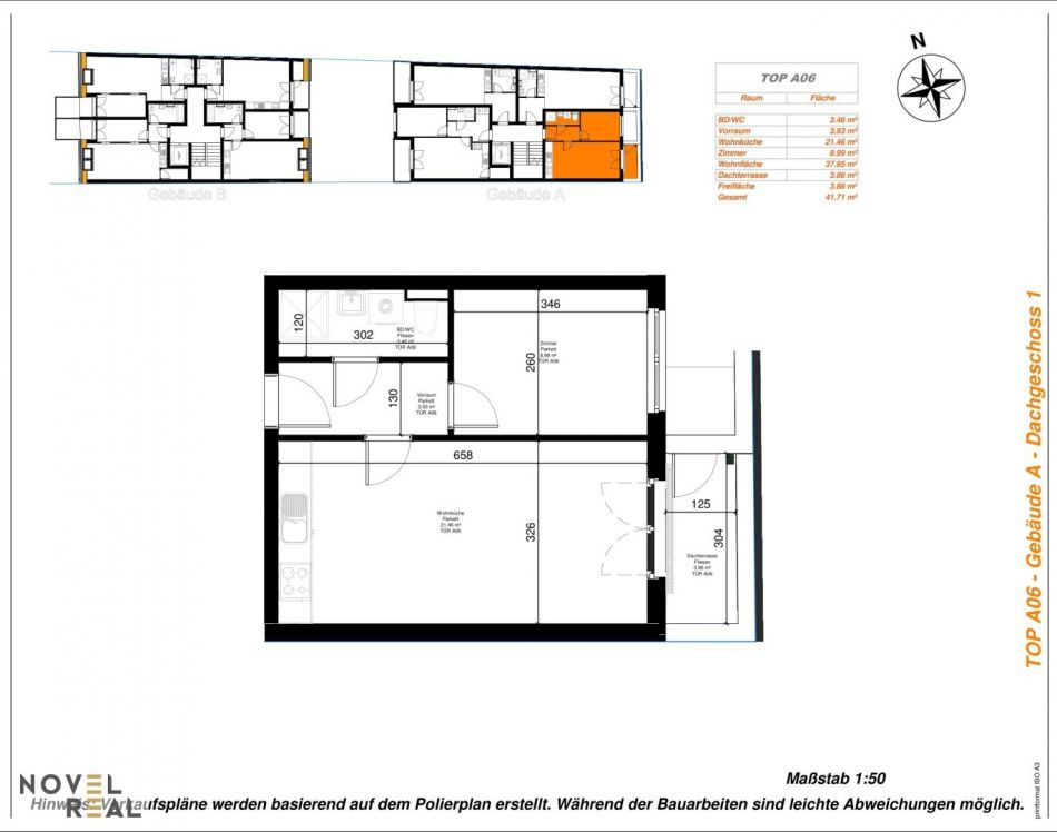
Stiege A / Top 6 DG

Diese Dachgeschoss-Wohnung überzeugt mit einer durchdachten Raumaufteilung und einem angenehmen Wohnambiente. Der einladende Vorraum bietet ausreichend Platz für Garderobe und Stauraum und führt direkt in die helle Wohnküche, die als zentraler Lebensbereich zum Kochen, Essen und Entspannen einlädt. Das angrenzende Zimmer lässt sich flexibel als Schlafzimmer, Büro oder Gästezimmer nutzen und bietet vielfältige Gestaltungsmöglichkeiten. Das Badezimmer mit WC ist modern ausgestattet und sorgt für Komfort im Alltag. Die Dachterrasse erweitert den Wohnraum ins Freie und bietet einen geschützten Platz zum Verweilen – ob für den Morgenkaffee oder entspannte Abendstunden.

 

Fakten:


Vorraum – einladender Eingangsbereich mit Platz für Garderobe und Stauraum
Wohnküche – heller, offener Wohnbereich mit Koch- und Esszone
Zimmer – flexibel nutzbar als Schlafzimmer, Büro oder Gästezimmer
Bad/WC – modern ausgestattet mit hochwertigen Sanitärelementen
Dachterrasse – Außenbereich mit Blick ins Freie und Raum zum Entspannen


 

Kaufpreis:

Der Kaufpreis für Eigennutzer beträgt 229.000,00 EURO

Der Kaufpreis für Anleger beträgt 211.000,00 EURO zzgl. 20% USt.

 

Aus rechtlichen Gründen und aufgrund der großen Nachfragen bitten wir um Verständnis, dass wir nur Anfragen per Mail beantworten, wenn Sie uns Ihren vollständigen Namen samt Mailadresse und Mobilnummer bekanntgeben.

Alle Angaben basieren alleinig auf Informationen, die uns von unserem Auftraggeber übermittelt wurden. Trotz aller Sorgfalt können wir für die Richtigkeit, Vollständigkeit und Aktualität dieser Angaben keine Gewähr übernehmen. Jegliche Weitergabe der übermittelten Daten an Dritte ist nicht gestattet. Der Maklervertrag kommt durch schriftliche Vereinbarung oder Inanspruchnahme unserer Maklertätigkeit zustande. Der Makler kann als Doppelmakler tätig werden. Sollte das von uns nachgewiesene Objekt bereits bekannt sein, teilen sie uns dies bitte unverzüglich mit.

Die Maklergebühr ist ausschließlich bei Zustandekommen eines gültigen Rechtsgeschäfts fällig und vom Mieter/Vermieter an Novel Real Immobilien GmbH zu zahlen. Es wird ausdrücklich auf die Nebenkostenübersicht hingewiesen. Bei den Visualisierungen und Abbildungen der Immobilie (insbesondere von Inneneinrichtungen) kann es sich um Symbolfotos bzw. fototechnisch optimierte Fotos handeln. Hiermit weisen wir auf das Bestehen eines familiären und/oder wirtschaftlichen Naheverhältnisses zum Vermieter/Verkäufer hin. 

Für die Vereinbarung eines Termins kontaktieren Sie Herrn Mag. Michael Hofer telefonisch unter +43 680 111 7660 oder per E-Mail: mh@novel-real.at.Infrastruktur / EntfernungenGesundheitArzt <1.000mApotheke <1.000mKlinik <1.000mKrankenhaus <7.500mKinder & SchulenSchule <500mKindergarten <1.000mUniversität <6.500mHöhere Schule <7.000mNahversorgungSupermarkt <500mBäckerei <500mEinkaufszentrum <1.000mSonstigeGeldautomat <500mBank <500mPost <1.000mPolizei <500mVerkehrBus <500mU-Bahn <4.500mStraßenbahn <1.000mBahnhof <1.000mAutobahnanschluss <1.000mFlughafen <8.500mAngaben Entfernung Luftlinie / Quelle: OpenStreetMap
Agent Name

Michael Hofer

Novel Real Immobilien GmbH

mh@novel-real.at

Energie/Heizung

Befeuerung:

HWB (kWh/m²/Jahr): 53.4

HWB Energieklasse: C

fGEE: 0.76

fGEE Energieklasse: A

Anbieter


Anfragen

Ergebnisse werden geladen ...