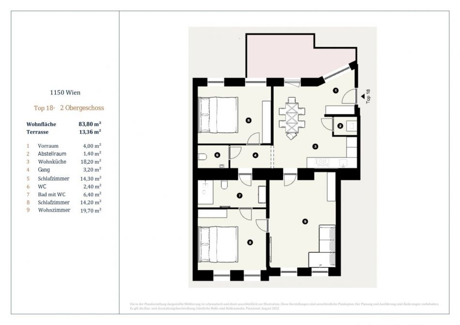
83.8 m² 535.000 € 3.5 Zimmer

Heller 4-Zimmer Erstbezug mit Balkon, Nähe Meiselmarkt

15.11.2025

Objekt Standort

A-1150 Wien,Rudolfsheim-Fünfhaus

marker Entfernung sowie Fahrtzeit (PKW) zu deinem Standort berechnen
oder
Die Route konnte nicht ermittelt werden

Allgemeine Informationen

Objekt ID: 5081
  • Vergabeart
    Kauf
  • Kaufpreis
    535.000 €
  • Wohnfläche
    83.8 m²
  • Zimmer
    3.5
  • Provision
    3% des Kaufpreises zzgl. 20% USt.

Ausstattung

  • Abstellraum

Freiflächen

  • Balkon

Beschreibung

Heller 4-Zimmer Erstbezug mit Balkon, Nähe Meiselmarkt

Im Falle der Notwendigkeit einer Fremdfinanzierung Ihrer Wunschimmobilie ermittelt unser Wohnbau-Finanzierungsexperte gerne die optimale Finanzierungslösung und findet das passende Zins- und Konditionsangebot für Sie. Er vergleicht die aktuellen Angebote aller relevanten Banken und Bausparkassen. Der Angebotsvergleich kann aus einem Portfolio von über 120 Banken erfolgen. Das Erstgespräch ist für Sie kostenfrei und unverbindlich, gerne auch bei Ihnen vor Ort. So sparen Sie Ihre wertvolle Zeit und erhalten eine professionelle und unabhängige Finanzierungslösung vom Spezialisten. Sprechen Sie uns wegen eines Termins gerne an!


Zum Verkauf gelangt eine Garconniere im 15. Wiener Gemeindebezirk.


Sie verfügt über ca. 84 m² und befindet sich im 2. Stock eines schönen Altbaus. Die Wohnung gliedert sich in einen Vorraum, eine Wohnküche, einen Wohnraum, zwei Schlafzimmer, ein Badezimmer, einen Abstellraum und ein separates WC. Die Wohnung ist mit schönem Parkettboden ausgestattet, Bad und WC sind verfliest. Beheizt wird mit Fußbodenheizung.


Sie betreten die Wohnung und befinden sich im Vorraum, dieser eröffnet sich in einen großen Raum mit Küchenecke. Hier gibt es genug Platz für einen Esstisch, außerdem hat man von hier Zugang zum ca. 13 m² großen Balkon. Gerade durch gelangen Sie in den gemütlichen Salon von dem Sie auch in eines der Schlafzimmer gelangen. Das andere Zimmer erreichen Sie über einen Gang in der Wohnküche. Das Badezimmer befindet sich zwischen den beiden Zimmern, wobei eines der Zimmer direkten Zugang hat. Das Bad ist mit einer Dusche, einem Waschbecken, einem Handtuchtrockner und einem WC ausgestattet. Des Weiteren gibt es einen praktischen Abstellraum mit Waschmaschinenanschluss und ein separates WC.


Der um die Jahrhundertwende errichtete Stilaltbau befindet sich in einer gefragten Wohngegend des 15. Wiener Gemeindebezirks. Nach Renovierung der eleganten Gründerzeitfassade wurden auch sämtliche Allgemeinflächen des Hauses mit viel Liebe zum Detail saniert. Das Zinshaus verfügt über 3 Regelgeschoße.


Neben der sehr guten Verkehrsmittelanbindung bietet die Lage auch eine ausgezeichnete Nahversorgung. Zahlreiche Einkaufsmöglichkeiten, öffentliche Einrichtungen, Parkanlagen und Geschäfte für den täglichen Bedarf befinden sich in unmittelbarer Nähe. Die Infrastruktur ist optimal, da fußläufig alle Bedürfnisse des täglichen Alltags gedeckt werden. Nur ein paar Minuten entfernt liegt der Meiselmarkt. Die U-Bahn-Station U3 "Johnstraße" befindet sich in unmittelbarer Umgebung und bietet somit einen perfekten Anschluss in die Innenstadt.


Die Vertragserrichtung und Treuhandabwicklung ist gebunden an die Kanzlei Mag. Schreiber A-1010 Wien, Schottenring 16. Die Kosten betragen 1,5 % des Kaufpreises zzgl. 20 % USt. sowie Barauslagen und Beglaubigung. Bei Fremdfinanzierung erhöht sich das Honorar auf 1,8 % vom Kaufpreis zzgl. 20 % USt., Barauslagen und Beglaubigung.


Überzeugen Sie sich selbst von dieser Immobilie.


Für Besichtigungen und nähere Informationen stehen wir Ihnen gerne zur Verfügung!


Frau Marie-Louise Eisenburger
national - Tel: 0676 605 9800
international - Tel.: +43 676 605 9800
e-mail: eisenburger@lifestyle-properties.at


Wir weisen darauf hin, dass zwischen dem Vermittler und dem zu vermittelnden Dritten ein familiäres oder wirtschaftliches Naheverhältnis besteht.


Der Vermittler ist als Doppelmakler tätig.


Infrastruktur / Entfernungen

Gesundheit
Arzt <500m
Apotheke <500m
Klinik <1.500m
Krankenhaus <2.000m
Kinder & Schulen
Schule <500m
Kindergarten <500m
Universität <1.000m
Höhere Schule <1.500m
Nahversorgung
Supermarkt <500m
Bäckerei <500m
Einkaufszentrum <500m
Sonstige
Geldautomat <500m
Bank <500m
Post <500m
Polizei <500m
Verkehr
Bus <500m
U-Bahn <500m
Straßenbahn <500m
Bahnhof <500m
Autobahnanschluss <5.000m
Angaben Entfernung Luftlinie / Quelle: OpenStreetMap

Agent Name

Marie-Louise Eisenburger

Energie/Heizung

Befeuerung: Gas

HWB (kWh/m²/Jahr): 185.4

HWB Energieklasse: E

fGEE: 2.91

fGEE Energieklasse: E

Anbieter


Anfragen

Ergebnisse werden geladen ...