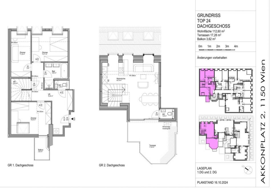
112.6 m² 984.000 € 4 Zimmer

ERSTBEZUG ! Schöne 112,4 m² Dachwohnung in einem hochwertig saniertem Gebäude (Top 24)

28.09.2025

Objekt Standort

Akkonplatz , A-1150 Wien,Rudolfsheim-Fünfhaus

marker Entfernung sowie Fahrtzeit (PKW) zu deinem Standort berechnen
oder
Die Route konnte nicht ermittelt werden

Allgemeine Informationen

Objekt ID: 111524
  • Vergabeart
    Kauf
  • Kaufpreis
    984.000 €
  • Wohnfläche
    112.6 m²
  • Zimmer
    4

Ausstattung

  • Klimatisiert
  • Fahrstuhl

Freiflächen

  • Balkon
  • Terrasse

Beschreibung

ERSTBEZUG ! Schöne 112,4 m² Dachwohnung in einem hochwertig saniertem Gebäude (Top 24)

Exklusives Wohnprojekt in historischem Gebäude (Top 24)


In einem generalsanierten Spätsecessionshaus (BJ 1913–1914) entstehen 22 hochwertige Wohnungen mit Größen von 37 bis 150 m², teilweise mit Balkon, Terrasse oder Garten.

ÜBERSICHT:


10 Altbauwohnungen für Eigennutzer oder Anleger
7 Einheiten für dauerhafte Kurzzeitvermietung (Airbnb)
5 neu errichtete Dachgeschosswohnungen


Ausstattung:


Luft-Wärmepumpe mit Heiz- & Kühlfunktion
Fußbodenheizung
Fußboden & Kühldecken
Eichenparkett, großformatige Fliesen
Personenlift, Kellerabteile, Fahrrad-/Kinderwagenraum


Lage:

Optimale Anbindung: U3 (Johnstraße, Hütteldorfer Str.), Straßenbahn 49 & 9, Bus 10A & 12A. Innenstadt und Grünoasen in wenigen Minuten erreichbar.

 

Top 24 – Stilvolle 3-Zimmer-Wohnung mit moderner Ausstattung und Balkon

Willkommen in Ihrer neuen Wohnung! Diese Einheit besticht durch eine durchdachte Raumaufteilung und hochwertige Materialien.

 

Raumaufteilung:


Wohn-/Essbereich mit Zugang zur Terrasse
1 Schlafzimmer mit Zugang zum Balkon
2 Schlafzimmer
1 Bad & 2 separate WC
Zentrales Vorzimmer


Edles Parkett und Feinsteinzeugfliesen sorgen für ein elegantes Ambiente. Fußbodenheizung und Kühlung über Luftwärmepumpe garantieren Komfort zu jeder Jahreszeit. Zusätzlich gibt es noch eine Decken Kühlung. Die gesamte Liegenschaft wurde die wunderschön und hochwertig renoviert.

Weitere Details unter: https://www.akp2.at/
Hinweis gemäß Energieausweisvorlagegesetz: Ein Energieausweis wurde vom Eigentümer bzw. Verkäufer, nach unserer Aufklärung über die generell geltende Vorlagepflicht, sowie Aufforderung zu seiner Erstellung noch nicht vorgelegt. Daher gilt zumindest eine dem Alter und der Art des Gebäudes entsprechende Gesamtenergieeffizienz als vereinbart. Wir übernehmen keinerlei Gewähr oder Haftung für die tatsächliche Energieeffizienz der angebotenen Immobilie.
Wir weisen darauf hin, dass zwischen dem Vermittler und dem zu vermittelnden Dritten ein familiäres oder wirtschaftliches Naheverhältnis besteht.
Der Vermittler ist als Doppelmakler tätig.Infrastruktur / EntfernungenGesundheitArzt <250mApotheke <500mKlinik <1.250mKrankenhaus <1.500mKinder & SchulenSchule <500mKindergarten <500mUniversität <500mHöhere Schule <750mNahversorgungSupermarkt <250mBäckerei <500mEinkaufszentrum <750mSonstigeGeldautomat <500mBank <500mPost <500mPolizei <750mVerkehrBus <250mU-Bahn <500mStraßenbahn <500mBahnhof <500mAutobahnanschluss <5.000mAngaben Entfernung Luftlinie / Quelle: OpenStreetMap
Agent Name

Alexander Alexander

Ticon Immobilienservice

lafenthaler@ticon.cc

Energie/Heizung

Befeuerung:

Anbieter


Anfragen

Ergebnisse werden geladen ...