43 m² 199.000 € 2 Zimmer

Schöne 2-Zimmer Wohnung, Nähe Meiselmarkt

29.10.2025

Objekt Standort

A-1150 Wien,Rudolfsheim-Fünfhaus

marker Entfernung sowie Fahrtzeit (PKW) zu deinem Standort berechnen
oder
Die Route konnte nicht ermittelt werden

Allgemeine Informationen

Objekt ID: 5061
  • Vergabeart
    Kauf
  • Kaufpreis
    199.000 €
  • Wohnfläche
    43 m²
  • Zimmer
    2

Beschreibung

Schöne 2-Zimmer Wohnung, Nähe Meiselmarkt

Im Falle der Notwendigkeit einer Fremdfinanzierung Ihrer Wunschimmobilie ermittelt unser Wohnbau-Finanzierungsexperte gerne die optimale Finanzierungslösung und findet das passende Zins- und Konditionsangebot für Sie. Er vergleicht die aktuellen Angebote aller relevanten Banken und Bausparkassen. Der Angebotsvergleich kann aus einem Portfolio von über 120 Banken erfolgen. Das Erstgespräch ist für Sie kostenfrei und unverbindlich, gerne auch bei Ihnen vor Ort. So sparen Sie Ihre wertvolle Zeit und erhalten eine professionelle und unabhängige Finanzierungslösung vom Spezialisten. Sprechen Sie uns wegen eines Termins gerne an!


Zum Verkauf gelangt eine 2-Zimmer Wohnung im 15. Wiener Gemeindebezirk.


Sie befindet verfügt über ca. 43 m² und befindet sich im 2. Stock eines im Jahr 1936 erbauten Altbaus, welcher zwei Stiegen mit insgesamt 28 Wohneinheiten umfasst. 


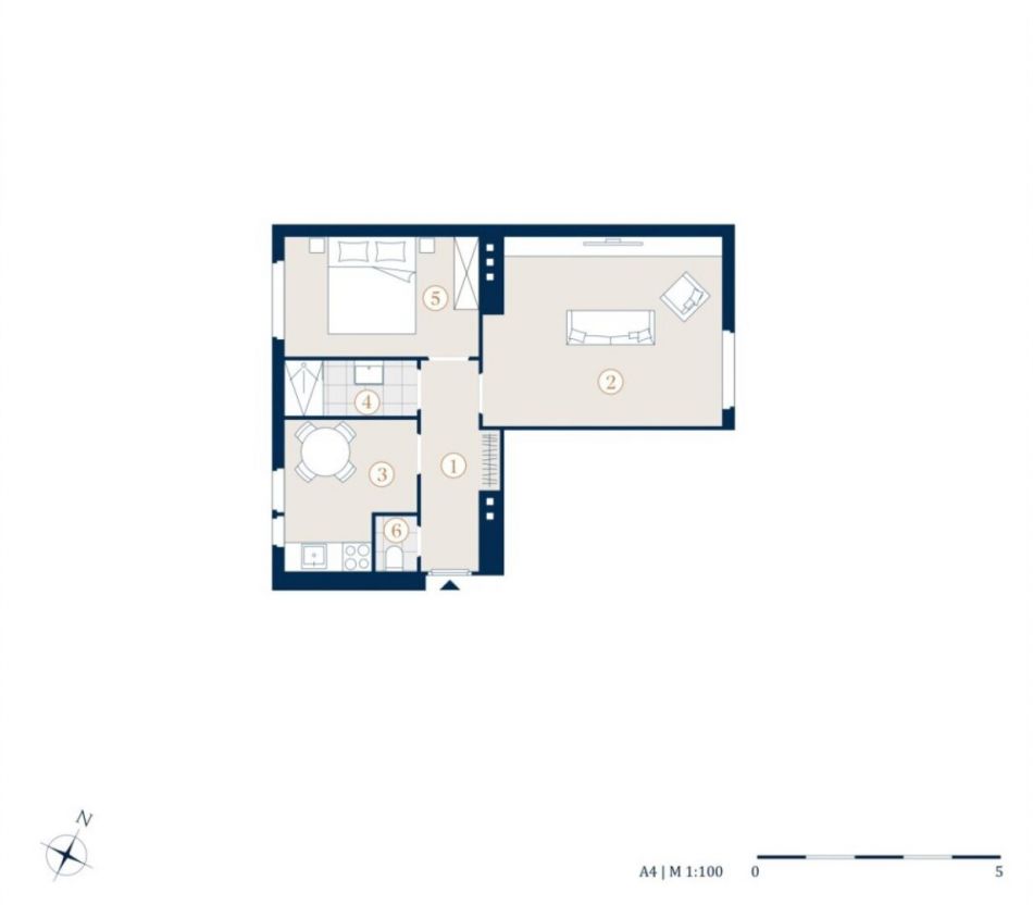
Die Wohnung gliedert sich in einen Vorraum, einen Wohnraum, ein Schlafzimmer, eine Küche, ein Badezimmer und ein separates WC.


Sie betreten die Wohnung und befinden sich im Vorraum. Gerade durch gelangen Sie in das Schlafzimmer. Rechterhand befindet sich das Wohnzimmer. Die Küche ist voll ausgestattet und bietet Platz für einen Tisch. Das Bad ist mit einer Dusche und einem Waschbecken ausgestattet. Das separate WC ist auch vom Vorraum erreichbar.


Die Wohnräume sind mit einem Parkettboden ausgestattet und die Nassräume sind verfliest.


in der Liegenschaft sind 27 Wohnungen derzeit sofort bezugsfrei, während eine Einheit unbefristet vermietet ist. Die Wohnungen weisen Wohnflächen zwischen ca. 34 m² und 66 m² auf und überzeugen durch ihre durchdachten, kompakten Grundrisse. Einige Einheiten verfügen über offene Wohn-/Essbereiche und andere über separate Küchen. Die Vielfalt an Größen und Raumaufteilungen schafft attraktives Potenzial für unterschiedlichste Wohnbedürfnisse. Das Gebäude befindet sich in einem soliden und gepflegten Zustand, die allgemeine Bausubstanz ist gut erhalten. 


Die Infrastruktur ist optimal, die Nähe zum Meiselmarkt und zur Hütteldorfer Straße bietet zahlreiche Einkaufsmöglichkeiten, öffentliche Einrichtungen, Parkanlagen und Geschäfte für den täglichen Bedarf. Die U3-Station Johnstraße und die Buslinie 10A sind auch schnell erreichbar. Das Schloss Schönbrunn mit der traumhaften Parkanlage bietet einen perfekten Rückzugsort, welchen Sie in nur ca. 15 Minuten erreichen können. 


Die Vertragserrichtung und Treuhandabwicklung ist gebunden an die Kanzlei Drachsler Linzer, 1060 Wien, Mariahilfer Straße 103. Die Kosten betragen 1,5 % des Kaufpreises zzgl. USt. sowie Barauslagen und Beglaubigung. Bei Fremdfinanzierung erhöht sich das Honorar auf 1,8 % vom Kaufpreis zzgl. 20 % USt., Barauslagen und Beglaubigung.


Überzeugen Sie sich selbst von dieser Immobilie.


Für Besichtigungen und nähere Informationen stehen wir Ihnen gerne zur Verfügung!


Frau Marie-Louise Eisenburger
national - Tel: 0676 605 9800
international - Tel.: +43 676 605 9800
e-mail: eisenburger@lifestyle-properties.at


Wir weisen darauf hin, dass zwischen dem Vermittler und dem zu vermittelnden Dritten ein familiäres oder wirtschaftliches Naheverhältnis besteht.


Der Vermittler ist als Doppelmakler tätig.


Infrastruktur / Entfernungen

Gesundheit
Arzt <500m
Apotheke <500m
Klinik <1.000m
Krankenhaus <2.000m
Kinder & Schulen
Schule <500m
Kindergarten <500m
Universität <1.000m
Höhere Schule <2.000m
Nahversorgung
Supermarkt <500m
Bäckerei <500m
Einkaufszentrum <1.000m
Sonstige
Geldautomat <500m
Bank <500m
Post <500m
Polizei <1.000m
Verkehr
Bus <500m
U-Bahn <500m
Straßenbahn <500m
Bahnhof <500m
Autobahnanschluss <4.500m
Angaben Entfernung Luftlinie / Quelle: OpenStreetMap

Agent Name

Marie-Louise Eisenburger

Energie/Heizung

Heizungsart: Etagenheizung

Befeuerung: Gas

HWB (kWh/m²/Jahr): 151.6

HWB Energieklasse: E

fGEE: 2.82

Anbieter


Anfragen

Ergebnisse werden geladen ...