Gewerbefläche/Lagerfläche zu mieten in 1120 Wien, Oswaldgasse
Objekt Standort
A-1120 Wien,Meidling
Allgemeine Informationen
Objekt ID: 5735/3211-
VergabeartMiete
-
monatliche kosten1.844,82 €
-
Nutzfläche291.26 m²
-
Zimmer8
-
Provision3 Bruttomonatsmieten zzgl. 20% USt.
Beschreibung
Gewerbefläche/Lagerfläche zu mieten in 1120 Wien, Oswaldgasse
Diese große Gewerbefläche - in zentraler Lage im 12. Bezirk bei der Wienerbergbrücke - bietet Spielraum für Kreativität bei der Gestaltung der Räumlichkeiten!
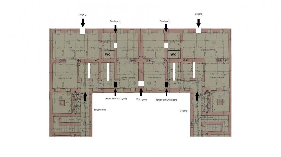
Vom Innenhof aus zu begehen über nur wenige Stufen, erreichen Sie die grosse Gewerbefläche in Souterrain Lage.
Aufgrund mehrerer Eingänge kann die Fläche auch in zwei kleinere Einheiten aufgeteilt werden.
Raumaufteilung:
Derzeit verfügt das Objekt über 8 große Gewölbe-Räume (mit 1-2 Fenster), die teilweise offen gestaltet sind und teilweise mit Türen verbunden sind sowie 6 weitere, kleinere Räume (teilweise mit Fenster).
2 getrennte Toiletten
Anschlüsse für Teeküche
Es steht zusätzlich ein Garagenplatz derzeit in der Garage des Hauses zur Verfügung. Dieser kann bei Bedarf extra angemietet werden.
Öffentliche Verkehrsmittel:
- Bahnhof Meidling in ca. 5 Gehminuten
- diverse Schnellbahnen und Zugverbindungen der ÖBB über den Bahnhof "Wien Meidling"
- U6-Station "Wien Meidling"
- Badner Bahn
- diverse Straßenbahn- und Buslinien
Lage:
Die Wohnung liegt im sehr beliebten 12. Wiener Gemeindebezirk. Die Nahversorgung ist bestens ausgebaut, alle Geschäfte des täglichen Bedarfs befinden sich in unmittelbarer Nähe - zB in der Meidlinger Hauptstrasse sowie dem Bahnhof Meidling. Durch die Nähe zum Bahnhof "Wien Meidling" ist Wohnung ist optimal an den öffentlichen Verkehr angebunden.
Im Stadtteil Meidling befinden sich außerdem zahlreiche Cafés und Restaurants und auch der beliebte, aufstrebende Meidlinger Markt.
Für eine unverbindliche Besichtigung:
Wir freuen uns Ihnen die Liegenschaft jederzeit persönlich vorzustellen zu dürfen.
Kontaktieren Sie Frau Sanela Hatic persönlich unter +43 660 201 89 47 oder unter gepp@thurner-realitaeten.at.
Unser Büro erreichen Sie unter office@thurner-realitaeten.at.
Nebenkosten:
- 3 Bruttomonatsmieten Kaution
- 3 Bruttomonatsmieten Provision
Auf ein wirtschaftliches Naheverhältnis mit dem Abgeber, bedingt durch regelmäßige Geschäftsbeziehungen, wird hingewiesen.
Maklervereinbarung: Wir ersuchen um Verständnis, dass wir bei Anfragen zur Objektadresse, bzw. Besichtigungstermin aufgrund neuer gesetzlicher Bestimmungen Unterlagen erst dann zusenden können, wenn Sie vorab bestätigen, dass Sie unser sofortiges Tätigwerden wünschen und über Ihre Rücktrittsrechte aufgeklärt wurden. Sie bekommen nach Ihrer schriftlichen Anfrage mit vollständiger Angabe des Namens, Anschrift und Telefonnummer ein E-Mail, in dem Sie diese Punkte bestätigen müssen.
Haftungsausschluss: Wir weisen darauf hin, dass sämtliche Daten im vorliegenden Angebot sowie die von unserem Büro an Sie weitergegebenen Auskünfte, vom Eigentümer der Immobilie zur Verfügung gestellt wurden. Ebenso sind Informationen von Dritten (z.B. behördliche Informationen) eingeholt worden, auch für diese können wir unsererseits keinerlei Haftung für deren uneingeschränkte Richtigkeit übernehmen.
Wir weisen darauf hin, dass zwischen dem Vermittler und dem zu vermittelnden Dritten ein familiäres oder wirtschaftliches Naheverhältnis besteht.
Infrastruktur / Entfernungen
Gesundheit
Arzt <500m
Apotheke <500m
Klinik <500m
Krankenhaus <1.500m
Kinder & Schulen
Schule <500m
Kindergarten <500m
Universität <1.500m
Höhere Schule <1.000m
Nahversorgung
Supermarkt <500m
Bäckerei <500m
Einkaufszentrum <500m
Sonstige
Geldautomat <500m
Bank <500m
Post <500m
Polizei <500m
Verkehr
Bus <500m
U-Bahn <500m
Straßenbahn <500m
Bahnhof <500m
Autobahnanschluss <2.000m
Angaben Entfernung Luftlinie / Quelle: OpenStreetMap

Petra Gepp
THURNER REALITÄTEN GMBH
gepp@thurner-realitaeten.atEnergie/Heizung
Befeuerung: Gas
HWB (kWh/m²/Jahr): 45.5
fGEE: 1.28