49.84 m²
240.000 €
2 Zimmer
Helle Altbaufläche zum selber gestalten, Nähe Schönbornpark
17.01.2025
Objekt Standort
A-1080 Wien,Josefstadt
oder
Allgemeine Informationen
Objekt ID: 4684-
VergabeartKauf
-
Kaufpreis240.000 €
-
Wohnfläche49.84 m²
-
Zimmer2
-
Provision3% des Kaufpreises zzgl. 20% USt.
Ausstattung
-
Einbauküche
-
Abstellraum
Beschreibung
Helle Altbaufläche zum selber gestalten, Nähe Schönbornpark
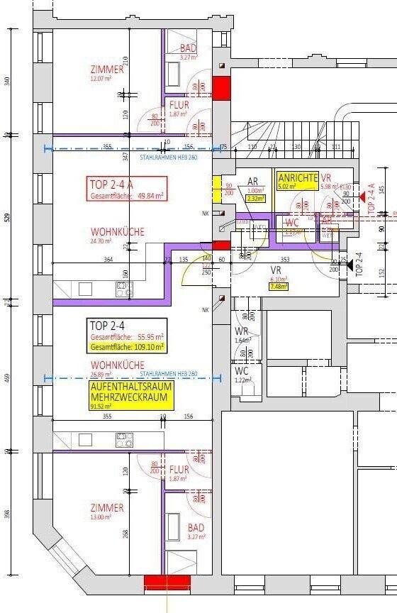
Im Falle der Notwendigkeit einer Fremdfinanzierung Ihrer Wunschimmobilie ermittelt unser Wohnbau-Finanzierungsexperte gerne die optimale Finanzierungslösung und findet das passende Zins- und Konditionsangebot für Sie. Er vergleicht die aktuellen Angebote aller relevanten Banken und Bausparkassen. Der Angebotsvergleich kann aus einem Portfolio von über 120 Banken erfolgen. Das Erstgespräch ist für Sie kostenfrei und unverbindlich, gerne auch bei Ihnen vor Ort. So sparen Sie Ihre wertvolle Zeit und erhalten eine professionelle und unabhängige Finanzierungslösung vom Spezialisten. Sprechen Sie uns wegen eines Termins gerne an!Hierbei handelt es sich um eine ca. 56 m² große unrenovierte Altbaufläche, welche in eine Wohnung umgebaut werden kann. Hierzu gibt es bereits eine Entwurfsplanung (siehe Anhang) und die ursprüngliche Bürofläche wurde zwischenzeitlich bereits zu Wohnzwecken umgewidmet. Die leicht über dem Erdgeschoß gelegen Fläche verfügt über hohe Räume sowie große Fensterflächen und garantieren eine gute Belichtung. Der Eigentümer würde die Abtrennung übernehmen. Es wäre auch möglich, die Wohnung durch den Eigentümer nach eigenen Wünschen gestalten zu lassen, der Preis würde sich dann je nach Abmachung verändern.
Zu den besonderen Schmuckstücken aus der Zeit der Jahrhundertwende gehört dieser schöne Stilaltbau mit seiner gegliederten Fassade. Das historische Entrée und das schöne Stiegenhaus spiegeln den Stil der Wiener Belle Époque wider. Das Gebäude verfügt über ein ausgebautes Dachgeschoß, 3 Regelgeschoße, ein Erdgeschoß und ein Kellergeschoß.
Bewohner der Josefstadt genießen nicht nur die zentrale Lage in der Wiener City. Durch die umfassende öffentliche Verkehrsanbindung gelangt man schnell in alle Teile der Stadt. Die Straßenbahnlinien 5 und 33 liegen so gut wie direkt vor der Haustür und auch die U-Bahnlinie U6 ist nur wenige Schritte entfernt. Neben Tradition und prachtvoller Historie punktet die Josefstadt mit ihrer Nähe zum jungen bunten 7. Bezirk mit seinen hippen Geschäften und der größten Einkaufsstraße der Stadt, der Mariahilfer Straße. Direkt in der Nachbarschaft liegt auch das Grätzl rund um den Brunnenmarkt im 16. Bezirk, das mit südländischem Flair und lukullischen Köstlichkeiten aus aller Welt an die Marktstände lockt.
Die Vertragserrichtung und Treuhandabwicklung ist gebunden an die Kanzlei Mag. Schreiber A-1010 Wien, Schottenring 16. Die Kosten betragen 1,5 % des Kaufpreises zzgl. 20 % USt. sowie Barauslagen und Beglaubigung. Bei Fremdfinanzierung erhöht sich das Honorar auf 1,8 % vom Kaufpreis zzgl. 20 % USt., Barauslagen und Beglaubigung.
Sämtliche Ihnen hiermit übermittelte Angaben wurden uns, seitens des Abgebers bekannt gegeben. Eine Garantie auf Richtigkeit und Vollständigkeit können wir nicht übernehmen.
Gerne lassen wir Ihnen bei ernsthaftem Interesse - vor Kaufanbotlegung - weitere vertraulichen Dokumente zu dieser Liegenschaft zukommen, welche nicht veröffentlicht werden dürfen.
Überzeugen Sie sich selbst von diesem überaus attraktiven Objekt. Für Besichtigungen und nähere Informationen stehen wir Ihnen gerne zur Verfügung!
Frau Marie-Louise Eisenburger
national - Tel: 0676 605 9800
international - Tel: +43 676 605 9800
e-mail: eisenburger@lifestyle-properties.at
Wir weisen darauf hin, dass zwischen dem Vermittler und dem zu vermittelnden Dritten ein familiäres oder wirtschaftliches Naheverhältnis besteht.
Der Vermittler ist als Doppelmakler tätig. Infrastruktur / EntfernungenGesundheitArzt <500mApotheke <500mKlinik <500mKrankenhaus <500mKinder & SchulenSchule <500mKindergarten <500mUniversität <1.000mHöhere Schule <500mNahversorgungSupermarkt <500mBäckerei <500mEinkaufszentrum <1.500mSonstigeGeldautomat <500mBank <500mPost <500mPolizei <500mVerkehrBus <500mU-Bahn <500mStraßenbahn <500mBahnhof <500mAutobahnanschluss <3.500mAngaben Entfernung Luftlinie / Quelle: OpenStreetMap

Marie-Louise Eisenburger
Lifestyle Properties
eisenburger@lifestyle-properties.atEnergie/Heizung
Heizungsart: Etagenheizung
Befeuerung: Gas
HWB (kWh/m²/Jahr): 125.7
HWB Energieklasse: D
fGEE: 2.15
fGEE Energieklasse: D