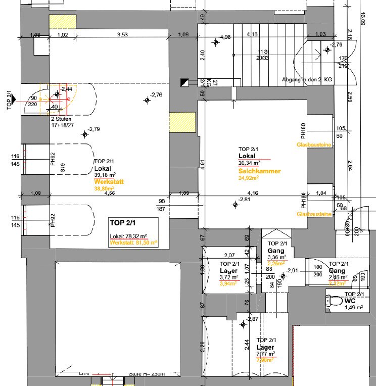
78.32 m² 335.000 €

Befristet vermieteter Salon/Geschäftsfläche in Toplage Nahe der Schottentor - Ideales Investment

23.11.2025

Objekt Standort

Währinger Straße , A-1090 Wien,Alsergrund

marker Entfernung sowie Fahrtzeit (PKW) zu deinem Standort berechnen
oder
Die Route konnte nicht ermittelt werden

Allgemeine Informationen

Objekt ID: 5735/3430
  • Vergabeart
    Kauf
  • Kaufpreis
    335.000 €
  • Nutzfläche
    78.32 m²
  • Provision
    3% des Kaufpreises zzgl. 20% USt.

Ausstattung

  • Abstellraum

Beschreibung

Befristet vermieteter Salon/Geschäftsfläche in Toplage Nahe der Schottentor - Ideales Investment

Befristet vermietete Gewerbefläche als Investment in Toplage im 9. Bezirk!

Die Geschäftsfläche mit tollem Gewölbe liegt im Erdgeschoss in einem klassischen Wiener Zinshaus, direkt im Geschäftsviertel des begehrten 9. Bezirkes  bietet diese Immobilie die ideale Grundlage mit viel Potential für ein Verkaufslokal oder Werkstatt.

Das Erdgeschosslokal in einem gepflegten Gebäude punktet mit einer flexiblen Raumgestaltung. Weiters ist eine Toilette im rückwertigen Teiles des Lokales vorhanden, ebenso 2 Lagerräume.

Die Lage ist unschlagbar, direkt auf der Währinger Straße - Nähe Votivkireche. Umgeben von beliebten Lokalen und Geschäften zieht diese Gegend zahlreiche Besucher und Passanten an. Die Straßenbahnlinie befindet sich direkt vor der Tür. Auch die U-Bahn-Station „Schottentor“ ist in wenigen Gehminuten erreichbar.

Tolle gute Gelegenheit für langfristiges Investment, da das Lokal sehr gut vermietet ist. 

Mieteinnahmen: 1.400,22 € monatlich

Jahresmiete netto: rd. 16.803,00 €  (Rendite 5,02%)

Vermietet bis 31.07.35

 

Raumaufteilung:

- 2 Räume

- WC

- Lagerräume

 

 

Öffentliche Verkehrsmittel:

- U2-Station "Schottentor"

- Straßenbahnlinien 1, 40, 41, 

 

Für eine unverbindliche Besichtigung:

Wir freuen uns Ihnen das Objekt jederzeit persönlich vorzustellen zu dürfen.

 

Nebenkosten: 



Grundbucheintragung: 1,1% d.KP. 

Grunderwerbssteuer: 3,5% d.KP.

Maklerprovision: 3% d.KP. + 20% USt. 

Die Errichtung und Durchführung des Kaufvertrages erfolgt durch Tiefenthaler Gnesda Rechtsanwälte GmbH, Nähere Informationen zum Honorar werden bei Interesse am Objekt übermittelt.



 

Maklervereinbarung: Wir ersuchen um Verständnis, dass wir bei Anfragen zur Objektadresse, bzw. Besichtigungstermin aufgrund neuer gesetzlicher Bestimmungen Unterlagen erst dann zusenden können, wenn Sie vorab bestätigen, dass Sie unser sofortiges Tätigwerden wünschen und über Ihre Rücktrittsrechte aufgeklärt wurden. Sie bekommen nach Ihrer schriftlichen Anfrage mit vollständiger Angabe des Namens, Anschrift und Telefonnummer ein E-Mail, in dem Sie diese Punkte bestätigen müssen.


Haftungsausschluss:  Wir weisen darauf hin, dass sämtliche Daten im vorliegenden Angebot sowie die von unserem Büro an Sie weitergegebenen Auskünfte, vom Eigentümer der Immobilie zur Verfügung gestellt wurden. Ebenso sind Informationen von Dritten (z.B. behördliche Informationen) eingeholt worden, auch für diese können wir unsererseits keinerlei Haftung für deren uneingeschränkte Richtigkeit übernehmen.
Wir weisen darauf hin, dass zwischen dem Vermittler und dem zu vermittelnden Dritten ein familiäres oder wirtschaftliches Naheverhältnis besteht.Infrastruktur / EntfernungenGesundheitArzt <250mApotheke <250mKlinik <500mKrankenhaus <750mKinder & SchulenSchule <500mKindergarten <750mUniversität <250mHöhere Schule <750mNahversorgungSupermarkt <250mBäckerei <250mEinkaufszentrum <2.000mSonstigeGeldautomat <250mBank <250mPost <500mPolizei <500mVerkehrBus <250mU-Bahn <500mStraßenbahn <250mBahnhof <500mAutobahnanschluss <2.500mAngaben Entfernung Luftlinie / Quelle: OpenStreetMap
Agent Name

Christina Carlsen

THURNER REALITÄTEN GMBH

carlsen@thurner-realitaeten.at

Energie/Heizung

Befeuerung: Elektro

HWB (kWh/m²/Jahr): 211.9

HWB Energieklasse: F

fGEE: 2.91

fGEE Energieklasse: E

Anbieter

Agent Name

Christina Carlsen

carlsen@thurner-realitaeten.at

Anfragen

Ergebnisse werden geladen ...