72.21 m² 399.000 € 3.5 Zimmer

Süd-Balkon ☀️ | Perfekte 3-Zimmer-Neubauwohnung mit 72 m² – Jetzt besichtigen!

15.03.2026

Objekt Standort

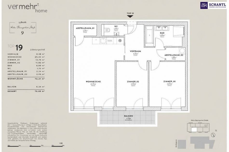
Anton-Baumgartner-Straße , A-1230 Wien

marker Entfernung sowie Fahrtzeit (PKW) zu deinem Standort berechnen
oder
Die Route konnte nicht ermittelt werden

Allgemeine Informationen

Objekt ID: 296039
  • Vergabeart
    Kauf
  • Kaufpreis
    399.000 €
  • Wohnfläche
    72.21 m²
  • Nutzfläche
    75.33 m²
  • Zimmer
    3.5

Ausstattung

  • Einbauküche
  • Fahrstuhl
  • Barrierefrei
  • Abstellraum

Freiflächen

  • Balkon

Beschreibung

Süd-Balkon ☀️ | Perfekte 3-Zimmer-Neubauwohnung mit 72 m² – Jetzt besichtigen!

Süd-Balkon ☀️ | Perfekte 3-Zimmer-Neubauwohnung mit 72 m² – Jetzt besichtigen!


Sonne am Balkon, ein perfekter Grundriss und hochwertige Ausstattung – diese attraktive Neubauwohnung vereint Wohnkomfort, Helligkeit und durchdachte Planung auf rund 72 m² Wohnfläche.


In einem gepflegten Neubau in der Anton-Baumgartner-Straße im 23. Wiener Gemeindebezirk gelangt diese hochwertig ausgestattete 3-Zimmer-Wohnung mit Süd-Balkon zum Verkauf.


Die Wohnung befindet sich im 2. Stock und überzeugt durch eine besonders effiziente Raumaufteilung. Herzstück ist die großzügige Wohnküche, ausgestattet mit einer Designerküche mit eleganten Holzfronten und hochwertiger Stein-Arbeitsplatte, die modernes Design mit Funktionalität verbindet.


Zwei gut geschnittene Schlafzimmer bieten vielseitige Nutzungsmöglichkeiten – ideal als Schlafzimmer, Kinderzimmer oder Homeoffice.


Das Badezimmer wurde ebenfalls hochwertig ausgeführt und verfügt über eine maßgefertigte, großzügige Duschkabine sowie ein Doppelwaschbecken mit edlem Unterschrank aus echtem Holz, was dem Raum eine besonders hochwertige Atmosphäre verleiht.


Ein separates WC, eine Speis sowie ein zusätzlicher Abstellraum sorgen für praktischen Stauraum im Alltag.


Der Süd-Balkon mit ca. 6,24 m² erweitert den Wohnraum nach außen und bietet einen angenehmen Platz zum Entspannen.


Zur Wohnung gehört außerdem ein Kellerabteil, das zusätzlichen Stauraum bietet. Im Haus stehen den Bewohnern zudem Fahrradabstellräume zur Verfügung.




Highlights



  • Neubau

  • Designerküche mit Steinplatte und Holzfronten 

  • Maßgefertigte großzügige Duschkabine

  • Doppelwaschbecken mit hochwertigem Echtholz-Unterschrank

  • Praktische 3-Zimmer-Aufteilung

  • Süd-Balkon ca. 6,24 m²

  • Bad und WC getrennt

  • Speis und zusätzlicher Abstellraum

  • Kellerabteil

  • Fahrradraum im Haus

  • Gute Infrastruktur und Verkehrsanbindung

  • Tiefgarage im Haus vorhanden




? Kaufpreis: € 399.000


Interesse geweckt?
Kontaktieren Sie uns gerne für weitere Informationen oder zur Vereinbarung eines Besichtigungstermins.


Eine attraktive Möglichkeit, in den Wiener Immobilienmarkt einzusteigen – sowohl zur Eigennutzung als auch als nachhaltige Kapitalanlage.


Jetzt besichtigen – bevor es zu spät ist!


Bei konkretem Interesse senden wir Ihnen sehr gerne weiterführende Dokumente zu, wie:


o Grundbuchauszug


o Wohnungseigentumsvertrag


o Nutzwertgutachten


o Eigentümerversammlungsprotokoll (Falls vorhanden) etc...


www.schantl-ith.at


Wir weisen darauf hin, dass zwischen dem Vermittler und dem zu vermittelnden Dritten ein familiäres oder wirtschaftliches Naheverhältnis besteht.


Infrastruktur / Entfernungen

Gesundheit
Arzt <250m
Apotheke <250m
Klinik <1.500m
Krankenhaus <1.500m
Kinder & Schulen
Schule <1.000m
Kindergarten <1.000m
Universität <3.500m
Höhere Schule <3.000m
Nahversorgung
Supermarkt <250m
Bäckerei <1.250m
Einkaufszentrum <1.000m
Sonstige
Geldautomat <1.000m
Bank <1.000m
Post <1.250m
Polizei <250m
Verkehr
Bus <250m
U-Bahn <1.250m
Straßenbahn <1.250m
Bahnhof <250m
Autobahnanschluss <500m
Angaben Entfernung Luftlinie / Quelle: OpenStreetMap

Agent Name

Dejan Ljepoja, MBA

Schantl ITH Immobilientreuhand GmbH

dejan.ljepoja@schantl-ith.at

Energie/Heizung

Befeuerung: Gas

HWB (kWh/m²/Jahr): 30.31

HWB Energieklasse: B

fGEE: 0.79

fGEE Energieklasse: A

Anbieter


Anfragen

Ergebnisse werden geladen ...