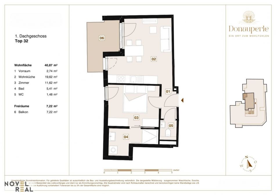
40.87 m² 335.000 € 2 Zimmer

NEU | Exklusive Aktion – Küche inklusive | Jetzt sichern! "DONAU PERLE" ERSTBEZUG! HELLE 2-ZIMMER IM DACHGESCHOSS MIT SONNENBALKON UND PARKBLICK!

23.11.2025

Objekt Standort

A-1210 Wien

marker Entfernung sowie Fahrtzeit (PKW) zu deinem Standort berechnen
oder
Die Route konnte nicht ermittelt werden

Allgemeine Informationen

Objekt ID: 6105
  • Vergabeart
    Kauf
  • Kaufpreis
    335.000 €
  • Wohnfläche
    40.87 m²
  • Nutzfläche
    40.87 m²
  • Zimmer
    2
  • Provision
    3% des Kaufpreises zzgl. 20% USt.

Ausstattung

  • Klimatisiert
  • Fahrstuhl
  • Garage

Freiflächen

  • Balkon

Beschreibung

NEU | Exklusive Aktion – Küche inklusive | Jetzt sichern! "DONAU PERLE" ERSTBEZUG! HELLE 2-ZIMMER IM DACHGESCHOSS MIT SONNENBALKON UND PARKBLICK!

EIN AUSSERGEWÖHNLICHES WOHNPROJEKT VERDIENT EIN AUSSERGEWÖHNLICHES ANGEBOT

Mit der bevorstehenden Fertigstellung dieses besonderen Bauvorhabens öffnet sich für Käufer ein Zeitfenster, das echten Mehrwert schafft.
Wer bis zum 30.06.2026 ein Kaufanbot stellt, erhält ein exklusives Vorteilspaket, das den Einzug nicht nur erleichtert, sondern finanziell wie emotional aufwertet.

Ihre exklusiven Vorteile während der Aktionszeit


Einbauküche bereits inkludiert
Stilvoll geplant, perfekt integriert – ein sofortiger Qualitätsgewinn ohne Zusatzkosten.
Betriebskosten für die ersten 3 Monate übernimmt der Bauträger
Ein finanzieller Startvorteil, der den Einzug spürbar erleichtert.
1,1 % Grundbucheintragungsgebühr entfällt bei Kaufvertragsunterzeichnung bis 30.06.2026
Ein gesetzlich befristeter Bonus, wenn Sie danach einen Hauptwohnsitz anmelden


Ein Angebot, das nur jene erhalten, die rechtzeitig handeln. 

Solche Vorteile sind selten. Solche Immobilien noch seltener.
Wer jetzt entscheidet, sichert sich nicht nur ein neues Zuhause – sondern ein Privileg, das es so kein zweites Mal geben wird."DONAU PERLE" - IHR WOHNTRAUM MIT MEHRWERT

Willkommen in Floridsdorf – hier entsteht ein Zuhause, das weit mehr ist als nur vier Wände. Ein Ort zum Wohlfühlen, Durchatmen und Ankommen. Dieses innovative Neubauprojekt vereint modernen urbanen Lifestyle mit der Ruhe und Schönheit der Natur – eine außergewöhnliche Kombination, die Wohnqualität auf höchstem Niveau garantiert.

Ob beim Einkaufsbummel am traditionsreichen Floridsdorfer Markt oder im Einkaufszentrum SCN, bei erholsamen Stunden an der Alten oder Neuen Donau, sportlichen Aktivitäten am Golfplatz, auf den Padelplätzen oder im Schwimmbad, oder bei einem Glas Wein in den idyllischen Kellergassen von Stammersdorf – all dies befindet sich in unmittelbarer Nähe. Eine hervorragende Infrastruktur, die exzellente Verkehrsanbindung inner- und außerhalb Wiens sowie die naturnahe Umgebung machen diesen Standort besonders attraktiv.

Die 34 Eigentumswohnungen sind individuell durchdacht und bieten Freiflächen wie Gärten, Loggien, Balkone oder Terrassen. Mit Größen zwischen 42 und 105 m² (2 bis 4 Zimmer) verbinden sie zeitgemäßen Wohnkomfort mit höchsten Ansprüchen.

 

BESONDERHEITEN, DIE BEGEISTERN

Nachhaltig leben:


Energieeffiziente Heizung und Warmwasseraufbereitung über Sole-Wasser-Wärmepumpen aus Erdwärme
Photovoltaikanlage, die einen erheblichen Teil des allgemeinen Stromverbrauchs abdeckt
Vollwärmeschutz und innovative Technik, wie Betonkernaktivierung 


Komfort genießen:


Geräuschlose Deckenkühlung und Vorbereitung für zusätzliche Klimatisierung in den Dachgeschoßen
Große, bodentiefe Fensterfronten und lichtdurchflutete Räume
Hochwertige Materialien, präzise Verarbeitung, zeitloses Design


Sicherheit & Individualität:


Planen und bauen – alles aus einer Hand. Und das auf höchstem Niveau 
Sie profitieren von maximaler Transparenz, Sicherheit und Qualität 
Sonderwünsche bei Ausstattung und Grundriss können, soweit technisch möglich, berücksichtigt werden - ein weiterer Vorteil für Schnellentschlossene!


 

TIEFGARAGE MIT 14 STELLPLÄTZEN SAMT E-LADESTATIONEN

Ein Stellplatz kann bei Bedarf zusätzlich erworben werden.

 

 

ERSTBEZUG! MODERNE 2-ZIMMER-WOHNUNG MIT BALKON UND TRAUMHAFTEM PARKBLICK!

Diese außergewöhnliche 2-Zimmer-Wohnung im 1. Dachgeschoss überzeugt durch ihren großzügigen Grundriss und dem Balkon. Die beiden lichtdurchfluteten Räume mit bodentiefen, hellen Fensterfronten schaffen ein Ambiente voller Komfort und bieten ein bemerkenswertes Maß an Lebensqualität.


geräumige Wohn- Küche mit Fenster und direktem Ausgang zum herrlichen Balkon
elegantes Badezimmer mit Walk-in-Dusche, Toilette und Fenster
Gäste-WC
zentraler Vorraum 
ruhiges Masterbedroom mit En-Suite-Bad


 

AUSSTATTUNG FÜR HÖCHSTE ANSPRÜCHE


Fußbodenheizung und Deckenkühlung für ein perfektes Raumklima
außenliegenden, elektrischen Raffstores zur Beschattung & Verdunkelung
3-fach verglaste Wärmeschutzfenster mit Aludeckschale
Loggia mit Glasgeländer und Edelstahlprofilen
exklusive Innentüren (flächenbündig mit Holzzarge)
Mehrschicht-Parkettböden - Eichen Landhausdielen
hochwertige Sanitärausstattung (u.a. Laufen Kartell, Laufen Lua) 
Regendusche
exklusiver Handtuchheizkörper
bodenebene Walk-in-Dusche mit Echtglas-Trennwand
hochqualitative, italienische, großflächige Fliesen (60x60 cm) aus Feinsteinzeug
einbruchshemmende Sicherheitstüre (WK III)
Video-Gegensprechanlage


 

URBANE WOHNOASE AM PARK - IN DONAUNÄHE -  MIT PERFEKTER VERKEHRSANBINDUNG UND INFRASTUKTUR

Das Wohnprojekt befindet sich in einer Toplage im zentralen Herzen von Floridsdorf. Dieser Bezirk ist bekannt für seine angenehme Mischung aus urbanem Flair und grünen Rückzugsorten, was ihn zu einer der begehrtesten Wohngegenden in Wien macht. Hier wohnen Sie zentral und dennoch dem Grünen so nah. Alles, was Sie brauchen, liegt in fußläufiger Entfernung: öffentliche Verkehrsmittel, Markt, Einkaufszentrum, Möbelhäuser, Baumarkt, Restaurants, Schulen, Ärzte und Parks.

Die Straßenbahnen 25, 26, 30, 31, 33 und der Bus 36a befinden sich fast vor der Haustüre. So erreichen Sie in wenigen Minuten den Bahnhof Floridsdorf (U-Bahnlinie U6, div. S-Bahn, Regionalzüge) sowie die Alte und Neue Donau und gelangen mit der Straßenbahn 31 rasch und ohne Umsteigen direkt in die Wiener Innenstadt oder ins Weinbaugebiet Stammersdorf. Die Straßenbahnlinie 26 ist die perfekte Verbindung zwischen dem 21. und 22. Bezirk und bietet somit eine direkte Anbindung an die Vienna International School, die Japanische Internationale Schule, die veterinärmedizinische Universität und den Campus Donaufeld. Mit der Schnellbahn vom Bahnhof Floridsdorf erreichen sie auch ohne Umsteigen den Flughafen Wien. Es gibt wahrscheinlich keinen Standort der eine bessere öffentliche Verkehrsanbindung in und rund um Wien anbietet.

Die Nähe zu A22, B3 und B7 sorgt für optimale Anbindung in alle Richtungen.

Zahlreiche Kindergärten, Schulen und Spielplätze bieten Familien hervorragende Bildungs- und Freizeitmöglichkeiten. 

Die Umgebung bietet ideale Voraussetzungen für Erholungssuchende, Familien, Hundebesitzer und sportlich Aktive. Neben zahlreichen Parks, Sportvereinen und Fitnessstudios überzeugt insbesondere die Nähe zur Alten und Neuen Donau: Hier erwarten Sie der Floridsdorfer Wasserpark, das Angelibad sowie die weitläufige Erholungslandschaft der Donauinsel. Auch der Marco Polo Golfplatz und moderne Padelplätze sind mit dem Bus in rund 20 Minuten bequem erreichbar. Darüber hinaus befindet sich das Floridsdorfer Hallenbad mit angeschlossener Sauna in fußläufiger Entfernung.

 

FINANZIERUNGSSERVICE - IHRE WUNSCHIMMOBILIE OPTIMAL FINANZIERT

Unsere Finanzierungsexperten vergleichen unabhängig & unverbindlich die besten Kreditangebote für Sie – und helfen Ihnen, Zeit und Geld zu sparen.

Die Aufstellung der verfügbaren Wohneinheiten samt Kaufpreisen finden Sie auch in entsprechenden pdf-Datei.

Senden Sie uns Ihre Anfrage per Mail und Sie erhalten umgehend alle detaillierten Informationen samt Plänen zu diesem Projekt.

Für etwaige Rückfragen stehen wir Ihnen selbstverständlich jederzeit auch gerne telefonisch zur Verfügung.

 

ON REQUEST YOU WILL GET ANY INFORMATION IN ENGLISH!

ПО ЗАПРОСУ МЫ ПРЕДОСТАВИМ ВСЮ ИНФОРМАЦИЮ НА РУССКОМ!

 

Alle Angaben basieren alleinig auf Informationen, die uns von unserem Auftraggeber übermittelt wurden. Trotz aller Sorgfalt können wir für die Richtigkeit, Vollständigkeit und Aktualität dieser Angaben keine Gewähr übernehmen. Jegliche Weitergabe der übermittelten Daten an Dritte ist nicht gestattet. Der Maklervertrag kommt durch schriftliche Vereinbarung oder Inanspruchnahme unserer Maklertätigkeit zustande. Der Makler kann als Doppelmakler tätig werden. Sollte das von uns nachgewiesene Objekt bereits bekannt sein, teilen sie uns dies bitte unverzüglich mit.

Das Vermittlungshonorar ist ausschließlich bei Zustandekommen eines gültigen Rechtsgeschäfts fällig. Es wird ausdrücklich auf die Nebenkostenübersicht hingewiesen. Bei den Visualisierungen und Abbildungen der Immobilie (insbesondere von Inneneinrichtungen) kann es sich um Symbolfotos bzw. fototechnisch optimierte Fotos handeln.

Hiermit weisen wir auf das Bestehen eines familiären und/oder wirtschaftlichen Naheverhältnisses zum Verkäufer hin

 

 

 

 

 

 

 

 

 

 

 Infrastruktur / EntfernungenGesundheitArzt <500mApotheke <500mKlinik <1.000mKrankenhaus <1.000mKinder & SchulenSchule <500mKindergarten <500mUniversität <1.500mHöhere Schule <1.000mNahversorgungSupermarkt <500mBäckerei <500mEinkaufszentrum <500mSonstigeGeldautomat <500mBank <500mPost <500mPolizei <1.000mVerkehrBus <500mU-Bahn <1.000mStraßenbahn <500mBahnhof <500mAutobahnanschluss <500mAngaben Entfernung Luftlinie / Quelle: OpenStreetMap
Agent Name

Ulrike Krempl

Novel Real Immobilien GmbH

uk@novel-real.at

Anbieter


Anfragen

Ergebnisse werden geladen ...