67 m²
1.237,88 €
3 Zimmer
3-Zimmer mit Balkon und Gemeinschaftsgarten ab OKTOBER 2025!
28.09.2025
Objekt Standort
A-1130 Wien
oder
Allgemeine Informationen
Objekt ID: 3804-
VergabeartMiete
-
monatliche kosten1.237,88 €
-
Kaution4500€
-
Nutzfläche67 m²
-
Zimmer3
-
ProvisionGemäß Erstauftraggeberprinzip bezahlt der Abgeber die Provision.
Ausstattung
-
Klimatisiert
-
Fahrstuhl
-
Garage
Freiflächen
-
Balkon
-
Garten
Beschreibung
3-Zimmer mit Balkon und Gemeinschaftsgarten ab OKTOBER 2025!
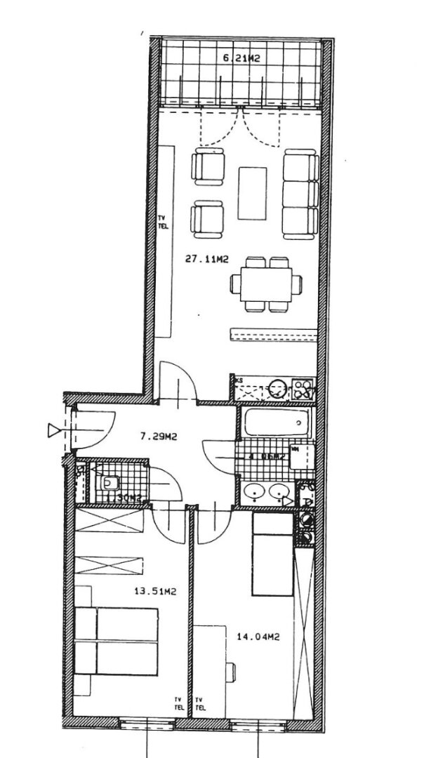
3 Zimmer Wohnung im dritten Stock mit Balkon und Gemeinschaftsgarten!Beschreibung:
Die Wohnung befindet sich im Dritten Obergeschoss mit Lift im 13. Bezirk von Wien
Die knapp 67 m² große 3-Zimmer-Wohnung sucht einen neuen Nachmieter ab 01.10.2025!
Beim Betreten der Wohnung erwartet Sie ein geräumiges Vorzimmer, welches Sie in jegliche Räume führt! Auf der rechten Seite befindet sich das separatgelegene WC, geradeaus vom Eingang das mit einer Badewanne, Handwaschbecken und einem Waschmaschinenanschluss ausgestattete Badezimmer.
Zu Ihrer rechten Seite befinden sich die beiden separaten (Schlaf)zimmer, welche sich ebenfalls gut als Arbeits- oder Ankleidezimmer eignen! Linkerhand des Vorzimmers öffnet sich das großzügige Wohnzimmer mit integrierter Wohnküche. Von hier aus gelangen Sie ebenfalls auf den etwa 6 m² großen Balkon!
Geheizt wird in der Anlage mittels Fernwärme.
Im Haus steht Ihnen die Nutzung der Waschküche, ein Fahrrad- und ein Kinderwagenraum, ein Lift, sowie ein Gemienschaftsgarten zur Verfügung.
Bei Bedarf und Freiwerden kann auch zusätzlich ein Garagenstellplatz angemietet werden.
Konditionen:
Vermietet wird auf 5 Jahre ab voraussichtlich dem 01.10.2025
Kündigungsverzicht: 1 Jahr; Kündigungsfrist: 3 Monate;
Gesamtmiete (inkl. BK, Heizkosten, Warmwasser und den anteiligen Steuern): € 1.495,81
Kaution: € 4.500 // Vertragserrichtungskosten: € 360,- // provisionsfrei für den Mieter!
Strom wird auf den Mieter umgemeldet.
TV und Internet sind nach Bedarf selbst an- und wieder abzumelden.
Der Abschluss einer Haushaltsversicherung wird vor dem Einzug empfohlen.
Kontakt
Bitte beachten Sie, dass wir aufgrund der Nachweispflicht gegenüber dem Eigentümer nur Anfragen mit vollständiger Angabe der Anschrift bearbeiten können.
Wir senden Ihnen gerne weitere und detaillierte Beschreibungen, sowie Besichtigungstermine zu, sobald wir Ihre Anfrage erhalten haben.
Wir bitten Sie daher um eine schriftliche Anfrage, entweder über die jeweiligen Plattformen oder direkt per Mail an: stifter@pr-immobilien.at
Weitere Informationen und alle Objekte finden Sie unter: www.pr-immobilien.at
Noch nichts gefunden? Wir informieren Sie über geeignete Immobilienangebote noch vor allen anderen.
Legen Sie jetzt Ihren individuellen Suchagenten unter folgendem Link an. Wir schicken Ihnen passende Immobilien exklusiv vorab zu.
Suchagent anlegen - https://pr-immobilien-real-estate.service.immo/registrieren/de
Der Immobilienmakler erklärt, dass er – entgegen dem in der Immobilienwirtschaft üblichen Geschäftsgebrauch des Doppelmaklers – einseitig nur für den Vermieter tätig ist.Infrastruktur / EntfernungenGesundheitArzt <500mApotheke <500mKlinik <1.000mKrankenhaus <1.500mKinder & SchulenSchule <500mKindergarten <500mUniversität <1.500mHöhere Schule <3.500mNahversorgungSupermarkt <500mBäckerei <500mEinkaufszentrum <3.000mSonstigeGeldautomat <500mBank <500mPost <500mPolizei <1.000mVerkehrBus <500mU-Bahn <500mStraßenbahn <500mBahnhof <500mAutobahnanschluss <4.500mAngaben Entfernung Luftlinie / Quelle: OpenStreetMap


Marissa Stifter
PR-IMMOBILIEN / REAL ESTATE
stifter@pr-immobilien.atEnergie/Heizung
Heizungsart: Fernwärme
HWB (kWh/m²/Jahr): 53.6
HWB Energieklasse: C
fGEE: 1.24
fGEE Energieklasse: C