76.58 m² 449.000 € 3 Zimmer

Sanierte Altbauwohnung nur wenige Schritte bis zum Prater

07.11.2025

Objekt Standort

A-1020 Wien

marker Entfernung sowie Fahrtzeit (PKW) zu deinem Standort berechnen
oder
Die Route konnte nicht ermittelt werden

Allgemeine Informationen

Objekt ID: 6268/196
  • Vergabeart
    Kauf
  • Kaufpreis
    449.000 €
  • Wohnfläche
    76.58 m²
  • Zimmer
    3

Ausstattung

  • Einbauküche
  • Barrierefrei

Beschreibung

Sanierte Altbauwohnung nur wenige Schritte bis zum Prater

Die moderne, helle Wohnung mit einer Wohnfläche von 77 m² befindet sich im 3. Stock eines renovierten Gründerzeithauses (Baujahr ca. 1890) im Herzen des 2. Bezirks – nur wenige Gehminuten vom Wiener Prater entfernt.


Die Wohnung wurde 2019 umfassend saniert: durchdachter Grundriss, helle Räume und hochwertige Ausstattung schaffen ein Gefühl von Harmonie und Komfort.


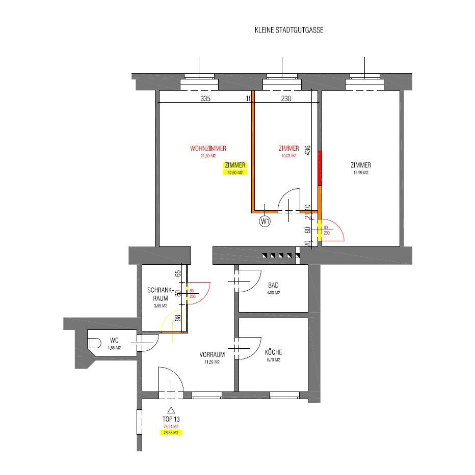
Raumaufteilung:


• Vorraum ca. 11 m²


• Wohnzimmer 22 m² mit Zugang zu Schlafzimmer und Kinder-/Arbeitszimmer


• Schlafzimmer 16 m²


• Kinderzimmer/Gästezimmer 10 m²


• Garderobe 4 m²


• Küche mit Essbereich 7 m² und Fenster


• Badezimmer mit Badewanne und Waschmaschinenanschluss (4,5 m²)


• Separates WC (1,5 m²)


Alle Räume sind zentral begehbar und lichtdurchflutet, was der Wohnung eine besonders angenehme Atmosphäre verleiht.


Das Haus:


Das Gebäude wurde umfassend saniert:


In den Jahren 2021–2022 wurden Fassade, Innenhof, Elektrik in den Allgemeinbereichen sowie der Aufzug erneuert und der Dachboden ausgebaut.


Das Haus ist gepflegt, die Rücklagen sind solide, und derzeit sind keine weiteren Sanierungsarbeiten geplant.


Weitere Informationen:


• Etage: 3. Stock / mit Aufzug


• Heizung: Gasetagenheizung


• Baujahr: ca. 1890


• Energieausweis: HWB 74,6 kWh/m²a


Monatliche Kosten:


• Betriebskosten: € 223,45


• Rücklage: € 97,95


Gesamt: € 321,40


• Bezug: nach Vereinbarung


Diese Wohnung ist ideal für alle, die den Wiener Altbau-Charme, modernen Komfort und zentrale Lage zu schätzen wissen – perfekt für ein stilvolles und bequemes Leben in Wien.


Provision 3% zzgl. 20% USt


Nutzen Sie diese Gelegenheit und vereinbaren Sie eine Besichtigung!


Tel.: 069910975030


Email: iakovleva@immoloewin.com


Elena Iakovleva


Die Beschreibung ergibt sich aus vom Verkäufer erhaltenen Informationen und ist ohne Gefahr. Änderungen und Irrtümer vorbehalten.


Der Vermittler ist als Doppelmakler tätig.


Infrastruktur / Entfernungen

Gesundheit
Arzt <500m
Apotheke <500m
Klinik <500m
Krankenhaus <1.000m
Kinder & Schulen
Schule <500m
Kindergarten <500m
Universität <1.000m
Höhere Schule <1.500m
Nahversorgung
Supermarkt <500m
Bäckerei <500m
Einkaufszentrum <1.500m
Sonstige
Geldautomat <500m
Bank <500m
Post <500m
Polizei <500m
Verkehr
Bus <500m
U-Bahn <500m
Straßenbahn <500m
Bahnhof <500m
Autobahnanschluss <2.500m
Angaben Entfernung Luftlinie / Quelle: OpenStreetMap

Agent Name

Elena Iakovleva

Immolöwin GmbH

iakovleva@immoloewin.com

Energie/Heizung

Heizungsart: Etagenheizung

Befeuerung: Gas

HWB (kWh/m²/Jahr): 74.6

HWB Energieklasse: C

fGEE: 1.93

fGEE Energieklasse: D

Anbieter

Agent Name

Elena Iakovleva

iakovleva@immoloewin.com

Anfragen

Ergebnisse werden geladen ...