438.6 m² 490.000 €

Anleger aufgepasst! Interessantes Paket aus Büro- und Lagerflächen + TOP Lage in 1160 Wien + Renoviertes Gebäude + Beste Infrastruktur und Anbindung!

19.01.2026

Objekt Standort

Hasnerstraße , A-1160 Wien

marker Entfernung sowie Fahrtzeit (PKW) zu deinem Standort berechnen
oder
Die Route konnte nicht ermittelt werden

Allgemeine Informationen

Objekt ID: 293268
  • Vergabeart
    Kauf
  • Kaufpreis
    490.000 €
  • Nutzfläche
    438.6 m²
  • Provision
    3% des Kaufpreises zzgl. 20% USt.

Ausstattung

  • Fahrstuhl
  • Abstellraum

Freiflächen

  • Garten

Beschreibung

Anleger aufgepasst! Interessantes Paket aus Büro- und Lagerflächen + TOP Lage in 1160 Wien + Renoviertes Gebäude + Beste Infrastruktur und Anbindung!

Anleger aufgepasst! Interessantes Paket aus Büro- und Lagerflächen + TOP Lage in 1160 Wien + Renoviertes Gebäude + Beste Infrastruktur und Anbindung!


Zum Verkauf steht ein attraktives Paket aus Büro - und Lagerflächen in 1160 Wien!


Facts:


+ Die Flächen sind befristet vermietet bis 30.06.2028. Eine vorzeitige Rückstellung bis 30.06.2026 gilt als sehr wahrscheinlich!


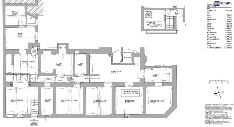
+ Nutzfläche: ca. 430,71m² + ca. 15,67m² (gemäß Nutzwertgutachten)


+ Im Kellerbereich sind Einlagerungsräume zu den einzelnen WE-Objekten zugeordnet.


+ Mieteinnahmen: € 955,80.- netto/Monat


+ Im Hofgebäude gibt es laut Architekt ein Ausbaupotential auf ca. 115m² und ergibt dies somit ein weiteres Potential von ca. 69,39m².


Aufstellung der WE-Objekte:


+ TOP 1: ca. 253,38m² (davon EG 10,50m² + ST 242,88m²)


+ TOP 2: ca. 45,61m² + 15,67m² Garten


+ TOP 4: ca. 63,23m²


+ TOP 5: ca. 68,49m² (Ecklokal)


Kaufpreis: € 490.000.-


Gerne stellen wir Ihnen bei Interesse ausführliche Unterlagen und Infomationen zur Verfügung!


www.schantl-ith.at


Wir weisen darauf hin, dass zwischen dem Vermittler und dem zu vermittelnden Dritten ein familiäres oder wirtschaftliches Naheverhältnis besteht.


Der Vermittler ist als Doppelmakler tätig.


Infrastruktur / Entfernungen

Gesundheit
Arzt <250m
Apotheke <250m
Klinik <500m
Krankenhaus <1.250m
Kinder & Schulen
Schule <250m
Kindergarten <250m
Universität <1.250m
Höhere Schule <750m
Nahversorgung
Supermarkt <250m
Bäckerei <250m
Einkaufszentrum <500m
Sonstige
Geldautomat <250m
Bank <250m
Post <500m
Polizei <250m
Verkehr
Bus <250m
U-Bahn <250m
Straßenbahn <250m
Bahnhof <250m
Autobahnanschluss <4.250m
Angaben Entfernung Luftlinie / Quelle: OpenStreetMap

Agent Name

Samir Agha-Schantl

Schantl ITH Immobilientreuhand GmbH

samir.agha-schantl@schantl-ith.at

Anbieter


Anfragen

Ergebnisse werden geladen ...