57.91 m² 459.000 € 2 Zimmer

VERKAUFSSTART - PREMIUM 2-ZIMMER-WOHNUNG MIT SCHÖNER LOGGIA!

07.04.2026

Objekt Standort

A-1170 Wien

marker Entfernung sowie Fahrtzeit (PKW) zu deinem Standort berechnen
oder
Die Route konnte nicht ermittelt werden

Allgemeine Informationen

Objekt ID: 6246
  • Vergabeart
    Kauf
  • Kaufpreis
    459.000 €
  • Wohnfläche
    57.91 m²
  • Nutzfläche
    57.91 m²
  • Zimmer
    2
  • Provision
    3% des Kaufpreises zzgl. 20% USt.

Ausstattung

  • Klimatisiert
  • Fahrstuhl
  • Barrierefrei
  • Garage
  • Abstellraum

Beschreibung

VERKAUFSSTART - PREMIUM 2-ZIMMER-WOHNUNG MIT SCHÖNER LOGGIA!

EXKLUSIVES WOHNEN MIT WEITBLICK UND MEHRWERT

Am Rande von Dornbach, dem exklusiven und charmanten Stadtteil am westlichen Stadtrand von Wien, steht ein einzigartiges Neubauprojekt kurz vor der Fertigstellung. Genießen Sie eine urbane Oase mit perfekter Infrastruktur und Verkehrsanbindung und die Nähe zu den schönsten Grünoasen Wiens mit all seinen Freizeitmöglichkeiten. Die „SANDLEITEN – Signature Homes“ liegen in unmittelbarer Nähe zum wunderschönen Kongresspark und verbinden energieeffiziente Bauweise, modernes Design, exklusive Ausstattung und durchdachte Raumkonzepte mit höchster Wohnqualität zu einem harmonischen Gesamtbild.

 

WOHNVIELFALT MIT FREIRAUM FÜR JEDES LEBENSKONZEPT

Insgesamt entstehen 29 hochwertige Eigentumswohnungen mit großzügigen Freiflächen von bis zu 80 m², sowie ein kleines Geschäftslokal. Die den oberen Geschoße begeistern mit einem beeindrucken Fernblick. 

Die Bandbreite der Wohnungen reicht von kompakten 2-Zimmerr-Einheiten ab ca. 45 m² bis hin zu großzügigen 5-Zimmer-Familienwohnungen mit bis zu 130 m² Wohnfläche – ein durchdachtes Angebot für Singles, Paare und Familien gleichermaßen.

Jeder Wohnung ist ein eigener Einlagerungsraum zugeordnet. Für zusätzlichen Komfort stehen den Bewohnern ein Fahrradraum, ein Kinderwagenabstellraum sowie ein Kleinkinderspielplatz zur gemeinschaftlichen Nutzung zur Verfügung.

Die Kaufpreise beginnen bei EUR 349.000 für eine 2-Zimmer-Wohnung und reichen bis EUR 1.633.000 für das exklusive Dachgeschoss-Penthouse.

 

13 Tiefgaragenstellplätze im Haus – mit E-Ladevorbereitung 

Bei Bedarf kann ein Pkw-Stellplatz in der hauseigenen Tiefgarage zum Kaufpreis von EUR 45.000 erworben werden.

Insgesamt stehen 13 Stellplätze zur Verfügung. Sämtliche Stellplätze sind bereits für die Installation einer E-Ladestation vorbereitet.

 

ENERGIEEFFIZIENTE BAUWEISE & HOCHWERTIGE AUSSTATTUNG - DIE FAKTEN ÜBERZEUGEN


Tiefgarage mit modernen E-Ladestationen für nachhaltige Mobilität
Fußbodenheizung und Warmwasseraufbereitung mit energieeffizienter Luft-Wasser-Wärmepumpe.
Photovoltaikanlage, die den allgemeinen Stromverbrauch umweltfreundlich deckt
Vorbereitung für Klimaanlage, die selbst an heißen Tagen ein angenehmes Raumklima schafft
Großzügige und bodentiefe Fensterfronten für lichtdurchflutete und einzigartige Räume
3-fach verglaste Wärmeschutzfenster mit Aludeckschale in bronze– maximale Energieeffizienz und langlebige Qualität
Elektrische, außenliegende Raffstores in bronze und solargesteuerte Außenbeschattung bei Dachflächenfenstern
Sicherheitstüren der Klasse WK III - reduziert Risiko und Versicherungskosten
Videotürsprechanlage mit App-Steuerung
exklusive Innentüren – flächenbündig mit Holzzargen - Klimaklasse A, und einer Höhe von 2,20 m 
hochwertiger Mehrschicht Markenparkett „Landhausdiele“ in Eiche 
hochwertige und stilvolle Sanitärausstattung, die sich deutlich vom Standard abhebt
WC-System von Fa. Tece - d.h. vorbereitet für WC-Dusche als Alternative zu Bidet uvm.
Terrassengeländer aus Echtglas mit Edelstahlprofilen
Innenwände mit doppelten Gipskartonplatten für bessere Geräuschdämmung und Stabilität
Video-Gegensprechanlage


 

ALLES AUS EINER HAND - FÜR MEHR QUALITÄT, FLEXIBILITÄT UND SICHERHEIT

Dem Bauträger ist es ein Anliegen, sich deutlich von allen anderen Anbietern zu unterscheiden und Ihnen das Beste zu bieten. Hier vereinen sich die höchsten Ansprüche an Qualität, Design und Funktionalität mit nachhaltiger und energieeffizienter Bauweise. Die Referenzprojekte sprechen für sich.

Durch die Integration der Bauleistung in das eigene Unternehmen bestehen ein hohes Eigeninteresse an einer mängelfreien und termingerechten Umsetzung und viele weitere Vorteile für die Kunden:


Mehrwert durch höhere Ausstattungsqualität zu konkurrenzfähigen Preisen
Qualitätssicherung durch kontinuierlicher Bauüberwachung
Mehr Klarheit bei Verantwortlichkeit und Haftung
Mehr Flexibilität und einen Ansprechpartner bei allfälligen Sonderwünschen (nur noch kurze Zeit möglich!)
Sichtbare Expertise - Referenzobjekte des Bauträgers ermöglichen auch die Prüfung der Qualität der tatsächlichen Bauausführung bei früheren Projekten


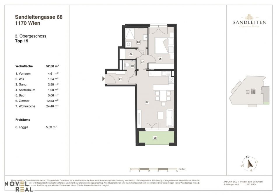
 PREMIUM 2-ZIMMER-WOHNUNG MIT SCHÖNER LOGGIA!

Top 15

Die Wohnung bietet eine kompakte und zugleich durchdachte Raumaufteilung, ideal für Singles oder Paare. Der zentrale Vorraum verbindet alle Bereiche und schafft einen klaren Zugang zu den einzelnen Räumen. Das Schlafzimmer ist ruhig gelegen und mit Parkettboden ausgestattet, ebenso wie der großzügige Wohnbereich mit integrierter Küche. Die Küche ist funktional entlang der Wand angeordnet und öffnet sich zum Wohnraum, der durch große Türen direkten Zugang zur Loggia bietet – ein geschützter Balkonbereich, perfekt für entspannte Stunden im Freien. Das Badezimmer verfügt über Dusche, Waschbecken und WC, während ein separates WC zusätzlichen Komfort bietet. Ein kleiner Abstellraum ergänzt das Raumangebot und sorgt für praktischen Stauraum. Die Wohnung ist mit modernen Installationen ausgestattet und bietet ein angenehmes Wohngefühl auf kompaktem Raum.

 

 Fakten:


ein Schlafzimmer: mit Parkettboden, ruhig gelegen
Wohnküche: offen gestaltet, mit Zugang zur Loggia
Loggia: überdachter Balkon, direkt vom Wohnbereich erreichbar
Badezimmer: mit Dusche, Waschbecken
Separates WC
Vorraum: zentraler Eingangsbereich mit Verbindung zu allen Räumen
Abstellraum: kompakt, ideal für Lagerung


 

Aus rechtlichen Gründen und aufgrund der großen Nachfragen bitten wir um Verständnis, dass wir nur Anfragen per Mail beantworten, wenn Sie uns Ihren vollständigen Namen samt Mailadresse und Mobilnummer bekanntgeben.

Alle Angaben basieren alleinig auf Informationen, die uns von unserem Auftraggeber übermittelt wurden. Trotz aller Sorgfalt können wir für die Richtigkeit, Vollständigkeit und Aktualität dieser Angaben keine Gewähr übernehmen. Jegliche Weitergabe der übermittelten Daten an Dritte ist nicht gestattet. Der Maklervertrag kommt durch schriftliche Vereinbarung oder Inanspruchnahme unserer Maklertätigkeit zustande. Der Makler kann als Doppelmakler tätig werden. Sollte das von uns nachgewiesene Objekt bereits bekannt sein, teilen sie uns dies bitte unverzüglich mit.

Die Maklergebühr ist ausschließlich bei Zustandekommen eines gültigen Rechtsgeschäfts fällig. Es wird ausdrücklich auf die Nebenkostenübersicht hingewiesen. Bei den Visualisierungen und Abbildungen der Immobilie (insbesondere von Inneneinrichtungen) kann es sich um Symbolfotos bzw. fototechnisch optimierte Fotos handeln. Hiermit weisen wir auf das Bestehen eines familiären und/oder wirtschaftlichen Naheverhältnisses zum Vermieter/Verkäufer hin. 

Für die Vereinbarung eines Termins kontaktieren Sie Frau Vassilena Valkova telefonisch unter +43 650 58 70011 oder per E-Mail: vv@novel-real.atInfrastruktur / EntfernungenGesundheitArzt <500mApotheke <500mKlinik <1.500mKrankenhaus <1.000mKinder & SchulenSchule <500mKindergarten <500mUniversität <2.000mHöhere Schule <2.000mNahversorgungSupermarkt <500mBäckerei <500mEinkaufszentrum <500mSonstigeGeldautomat <500mBank <500mPost <500mPolizei <1.000mVerkehrBus <500mU-Bahn <1.000mStraßenbahn <500mBahnhof <1.000mAutobahnanschluss <5.000mAngaben Entfernung Luftlinie / Quelle: OpenStreetMap
Agent Name

Vassilena Valkova

Novel Real Immobilien GmbH

vv@novel-real.at

Energie/Heizung

Befeuerung:

HWB (kWh/m²/Jahr): 24.6

HWB Energieklasse: A

fGEE: 0.72

fGEE Energieklasse: A

Anbieter

Agent Name

Vassilena Valkova

+43 650 5870011 vv@novel-real.at

Anfragen

Ergebnisse werden geladen ...