382.96 m²
2.600.000 €
Immobilienpaket in Wien-Floridsdorf – 6 Einheiten mit Option zur Kurzzeitvermietung
22.09.2025
Objekt Standort
A-1210 Wien
oder
Allgemeine Informationen
Objekt ID: 5009-
VergabeartKauf
-
Kaufpreis2.600.000 €
-
Wohnfläche382.96 m²
-
Provision3% des Kaufpreises zzgl. 20% USt.
Ausstattung
-
Fahrstuhl
-
Abstellraum
Freiflächen
-
Balkon
-
Terrasse
Beschreibung
Immobilienpaket in Wien-Floridsdorf – 6 Einheiten mit Option zur Kurzzeitvermietung
Zum Verkauf gelangt ein exklusives Wohnungspaket bestehend aus 6 modernen, lichtdurchfluteten Wohnungen im 21. Wiener Gemeindebezirk.Die Wohnungen werden als Appartments zur Kurzzeitvermietung genutzt und sind demenstsprechend umgewidmet.
Bei den Immobilien handelt es sich um neu aufgebaute Altbauwohnungen. Insgesamt erstrecken sich die Wohnungen über ca. 383 m² Wohnnutzfläche, welche sich wie folgt aufteilt:
3-Zimmer Wohnung, Wohnnutzfläche ca. 69,95 m² im EG
2-Zimmer Wohnung, Wohnnutzfläche ca. 36,97 m² im EG
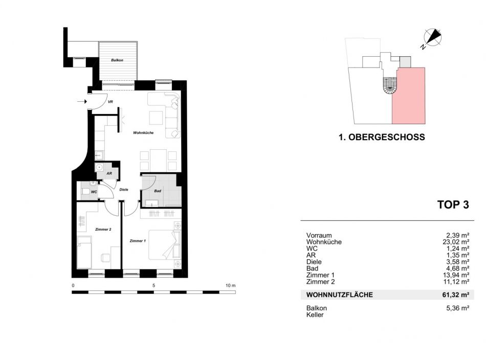
3-Zimmer Wohnung, Wohnnutzfläche ca. 61,32 m² im 1. OG
3-Zimmer Wohnung, Wohnnutzfläche ca. 76,41 m² im 1. OG
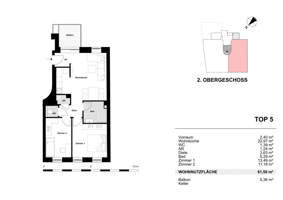
3-Zimmer Wohnung, Wohnnutzfläche ca. 61,59 m² im 2. OG
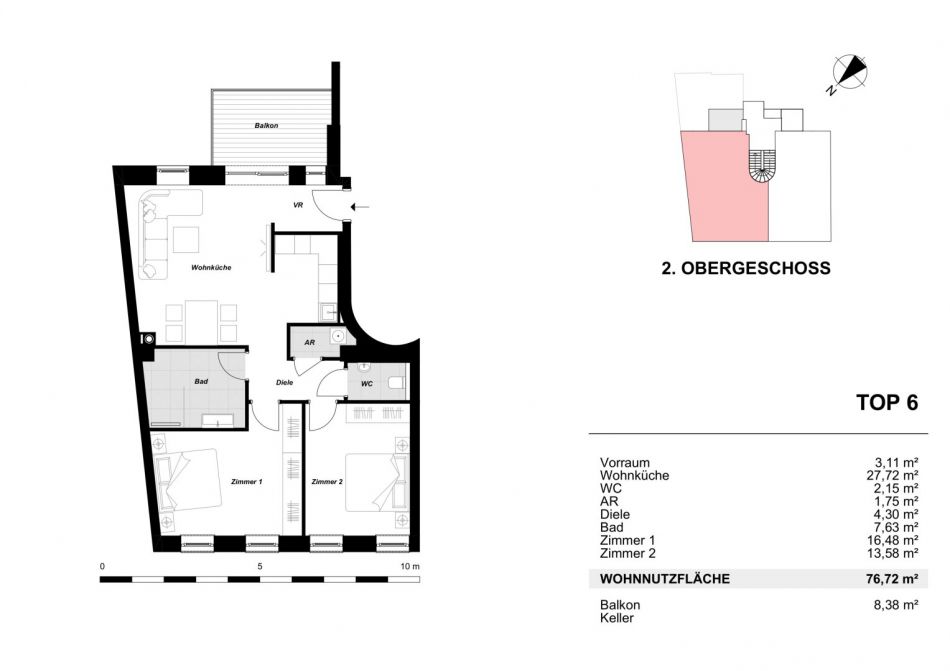
3-Zimmer Wohnung, Wohnnutzfläche ca. 76,72 m² im 2. OG
Die zum Verkauf stehenden Wohnungen verfügen über Fußbodenheizung, 3-fach verglaste Kunststofffenster und -terrassentüren mit außenliegendem Sonnenschutz, Parkettboden in den Haupträumen sowie Fliesen in den Nassräumen.
Das Objekt besticht durch die ausgezeichnete Lage in der Nähe des Floridsdorfer Aupark. In unmittelbarer Nähe befinden sich diverse Geschäfte des täglichen Bedarfs, Apotheken, Schulen, Restaurants und Cafés. Die Anbindung an den öffentlichen Verkehr wird über die S-Bahnlinien S1, S2, S3, S4 sowie S7, die U-Bahn Linie U6, Straßenbahnlinien 25, 26, 30 und 31 sowie über die Buslinien N31 gewährleistet. Für nähere Informationen zur Infrastruktur, fordern Sie bitte unser Exposé an.
Überzeugen Sie sich selbst von dieser atemberaubenden Immobilie.
Für Besichtigungen und nähere Informationen stehen wir Ihnen gerne zur Verfügung!
Herr Aleksandar Mihajlovic, MSc
national - Tel: 0660 652 5500
international - Tel: +43 660 652 5500
e-mail: mihajlovic@lifestyle-properties.at
Wir weisen darauf hin, dass zwischen dem Vermittler und dem zu vermittelnden Dritten ein familiäres oder wirtschaftliches Naheverhältnis besteht.
Der Vermittler ist als Doppelmakler tätig. Infrastruktur / EntfernungenGesundheitArzt <500mApotheke <500mKlinik <1.000mKrankenhaus <1.500mKinder & SchulenSchule <500mKindergarten <500mUniversität <1.000mHöhere Schule <500mNahversorgungSupermarkt <500mBäckerei <500mEinkaufszentrum <1.000mSonstigeGeldautomat <500mBank <500mPost <1.000mPolizei <500mVerkehrBus <500mU-Bahn <1.000mStraßenbahn <500mBahnhof <1.000mAutobahnanschluss <500mAngaben Entfernung Luftlinie / Quelle: OpenStreetMap

Aleksandar Mihajlovic
Lifestyle Properties
mihajlovic@lifestyle-properties.atEnergie/Heizung
Befeuerung:
HWB (kWh/m²/Jahr): 69
HWB Energieklasse: C
fGEE: 1.27
fGEE Energieklasse: C