Typisch Wien – nur schöner! Altbau mit Wow-Faktor & Platz zum Leben – Jetzt entdecken!
Objekt Standort
Reinprechtsdorfer Straße , A-1050 Wien
Allgemeine Informationen
Objekt ID: 288928-
VergabeartKauf
-
Kaufpreis409.000 €
-
Wohnfläche71.73 m²
-
Nutzfläche71.73 m²
-
Zimmer3.5
-
Provision3% des Kaufpreises zzgl. 20% USt.
Ausstattung
-
Einbauküche
-
Fahrstuhl
-
Barrierefrei
-
Abstellraum
Beschreibung
Typisch Wien – nur schöner! Altbau mit Wow-Faktor & Platz zum Leben – Jetzt entdecken!
Typisch Wien – nur schöner! Altbau mit Wow-Faktor & Platz zum Leben – Jetzt entdecken!
Diese traumhafte 3-Zimmer-Wohnung in einem der schönsten Häuser der Reinprechtsdorfer Straße vereint klassischen Wiener Altbaucharme mit durchdachter Raumaufteilung und dem gewissen Etwas. Man öffnet die Tür. Und plötzlich ist alles ruhig.
Das Licht fällt durch die hohen Fenster, streift den Stuck an der Decke, tanzt über den Parkettboden –
und in diesem Moment weiß man: Hier bin ich zu Hause.
Diese Wohnung hat kein lautes „Schau her“ –
sie hat dieses leise, tiefe „Bleib doch.“
Ein Wohnzimmer, das wie gemacht ist für Sonntage im Pyjama oder lange Abende mit Freunden.
Ein Entree, das Gäste empfängt, wie ein Gastgeber mit Stil.
Eine Küche, in der gekocht, gelebt, gelacht wird –
und ein Abstellraum, der sich anfühlt wie ein geheimer Schatzraum für all das, was Ordnung schafft.
Hier ist nichts zufällig.
Hier ist alles genau richtig.
✨ Highlights auf einen Blick:
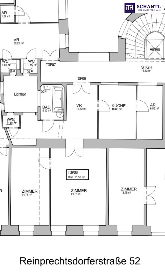
Ca. 71,52 m² Wohnfläche im 2. Stock eines gepflegten Altbaus
Großzügiges Wohnzimmer mit viel Licht und herrlichem Raumgefühl
Typisches Altbau-Entree mit Stuckdecke – stilvoll und einladend
Hohe Decken & klassische Altbautüren – echte Wiener Eleganz
Helles Schlafzimmer und vielseitiges drittes Zimmer
Separates Bad und WC – ideal im Alltag
Geräumige Küche mit Platz für Essbereich
Großer Abstellraum – perfekt als Speisekammer, Haushaltsraum oder Weinkeller
Haus mit Lift, gepflegtem Stiegenhaus & schöner Fassade
Ideal für Singles, Paare, Kreative oder Anleger
Jetzt besichtigen – bevor es zu spät ist!
Bei konkretem Interesse senden wir Ihnen sehr gerne weiterführende Dokumente zu, wie:
o Grundbuchauszug
o Wohnungseigentumsvertrag
o Nutzwertgutachten
o Eigentümerversammlungsprotokoll (Falls vorhanden) etc...
www.schantl-ith.at
Wir weisen darauf hin, dass zwischen dem Vermittler und dem zu vermittelnden Dritten ein familiäres oder wirtschaftliches Naheverhältnis besteht.
Der Vermittler ist als Doppelmakler tätig.
Infrastruktur / Entfernungen
Gesundheit
Arzt <250m
Apotheke <250m
Klinik <750m
Krankenhaus <750m
Kinder & Schulen
Schule <250m
Kindergarten <250m
Universität <750m
Höhere Schule <750m
Nahversorgung
Supermarkt <250m
Bäckerei <250m
Einkaufszentrum <1.000m
Sonstige
Geldautomat <250m
Bank <250m
Post <500m
Polizei <500m
Verkehr
Bus <250m
U-Bahn <250m
Straßenbahn <750m
Bahnhof <750m
Autobahnanschluss <3.500m
Angaben Entfernung Luftlinie / Quelle: OpenStreetMap

Dejan Ljepoja, MBA
Schantl ITH Immobilientreuhand GmbH
dejan.ljepoja@schantl-ith.atEnergie/Heizung
Heizungsart: Etagenheizung
Befeuerung: Gas
HWB (kWh/m²/Jahr): 128
HWB Energieklasse: D
fGEE: 2.51
fGEE Energieklasse: E