73.64 m²
1.159,6 €
3 Zimmer
*MIETKAUF* 3-Zimmer Wohnung im 5. Stock!
28.09.2025
Objekt Standort
Ziegelhofstraße , A-1220 Wien
oder
Allgemeine Informationen
Objekt ID: 5387/7625-
VergabeartMiete
-
monatliche kosten1.159,6 €
-
Wohnfläche73.64 m²
-
Nutzfläche75.54 m²
-
Zimmer3
-
ProvisionProvisionsfrei
Ausstattung
-
Fahrstuhl
Beschreibung
*MIETKAUF* 3-Zimmer Wohnung im 5. Stock!
* Leo am Teich* - Jetzt mieten – später kaufen!Sie sind auf der Suche nach einer Eigentumswohnung, doch die derzeitige Zinspolitik erschwert Ihnen den Immobilienkauf?
Dann sind Sie hier richtig! Wie wäre es mit der Option jetzt zu mieten und später zu kaufen? – und das zu einem bereits fix vereinbarten Kaufpreis!
In der aufstrebenden Donaustadt erwartet Sie ein modernes Wohnhaus in ruhiger Lage – sofort beziehbar! Die Liegenschaft überzeugt durch ansprechende Architektur, hochwertige Ausstattung und die perfekte Kombination aus urbanem Wohnen und naturnaher Erholung. Der Badeteich Hirschstetten ist direkt vor der Tür – mehr Natur ist kaum möglich!
Mietkaufmodell:
fix vereinbarter Kaufpreis
Immobilienkauf bereits 2029 möglich!
Mietzinsvorausszahlung ab nur rund 1.000 €/m2
Anrechnung der gesamten Mietzinsvorausszahlung UND 75% des reduzierten Netto – Hauptmietzins
Sie kommen Ihrem Traum einer Eigentumswohnung somit mit jeder Mietzahlung näher!
Gerne schicken wir Ihnen ein Berechnungsbeispiel
Zum Angebot stehen freifinanzierte Wohnungen auf Eigengrund – keine Pacht!
Highlights der Liegenschaft:
Provisionsfrei!
Elektrische Außenbeschattung in Form von Raffstores
Hochwertiger Parkettboden in allen Wohnräumen
Fußbodenheizung über Fernwärme
Kellerabteil inkludiert
Glasfaserinternet für modernste Ansprüche
Tiefgaragenstellplatz um 140 €/Monat anmietbar
Lage: Urban leben – grün genießen
Die Ziegelhofstraße liegt in einer ruhigen Wohngegend und bietet gleichzeitig eine hervorragende Infrastruktur. Öffentliche Verkehrsmittel (U2, sowie Bus- und Straßenbahnlinien) sind rasch erreichbar. Nahversorger, Schulen und Apotheken befinden sich in Gehdistanz. Für Freizeit und Erholung bieten sich der Badeteich Hirschstetten, die Alte Donau und zahlreiche Parks in unmittelbarer Umgebung an.
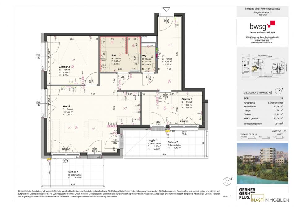
Hier wohnen Sie mit bester Lebensqualität – sofort beziehbar und zukunftssicher!Details Wohnung Ziegelhofstraße 72 Top 22:
Die Wohnung befindet sich im 5. Obergeschoss und verfügt über 73,64 m² Wohnfläche + einen 8,81 m² großen Balkon und einen zweiten 11,33 m² großen Balkon/Loggia.
Die Wohnung gliedert sich wie folgt:
Vorraum ca. 10,51 m²
Wohnküche ca. 31,08 m²
Schlafzimmer ca. 12,92 m²
Schlafzimmer ca. 10,23 m²
Badezimmer ca. 7,03 m²
Separate Toilette ca. 1,87 m²
Balkon 1 ca. 8,81 m²
Balkon/Loggia 2 ca. 11,33 m²
Kellerabteil ca. 2,45 m²
Ein Tiefgaragenstellplatz kann zusätzlich um 140 € angemietet werden.
Der Kaufpreis bei Sofortkauf beträgt 447.440 €
Bei Mietkaufoption beträgt die Mietzinsvorausszahlung: 73.640,00 €
Der monatliche Nettomietzins beträgt 972,49 €
Auf unserer Homepage finden Sie eine Übersicht zu allen verfügbaren 3-Zimmer-Wohnungen sowie nähere Details dazu. Infrastruktur / EntfernungenGesundheitArzt <275mApotheke <475mKlinik <775mKrankenhaus <2.975mKinder & SchulenSchule <375mKindergarten <125mUniversität <3.075mHöhere Schule <3.025mNahversorgungSupermarkt <550mBäckerei <600mEinkaufszentrum <1.450mSonstigeBank <750mGeldautomat <550mPost <825mPolizei <900mVerkehrBus <175mU-Bahn <1.200mStraßenbahn <425mBahnhof <1.225mAutobahnanschluss <1.125mAngaben Entfernung Luftlinie / Quelle: OpenStreetMap

Dolores Dolores
MA.ST Immobilien & Design e.U.
dm@mast-immo.atEnergie/Heizung
Heizungsart: Fernwärme
HWB (kWh/m²/Jahr): 48.18
HWB Energieklasse: B
fGEE: 0.84
fGEE Energieklasse: A