59.59 m² 291.246 € 2 Zimmer

5. Liftstock! Provisionsfreie Erstbezug Wohnung mit Weitblick!

19.01.2026

Objekt Standort

A-1220 Wien

marker Entfernung sowie Fahrtzeit (PKW) zu deinem Standort berechnen
oder
Die Route konnte nicht ermittelt werden

Allgemeine Informationen

Objekt ID: 5387/8178
  • Vergabeart
    Kauf
  • Kaufpreis
    291.246 €
  • Wohnfläche
    59.59 m²
  • Nutzfläche
    59.59 m²
  • Zimmer
    2
  • Provision
    Provision bezahlt der Abgeber.

Ausstattung

  • Fahrstuhl
  • Garage
  • Abstellraum

Freiflächen

  • Balkon

Beschreibung

5. Liftstock! Provisionsfreie Erstbezug Wohnung mit Weitblick!

Wir feiern den Winter bis zur Schneeschmelze!

€ 311.493 – ursprünglicher Verkaufspreis

€ 291.246 – aktueller Aktionspreis

 

 + XXXLutz Gutschein im Wert von € 1.000,00 pro Zimmer!

 

In der kalten Jahreszeit lassen wir die Preise schmelzen: Beim Kauf einer Eigentumswohnung in einem unserer Objekte in der Berresgasse ersparst du dir bis 31.3.2026 die Nebenkosten* und bekommst so jede Wohnung um 6,5% günstiger.
Darüber hinaus schenken wir dir noch einen XXXLutz - Gutschein im Wert von 1.000 Euro für jedes Zimmer!

 

Gretls Garten - Dein Eigentum am Badeteich Hirschstetten

Du bist auf der Suche nach einer Eigentumswohnung in Ruhelage und doch nah am Zentrum?

Dann bist du hier richtig! 

In der aufstrebenden Donaustadt erwartet dich ein modernes Wohnhaus in ruhiger Lage – sofort beziehbar! Die Liegenschaft überzeugt durch ansprechende Architektur, hochwertige Ausstattung und die perfekte Kombination aus urbanem Wohnen und naturnaher Erholung. Der Badeteich Hirschstetten ist wenige Gehminuten entfernt – mehr Natur ist kaum möglich!

Zum Angebot stehen freifinanzierte Wohnungen auf Eigengrund – keine Pacht!

Highlights der Liegenschaft:


Provisionsfrei!
Elektrische Außenbeschattung 
Wohnraumlüftung
Hochwertiger Parkettboden in allen Wohnräumen
Fußbodenheizung über Fernwärme
Kellerabteil inkludiert
Glasfaserinternet für modernste Ansprüche
Tiefgaragenstellplatz verfügbar


Lage: Urban leben – grün genießen

Die Ziegelhofstraße liegt in einer ruhigen Wohngegend und bietet gleichzeitig eine hervorragende Infrastruktur. Öffentliche Verkehrsmittel (U2, sowie Bus- und Straßenbahnlinien) sind rasch erreichbar. Nahversorger, Schulen und Apotheken befinden sich in Gehdistanz. Für Freizeit und Erholung bieten sich der Badeteich Hirschstetten, die Alte Donau und zahlreiche Parks in unmittelbarer Umgebung an.

Hier wohnst du mit bester Lebensqualität – sofort beziehbar und zukunftssicher!

 

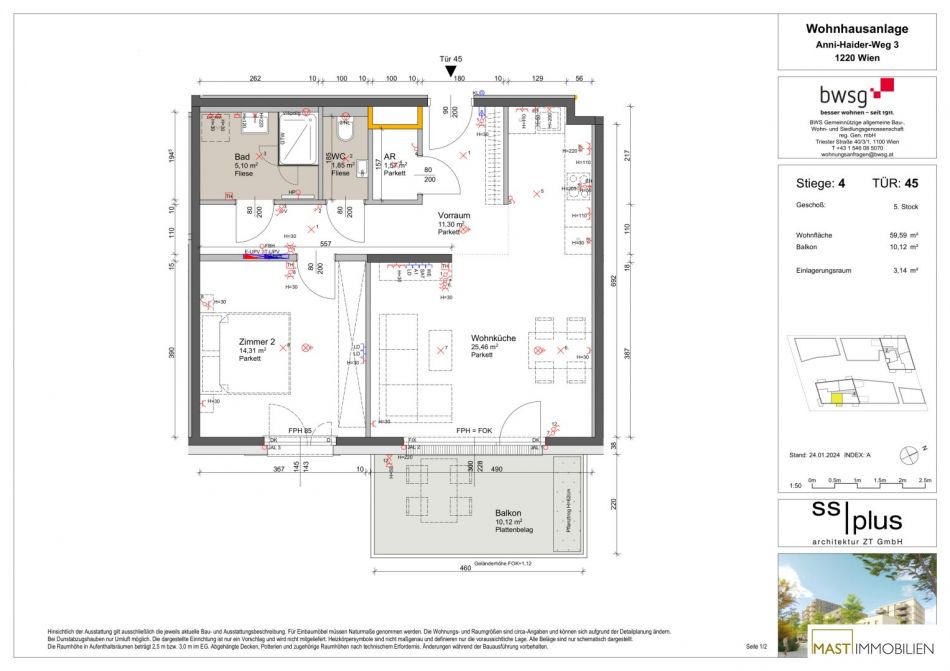
Details Wohnung Stiege 4 Top 45:

Die Wohnung befindet sich im 5. Obergeschoss und verfügt über 59,59 m² Wohnfläche + eine 10,12 m² große Freifläche.

Raumaufteilung:


Vorraum ca. 11,30 m²
Wohnküche ca. 25,46 m²  
Schlafzimmer ca. 14,31 m²
Badezimmer ca. 5,10 m²
Separate Toilette ca. 1,85 m²
Abstellraum ca. 1,57 m²
Balkon ca. 10,12 m²
Kellerabteil ca. 3,14 m²


 

Ein Tiefgaragenstellplatz kann um 29.202,45 € erworben werden. 

 

Auf unserer Homepage finden Sie eine Übersicht zu dem Projekt "Gretls Garten" sowie zu den Projekten "Jonas am Feld" und "Leo am Teich", welche sich in unmittelbarer Nähe befinden. www.mast-immo.at

*Während der Aktion werden die Verkaufspreise um 6,5 % reduziert. Dies entspricht den durchschnittlichen Nebenkosten beim provisionsfreien Wohnungskauf (1,9 % Vertrags-errichtung, 3,5 % Grunderwerbsteuer, 1,1 % Eintragungsgebühr). Die auf Basis des um 6,5% reduzierten Kaufpreises berechneten Nebenkosten sind über den Treuhänder zu begleichen. Eine mögliche Gebührenbefreiung gem. § 25a iVm § 25b Gerichtsgebührengesetz kann zusätzlich in Anspruch genommen werden.

Der Einrichtungsgutschein wird bei Wohnungsübergabe übergeben und ist nicht in bar ablösbar.
Wir weisen darauf hin, dass zwischen dem Vermittler und dem zu vermittelnden Dritten ein familiäres oder wirtschaftliches Naheverhältnis besteht.
Der Vermittler ist als Doppelmakler tätig.Infrastruktur / EntfernungenGesundheitArzt <500mApotheke <500mKlinik <1.500mKrankenhaus <3.500mKinder & SchulenSchule <500mKindergarten <500mUniversität <3.000mHöhere Schule <3.000mNahversorgungSupermarkt <500mBäckerei <500mEinkaufszentrum <2.000mSonstigeBank <1.000mGeldautomat <500mPost <1.000mPolizei <1.500mVerkehrBus <500mU-Bahn <1.500mStraßenbahn <500mBahnhof <1.500mAutobahnanschluss <2.000mAngaben Entfernung Luftlinie / Quelle: OpenStreetMap
Agent Name

Dolores Markovic

MA.ST Immobilien & Design e.U.

dm@mast-immo.at

Energie/Heizung

Befeuerung: Fernwärme

HWB (kWh/m²/Jahr): 23.66

HWB Energieklasse: A

fGEE: 0.72

fGEE Energieklasse: A

Anbieter

Agent Name

Dolores Markovic

dm@mast-immo.at

Anfragen

Ergebnisse werden geladen ...