95.29 m² 750.000 € 2.5 Zimmer

sanierungsbedürftige 2,5 Zimmer Wohnung mit Garten und Loggia im Herzen von Ober St. Veit

25.03.2026

Objekt Standort

A-1130 Wien

marker Entfernung sowie Fahrtzeit (PKW) zu deinem Standort berechnen
oder
Die Route konnte nicht ermittelt werden

Allgemeine Informationen

Objekt ID: 5735/3814
  • Vergabeart
    Kauf
  • Kaufpreis
    750.000 €
  • Nutzfläche
    95.29 m²
  • Zimmer
    2.5
  • Provision
    3% des Kaufpreises zzgl. 20% USt.

Ausstattung

  • Einbauküche

Freiflächen

  • Wintergarten

Beschreibung

sanierungsbedürftige 2,5 Zimmer Wohnung mit Garten und Loggia im Herzen von Ober St. Veit

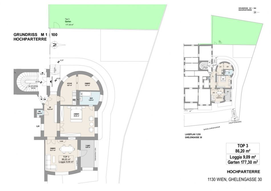
Hietzinger Wohnidylle: Stilvolle 2,5-Zimmer-Wohnung mit privatem Gartenparadies


Die Wohnung befindet sich im Erdgeschoss (Hochparterre) eines wunderschönen Jahrhundertwendezinshausin 1130 Wien. Vom Eingangsbereich gelangen Sie zentral zum WC, zu einem Schlafzimmer und ins Wohnzimmer, von dem man auf die Loggia mit Blick ins Grüne gelangt.


Die Küche ist als separater Raum führt, von dieser gelangt man in ein kleines Kabinett. Das Highlight bilden die gemütliche Veranda und der großzügige Garten. 


Diese Wohnung ist als sanierungsbedürftig einzustufen und perfekt für all jene geeignet, welche sich nach Ihren Vorstellungen den Traum einer Wohnung in Grünruhelage mit eigenem Garten erfüllen wollen.


Bitte beachten Sie, dass die Fotos teilweise mit KI generiert sind um Ihnen eine Vorstellung zu geben wie die Zimmer aussehen könnten. 


Raumaufteilung:


- großzügiger Vorraum, zentral von allen Zimmer begehbar


- Küche mit Zugang zum Kabinett


- Badezimmer 


- WC


- Schlafzimmer 


- Wohnzimmer mit Ausgang zur Veranda/Loggia


- Loggia mit rd 9,09m2


- Garten (rd 177m2)


Lage:


Grün-Ruhelage für Naturliebhaber und trotzdem und vor allem die besonders verkehrsgünstige Lage ist hervorzuheben - mit dem Bus 54a erreicht man in wenigen Minuten die U Bahnstation Ober St. Veit. 


Ein weiteres Merkmal ist die Grünruhelage mit dem Blick ins Grüne und die Nähe zum Lainzer Tiergarten welcher viele Sport- und Erholungsmöglichkeiten bietet. Die Nähe zum Gasthaus Lindwurm oder Heurigen Wildsau ist ebenso ein weiterer Pluspunkt der Lage.


Die Lage kann als gute Wohnlage beschrieben werden, die gute Infrastruktur ist hervorzuheben. Eine sehr gute öffentliche Anbindung durch die U-Bahn sowie diverse Strassenbahn und Buslinien ist hervorzuheben. Zahlreichen Geschäften des täglichen Bedarfs sowie diverse Restaurants, Schulen, Kindergärten und ärztliche Versorgung befinden sich in Ober St.Veit.


Für eine unverbindliche Besichtigung: 


Wir freuen uns Ihnen die Liegenschaft jederzeit persönlich vorzustellen zu dürfen. Kontaktieren Sie bitte Frau Mag.Elisabeth Thurner-GRössinger, MBA unter thurner@thurner-realitaeten.at oder per Telefon unter 0660 35 700 56.


Wir freuen uns von Ihnen zu hören! 


Nebenkosten:



  • Grundbucheintragung: 1,1% d.KP. 

  • Grunderwerbssteuer: 3,5% d.KP.

  • Maklerprovision: 3% d.KP. + 20% USt. 

  • Die Errichtung des Kaufvertrages erfolgt zu einem Pauschalhonorar von einer des Verkäufers genannte Kanzlei.


Maklervereinbarung: Wir ersuchen um Verständnis, dass wir bei Anfragen zur Objektadresse, bzw. Besichtigungstermin  aufgrund neuer gesetzlicher Bestimmungen Unterlagen erst dann zusenden können, wenn Sie vorab bestätigen, dass Sie unser sofortiges Tätigwerden wünschen und über Ihre Rücktrittsrechte aufgeklärt wurden. Sie bekommen nach Ihrer schriftlichen Anfrage mit vollständiger Angabe des Namens, Anschrift und Telefonnummer ein Email, in dem Sie diese Punkte bestätigen müssen.


Haftungsausschluss:  Wir weisen darauf hin, dass sämtliche Daten im vorliegenden Angebot sowie die von unserem Büro an Sie weitergegebenen Auskünfte, vom Eigentümer der Immobilie zur Verfügung gestellt wurden. Ebenso sind Informationen von Dritten (z.B. behördliche Informationen) eingeholt worden, auch für diese können wir unsererseits keinerlei Haftung für deren uneingeschränkte Richtigkeit übernehmen.


Wir weisen darauf hin, dass zwischen dem Vermittler und dem zu vermittelnden Dritten ein familiäres oder wirtschaftliches Naheverhältnis besteht.


Infrastruktur / Entfernungen

Gesundheit
Arzt <500m
Apotheke <1.000m
Klinik <1.500m
Krankenhaus <2.000m
Kinder & Schulen
Schule <1.500m
Kindergarten <1.000m
Universität <1.000m
Höhere Schule <5.500m
Nahversorgung
Supermarkt <1.000m
Bäckerei <1.500m
Einkaufszentrum <4.500m
Sonstige
Geldautomat <1.500m
Bank <1.500m
Post <1.500m
Polizei <2.000m
Verkehr
Bus <500m
U-Bahn <2.000m
Straßenbahn <1.500m
Bahnhof <2.000m
Autobahnanschluss <4.000m
Angaben Entfernung Luftlinie / Quelle: OpenStreetMap

Agent Name

Elisabeth Thurner-Grössinger,MBA

THURNER REALITÄTEN GMBH

thurner@thurner-realitaeten.at

Energie/Heizung

Heizungsart: Etagenheizung

Befeuerung: Gas

HWB (kWh/m²/Jahr): 136.3

HWB Energieklasse: E

fGEE: 2.16

fGEE Energieklasse: D

Anbieter

Agent Name

Elisabeth Thurner-Grössinger,MBA

+43 660 35 700 56 thurner@thurner-realitaeten.at

Anfragen

Ergebnisse werden geladen ...