66.29 m²
455.000 €
3 Zimmer
*Alte Donau* Provisionsfreie 3-Zimmer Wohnung!
13.07.2024
Objekt Standort
An der Schanze , A-1220 Wien
oder
Allgemeine Informationen
Objekt ID: 5387/6220-
VergabeartKauf
-
Kaufpreis455.000 €
-
Wohnfläche66.29 m²
-
Zimmer3
-
ProvisionProvision bezahlt der Abgeber.
Ausstattung
-
Fahrstuhl
-
Garage
-
Abstellraum
Freiflächen
-
Balkon
Beschreibung
*Alte Donau* Provisionsfreie 3-Zimmer Wohnung!
PROVISIONSFREI für den Käufer!Alle verfügbaren Wohnungen finden Sie auf unserer Homepage unter www.mast-immo.at. Um Ihre Suche zu erleichtern, steht Ihnen auf unserer Projektseite www.anderschanze25.at ein Wohnungsnavigator zur Verfügung, der Ihnen hilft, sich einen Überblick über die Lage der einzelnen Wohnungen innerhalb des Komplexes zu verschaffen.
"An der Schanze 25" - Ihr neues Zuhause, Investment und Vorsorge
Das beeindruckende und exklusive Projekt befindet sich im"Quartier Donaufeld" im beliebten 21. Wiener Gemeindebezirk und repräsentiert einen einzigartigen Gebäudekomplex aus vier Bauteilen mit insgesamt 212 exklusiv ausgestatteten Wohnungen.
Zum Verkauf gelangen 58 Wohnungen in Bauteil A, 45 Wohnungen in Bauteil B und 64 Wohnungen in Bauteil D.
EIGENGRUND! - KEINE PACHT!
Die voraussichtliche Fertigstellung ist Ende 2026 geplant.
Highlights der Liegenschaft:
Naturbezogene Fassadengestaltung die sich perfekt in die Umgebung einfügt
Direkter Zugang zur Alten Donau über den naturbelassenen Grünzug der am Gebäudeareal angrenzt
Echtholzböden
Keramischer Fliesenbelag in den Nassräumen
3 - fach verglaste Kunsstofffenster mit Alu Deckschale
Schließanlage
Personenlift
Tiefgarage
Heizung und Temperierung mittels Bauteilaktivierung
Jede Wohnung mit Freifläche
Lage: Auto adé
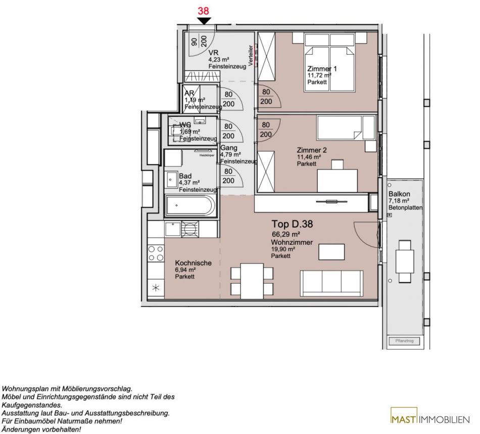
Sollten Sie kein Fahrzeug besitzen, ist das bei dieser Adresse kein Hindernis. Zahlreiche Nahversorger, Dinge des täglichen Bedarfs und selbst das beliebte Donauzentrum mit über 262 Shops, Restaurants und Kino befinden sich unmittelbarer Nähe der Liegenschaft. An heißen Sommertagen lädt die, über einen Grünstreifen verbundene, Alte Donau zum Verweilen ein! Details Wohnung Bauteil D Top 38:
Die Wohnung befindet sich im 5. Liftstock und verfügt über 66,29 m² Wohnfläche + einen 7,18 m² großen Balkon.
Die Wohnung gliedert sich wie folgt:
Wohnküche ca. 26,84 m²
Schlafzimmer ca. 11,46 m²
Schlafzimmer ca. 11,72 m²
Balkon ca. 7,18 m²
Vorraum ca. 4,23 m²
Badezimmer ca. 4,37 m²
separate Toilette ca. 1,69 m²
Abstellraum ca. 1,19 m²
Gang ca. 4,79 m²
Der Kaufpreis beträgt für Anleger € 420.000 Netto zzgl. 20% USt.
Auf unserer Homepage finden Sie eine Übersicht zu allen verfügbaren 3-Zimmer-Wohnungen sowie nähere Details dazu.
Wir weisen darauf hin, dass zwischen dem Vermittler und dem zu vermittelnden Dritten ein familiäres oder wirtschaftliches Naheverhältnis besteht.
Der Vermittler ist als Doppelmakler tätig.Infrastruktur / EntfernungenGesundheitArzt <750mApotheke <750mKlinik <2.000mKrankenhaus <2.500mKinder & SchulenSchule <750mKindergarten <750mUniversität <1.250mHöhere Schule <1.750mNahversorgungSupermarkt <750mBäckerei <1.000mEinkaufszentrum <1.250mSonstigeGeldautomat <1.250mBank <1.250mPost <1.250mPolizei <750mVerkehrBus <750mU-Bahn <1.250mStraßenbahn <750mBahnhof <1.250mAutobahnanschluss <1.750mAngaben Entfernung Luftlinie / Quelle: OpenStreetMap

Dolores Dolores
MA.ST Immobilien & Design e.U.
dm@mast-immo.atEnergie/Heizung
Befeuerung: Fernwärme
HWB (kWh/m²/Jahr): 25.1
HWB Energieklasse: B
fGEE: 0.78
fGEE Energieklasse: A