38 m² 280.000 € 2 Zimmer

*Ende 2026* Provisionsfreie 2-Zimmer Wohnung im 4. Liftstock!

13.12.2025

Objekt Standort

An der Schanze , A-1210 Wien

marker Entfernung sowie Fahrtzeit (PKW) zu deinem Standort berechnen
oder
Die Route konnte nicht ermittelt werden

Allgemeine Informationen

Objekt ID: 5387/8035
  • Vergabeart
    Kauf
  • Kaufpreis
    280.000 €
  • Wohnfläche
    38 m²
  • Zimmer
    2
  • Provision
    Provision bezahlt der Abgeber.

Ausstattung

  • Fahrstuhl
  • Garage

Freiflächen

  • Balkon

Beschreibung

*Ende 2026* Provisionsfreie 2-Zimmer Wohnung im 4. Liftstock!

PROVISIONSFREI für den Käufer!

​Alle verfügbaren Wohnungen finden Sie auf unserer Homepage unter www.mast-immo.at. Um Ihre Suche zu erleichtern, steht Ihnen auf unserer Projektseite www.anderschanze25.at ein Wohnungsnavigator zur Verfügung, der Ihnen hilft, sich einen Überblick über die Lage der einzelnen Wohnungen innerhalb des Komplexes zu verschaffen.​

 

"An der Schanze 25" - Ihr neues Zuhause, Investment und Vorsorge

Das beeindruckende und exklusive Projekt befindet sich im"Quartier Donaufeld" im beliebten 21. Wiener Gemeindebezirk und repräsentiert einen einzigartigen Gebäudekomplex aus vier Bauteilen mit insgesamt 212 exklusiv ausgestatteten Wohnungen.

Zum Verkauf gelangen 58 Wohnungen in Bauteil A, 64 Wohnungen in Bauteil D und 45 Wohnungen in Bauteil B.

EIGENGRUND! - KEINE PACHT!

Die voraussichtliche Fertigstellung ist Ende 2026 geplant.

Highlights der Liegenschaft:


Naturbezogene Fassadengestaltung die sich perfekt in die Umgebung einfügt
Direkter Zugang zur Alten Donau über den naturbelassenen Grünzug der am Gebäudeareal angrenzt
Echtholzböden
Keramischer Fliesenbelag in den Nassräumen
3 - fach verglaste Kunsstofffenster mit Alu Deckschale
Schließanlage
Personenlift
Tiefgarage
Heizung und Temperierung mittels Bauteilaktivierung
Jede Wohnung mit Freifläche


 

Lage: Auto adé

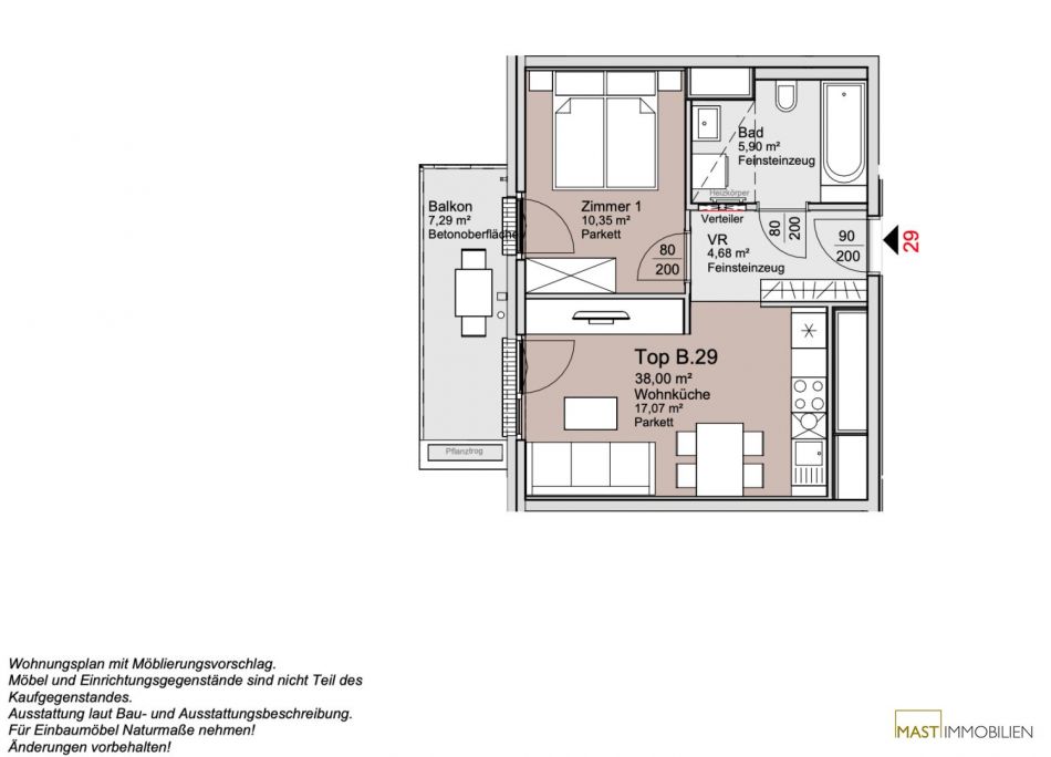
Sollten Sie kein Fahrzeug besitzen, ist das bei dieser Adresse kein Hindernis. Zahlreiche Nahversorger, Dinge des täglichen Bedarfs und selbst das beliebte Donauzentrum mit über 262 Shops, Restaurants und Kino befinden sich unmittelbarer Nähe der Liegenschaft. An heißen Sommertagen lädt die, über einen Grünstreifen verbundene, Alte Donau zum Verweilen ein!Details Wohnung Bauteil B Top 29:

Die Wohnung befindet sich im 4. Liftstock und verfügt über 38,00 m² Wohnfläche + einen 7,29 m² großen Balkon.

Die Wohnung gliedert sich wie folgt: 


Wohnküche ca. 17,07 m²
Schlafzimmer ca. 10,35 m²
Balkon ca. 7,29 m²
Vorraum ca. 4,68 m²
Badezimmer ca. 5,90 m²


 

Der Kaufpreis beträgt für Anleger € 259.000 Netto zzgl. 20% USt. 

Auf unserer Homepage finden Sie eine Übersicht zu allen verfügbaren 2-Zimmer-Wohnungen sowie nähere Details dazu. 
Wir weisen darauf hin, dass zwischen dem Vermittler und dem zu vermittelnden Dritten ein familiäres oder wirtschaftliches Naheverhältnis besteht.
Der Vermittler ist als Doppelmakler tätig.Infrastruktur / EntfernungenGesundheitArzt <750mApotheke <750mKlinik <2.250mKrankenhaus <2.500mKinder & SchulenSchule <500mKindergarten <500mUniversität <1.000mHöhere Schule <1.500mNahversorgungSupermarkt <500mBäckerei <1.000mEinkaufszentrum <1.000mSonstigeGeldautomat <1.000mBank <1.000mPost <1.500mPolizei <750mVerkehrBus <500mU-Bahn <1.000mStraßenbahn <500mBahnhof <1.000mAutobahnanschluss <2.000mAngaben Entfernung Luftlinie / Quelle: OpenStreetMap
Agent Name

Stefanie Stefanie

MA.ST Immobilien & Design e.U.

office@mast-immo.at

Energie/Heizung

Befeuerung: Fernwärme

HWB (kWh/m²/Jahr): 27.2

HWB Energieklasse: B

fGEE: 0.78

fGEE Energieklasse: A

Anbieter

Agent Name

Stefanie Stefanie

office@mast-immo.at

Anfragen

Ergebnisse werden geladen ...