97 m² 679.900 € 5 Zimmer

Großzügige 5-Zimmer-Maisonette mit Garten, Terrasse & Tiefgarage in 1220 Wien

14.03.2026

Objekt Standort

A-1220 Wien

marker Entfernung sowie Fahrtzeit (PKW) zu deinem Standort berechnen
oder
Die Route konnte nicht ermittelt werden

Allgemeine Informationen

Objekt ID: 15713
  • Vergabeart
    Kauf
  • Kaufpreis
    679.900 €
  • Wohnfläche
    97 m²
  • Nutzfläche
    107 m²
  • Zimmer
    5
  • Provision
    3% des Kaufpreises zzgl. 20% USt.

Ausstattung

  • Garage
  • Abstellraum

Freiflächen

  • Garten
  • Terrasse

Beschreibung

Großzügige 5-Zimmer-Maisonette mit Garten, Terrasse & Tiefgarage in 1220 Wien

Zum Verkauf gelangt eine attraktive 5-Zimmer-Maisonettewohnung auf zwei Ebenen (Erdgeschoss und Obergeschoss) in ruhiger Wohnlage der Ullreichgasse im 22. Bezirk.
Die Wohnung befindet sich in einer gepflegten Wohnhausanlage aus dem Jahr ca. 1996 und überzeugt durch ihre familienfreundliche Raumaufteilung sowie großzügige Außenflächen.


Wohnkonzept & Raumaufteilung

Die Wohnung erstreckt sich über zwei Ebenen und bietet viel Platz für Familien oder alle, die Wohnen und Arbeiten gut kombinieren möchten.

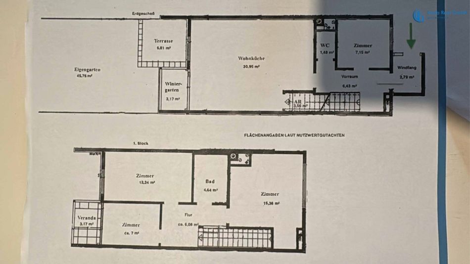
Erdgeschoss



Helle Wohnküche mit ca. 30,95 m² und direktem Zugang zu den Außenflächen


Zimmer mit ca. 7,15 m²


Vorraum ca. 6,43 m²


Separates WC


Abstellraum innerhalb der Wohnung


Wintergarten


Terrasse


Zugang zum großzügigen Eigengarten



Obergeschoss



Drei gut geschnittene Zimmer


Flur


Badezimmer


Veranda




Flächen



Wohnfläche (Innenfläche inkl. Abstellraum): ca. 96–97 m²


Außenflächen gesamt: ca. 58,9 m², bestehend aus:



Eigengarten


Terrasse


Wintergarten


Veranda





(Außenflächen werden gemäß gängiger Praxis separat ausgewiesen und nicht voll zur Wohnfläche gerechnet.)


Ausstattung



Parkett- und Fliesenböden


Küche vorhanden (nachträglich eingebaut)


Badezimmer mit allem drum und dran


Beheizung über Heizkörper


Kunststofffenster (Originalausstattung)


Einlagerungsraum vorhanden




Stellplatz

Ein Tiefgaragenstellplatz ist der Wohnung zugeordnet und im Eigentum.
Der Stellplatz ist separat im Grundbuch ausgewiesen.


Lage

Die Wohnung liegt in einer ruhigen Wohngegend der Donaustadt und bietet gleichzeitig eine sehr gute Infrastruktur.
Einkaufsmöglichkeiten, Schulen, Kindergärten sowie öffentliche Verkehrsanbindungen sind bequem erreichbar. Grünflächen und Freizeitangebote befinden sich ebenfalls in der näheren Umgebung.


Eckdaten auf einen Blick



Baujahr Wohnhaus: ca. 1996


Wohnungseigentum


5 Zimmer


Maisonette (EG + OG)


Eigengarten, Terrasse, Wintergarten & Veranda


Tiefgaragenstellplatz im Eigentum


Beziehbar: nach Vereinbarung




 

Kontakt:
Herr Aldin Dacic
Konz. Immobilienmakler & BM (BGT)
Geschäftsführer der Hada Real GmbH
Pappenheimgasse 47 Top 1–2, 1200 Wien
? www.hada-real.eu
? +43 664 10 20 156


Bitte nehmen Sie zur Kenntnis, dass wir nur Anfragen mit Vor- und Nachname und Telefonnummer entgegennehmen können. Die Angaben erfolgen aufgrund von Informationen und Unterlagen, die uns vom Eigentümer/Mieter und/oder von Dritten zur Verfügung gestellt wurden und sind ohne Gewähr. Wir übernehmen keinerlei Gewähr oder Haftung für die tatsächliche Energieeffizienz der angebotenen Immobilie. Wir möchten darauf hinweisen, dass wir als Doppelmakler tätig sind und ein wirtschaftliches und familiäres Nahverhältnis zum Abgeber besteht. Manche Bilder wurden AI modifiziert. Machen Sie sich am Besten selbst ein Bild von der angebotenen Immobilie.
Wir weisen darauf hin, dass zwischen dem Vermittler und dem zu vermittelnden Dritten ein familiäres oder wirtschaftliches Naheverhältnis besteht.
Der Vermittler ist als Doppelmakler tätig.Infrastruktur / EntfernungenGesundheitArzt <500mApotheke <500mKlinik <3.000mKrankenhaus <3.000mKinder & SchulenSchule <500mKindergarten <500mUniversität <500mHöhere Schule <1.000mNahversorgungSupermarkt <500mBäckerei <1.000mEinkaufszentrum <1.500mSonstigeGeldautomat <1.000mBank <1.000mPost <1.000mPolizei <1.500mVerkehrBus <500mU-Bahn <1.000mStraßenbahn <500mBahnhof <1.000mAutobahnanschluss <2.500mAngaben Entfernung Luftlinie / Quelle: OpenStreetMap
Agent Name

Herr Aldin Dacic

Energie/Heizung

Heizungsart: Fernwärme

Befeuerung: Fernwärme

HWB (kWh/m²/Jahr): 67.92

HWB Energieklasse: C

fGEE: 2.32

fGEE Energieklasse: D

Anbieter

Agent Name

Herr Aldin Dacic

aldin.dacic@hada-real.eu

Anfragen

Ergebnisse werden geladen ...