72 m² 2.090,91 € 3 Zimmer

Einzigartiger Ausblick beim grünen Prater und Stadion Center

15.11.2025

Objekt Standort

Vorgartenstraße , A-1020 Wien

marker Entfernung sowie Fahrtzeit (PKW) zu deinem Standort berechnen
oder
Die Route konnte nicht ermittelt werden

Allgemeine Informationen

Objekt ID: 3851
  • Vergabeart
    Miete
  • monatliche kosten
    2.090,91 €
  • Kaution
    6900€
  • Wohnfläche
    72 m²
  • Zimmer
    3
  • Provision
    Gemäß Erstauftraggeberprinzip bezahlt der Abgeber die Provision.

Ausstattung

  • Einbauküche
  • Sauna
  • Garage
  • Abstellraum

Freiflächen

  • Terrasse

Beschreibung

Einzigartiger Ausblick beim grünen Prater und Stadion Center

Traumhafte Etagenwohnung mit Fernblick 

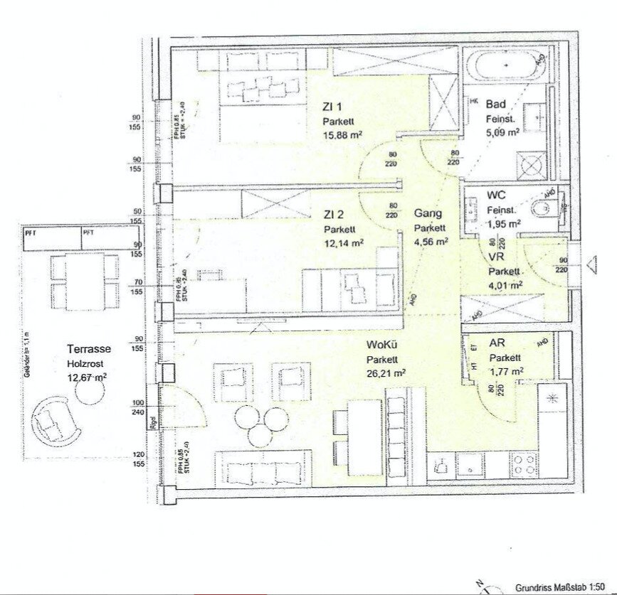
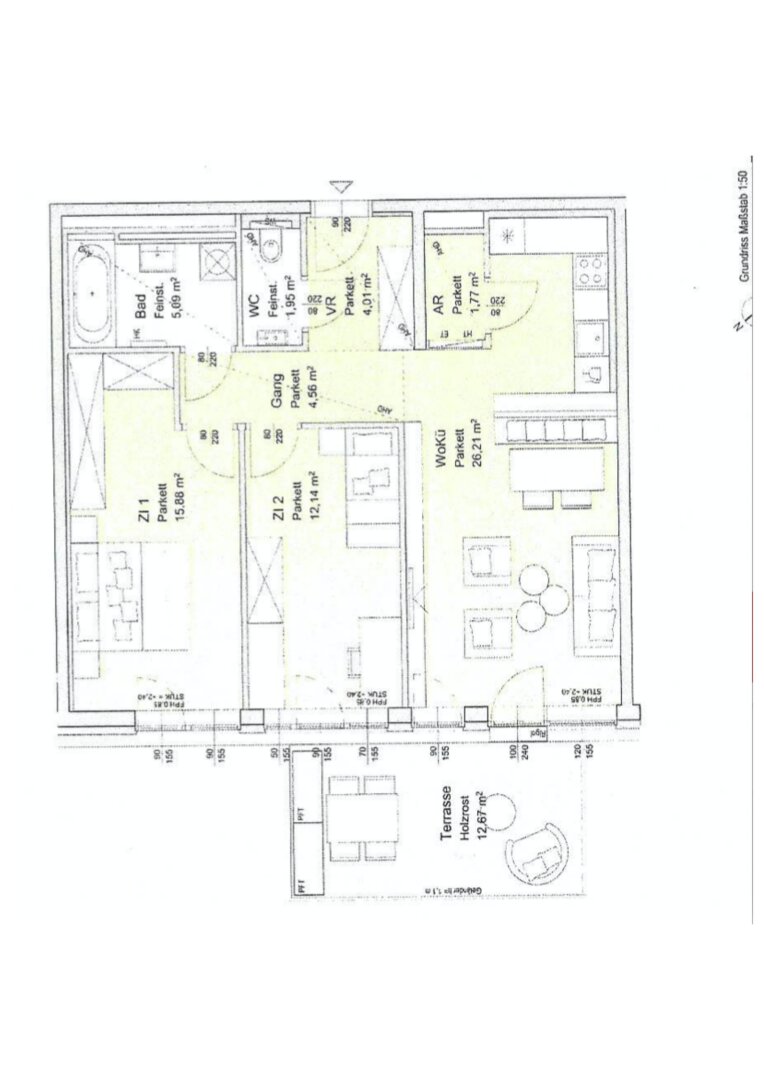
Mit einer großzügigen Fläche von 72 m² und 3 Zimmern bietet sie ausreichend Platz für individuelles Wohnen und Entspannen.

Die Wohnung befindet sich in der 8. Etage eines modernen Gebäudes und beeindruckt durch einen atemberaubenden Fernblick über den unverbaubaren Prater bis hin zum Kahlenberg und Leopoldsberg. Diese Aussicht genißt man von der eigenen Terrasse, deren Größe und Form perfekt für entspannte Stunden im Freien geeignet ist.

Dem Zeitgeist entsprechende Raumaufteilung umfasst eine offene Wohnküche mit Einbauküche und zwei Schlafzimmer. Das Badezimmer ist mit einer Badewanne ausgestattet und ist von der Toilette getrennt.

Das Haus ist an Glasfasernetz angeschlossen und bietet somit schnelle Internetverbindung an. Die Fußbodenheizung ist nicht nur praktisch (platzsparend ohne Heizkörper) sondern auch effektiv (kein Heizen der oberen Nachbarn, wie in einem Altbau) und über Thermostate genau steuerbar. 

Alle Fenster sind mit Außenrollos ausgestattet, somit ist komplette Abdunkelung der Schlafräume möglich.

Ein Garagenstellplatz in der Tiefgarage rundet das Angebot ab und sorgt für komfortables Parken in der Stadt.

Das Haus wurde erst 2021 neu errichtet und begeistert die Bewohner mit der Lage (direkt beim Grünem Prater, WU, Stadion, Messegelände und unweit der Donau) der Ausstattung (gratis Fitnessstudio und Wellnesbereich im Haus, Kinderspielhaus und gemütlicher Miteinanderbereich im Innenhof sowie großer Fahrradabstellraum, bequeme Tiefgarage und Kellerabteile im EG) und den komfortablen Wohnungsgrundrissen. Das besondere an diesem Projekt: die spannende Kombination aus bestehenden historischen Gebäuden mit zeitgenössischer Architektur. Bald werden auch die restlichen denkmalgeschützten Stallungen nach und nach zum lebendigen Mittelpunkt und Begegnungsraum des Viertel Zwei umgebaut. Schon jetzt laden zahlreiche Grün- und Wasserflächen zur Erholung ein. Sie bilden einen angenehmen Ausgleich zum Alltag.

Die Verkehrsanbindung könnte nicht besser sein: Bus, U-Bahn und bald auch Straßenbahn) sind in unmittelbarer Nähe, sodass man/frau schnell und unkompliziert in alle Teile der Stadt gelangt. Darüber hinaus finden Sie in der Umgebung zahlreiche Einrichtungen wie:


Apotheke
Klinik
Schule
Kindergarten
Universität
Supermarkt
Bäckerei
Einkaufszentrum


Mietkonditionen:


Miete Wohnung: € 2.300 (inkl. Ust und BK)
Miete Garage: € 180,00
Kaution Wohnung: € 6.900,00
Kaution Garage: € 540,00
Maklergebühr: keine für den Mieter


HINWEIS: monatliches mind. Familieneinkommen (von Mietinteressenten) € 5.750 netto ist erforderlichNoch nichts gefunden? Wir informieren Sie über geeignete Immobilienangebote noch vor allen anderen.
Legen Sie jetzt Ihren individuellen Suchagenten unter folgendem Link an. Wir schicken Ihnen passende Immobilien exklusiv vorab zu.
Suchagent anlegen - https://pr-immobilien-real-estate.service.immo/registrieren/de
Der Immobilienmakler erklärt, dass er – entgegen dem in der Immobilienwirtschaft üblichen Geschäftsgebrauch des Doppelmaklers – einseitig nur für den Vermieter tätig ist.Infrastruktur / EntfernungenGesundheitArzt <1.250mApotheke <250mKlinik <500mKrankenhaus <2.500mKinder & SchulenSchule <250mKindergarten <750mUniversität <1.000mHöhere Schule <2.250mNahversorgungSupermarkt <500mBäckerei <250mEinkaufszentrum <500mSonstigeGeldautomat <750mBank <750mPost <1.000mPolizei <1.250mVerkehrBus <250mU-Bahn <250mStraßenbahn <1.000mBahnhof <250mAutobahnanschluss <1.250mAngaben Entfernung Luftlinie / Quelle: OpenStreetMap
PR-IMMOBILIEN / REAL ESTATE
Agent Name

Svetlana Papadopoulos Piskorová

PR-IMMOBILIEN / REAL ESTATE

svetlana.piskorova@pr-immobilien.at

Energie/Heizung

Befeuerung: Fernwärme

HWB (kWh/m²/Jahr): 25.7

HWB Energieklasse: B

fGEE: 0.8

fGEE Energieklasse: A

Anbieter

Agent Name

Svetlana Papadopoulos Piskorová

06509243069 svetlana.piskorova@pr-immobilien.at

Anfragen

Ergebnisse werden geladen ...