44.73 m² 726,36 € 1 Zimmer

Moderne 1 Zimmer Wohnung im 10. Bezirk

20.12.2025

Objekt Standort

A-1100 Wien

marker Entfernung sowie Fahrtzeit (PKW) zu deinem Standort berechnen
oder
Die Route konnte nicht ermittelt werden

Allgemeine Informationen

Objekt ID: 6561
  • Vergabeart
    Miete
  • monatliche kosten
    726,36 €
  • Wohnfläche
    44.73 m²
  • Zimmer
    1
  • Provision
    Gemäß Erstauftraggeberprinzip bezahlt der Abgeber die Provision.

Ausstattung

  • Barrierefrei

Freiflächen

  • Balkon

Beschreibung

Moderne 1 Zimmer Wohnung im 10. Bezirk

Liebe Interessentin, lieber Interessent,

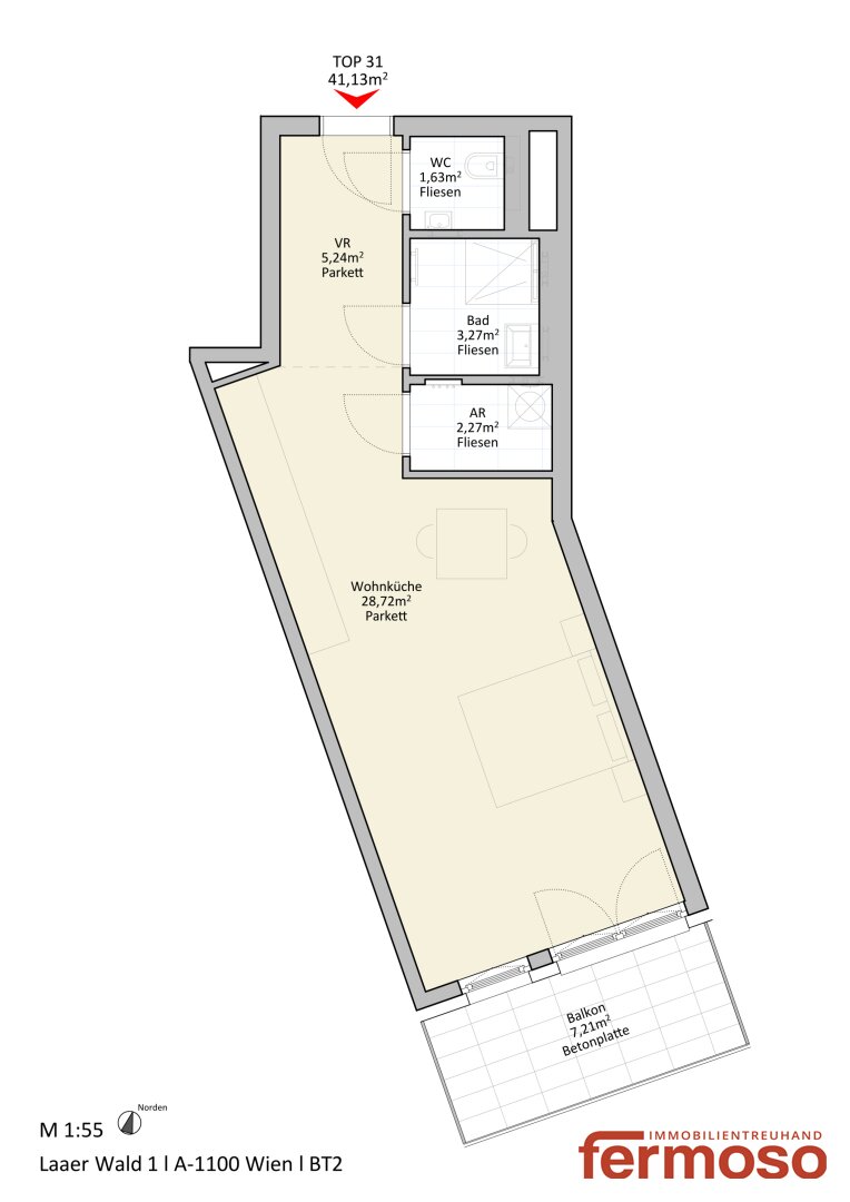
in attraktiver Lage am Laaer Wald 1 im 10. Bezirk erwartet Sie diese moderne 1-Zimmer-Wohnung mit ca. 41,13 m² Wohnfläche und einem Balkon mit ca. 7,21 m². Die Wohnung überzeugt durch eine durchdachte Raumaufteilung, helle Wohnbereiche und eine zeitgemäße Ausstattung – ideal für Singles, Pendler oder als Anlagewohnung.

Raumaufteilung & Flächen



Wohnküche: ca. 28,72 m² – großzügiger, offen gestalteter Wohn- und Schlafbereich mit direktem Zugang zum Balkon


Vorraum: ca. 5,24 m² – mit Platz für Garderobe


Abstellraum: ca. 2,27 m² – praktischer Stauraum


Badezimmer: ca. 3,27 m² – modern verfliest


Separates WC: ca. 1,63 m²


Balkon: ca. 7,21 m² – angenehme Freifläche für entspannte Stunden im Freien



Ausstattung



Parkettboden in Wohnküche und Vorraum


Verfliesung in Bad, WC und Abstellraum


Funktionaler Grundriss mit optimaler Nutzung der Wohnfläche


Balkon als zusätzlicher Wohnraum im Freien



Lage

Die Wohnung liegt in unmittelbarer Nähe zum Laaer Wald, einem beliebten Erholungsgebiet mit zahlreichen Freizeitmöglichkeiten. Nahversorgung, öffentliche Verkehrsmittel sowie die Anbindung an die Wiener Innenstadt sind sehr gut. Die Kombination aus ruhiger Grünlage und urbaner Infrastruktur macht diesen Standort besonders attraktiv.


? Kontakt:
Dean Banovic
? db@fermoso.at
? +43 676 926 15 29Noch nichts gefunden? Wir informieren Sie über geeignete Immobilienangebote noch vor allen anderen.Legen Sie jetzt Ihren individuellen Suchagenten unter folgendem Link an. Wir schicken Ihnen passende Immobilien exklusiv vorab zu.Suchagent anlegen - https://fermoso-immobilientreuhand.service.immo/registrieren/de
Wir weisen darauf hin, dass zwischen dem Vermittler und dem zu vermittelnden Dritten ein familiäres oder wirtschaftliches Naheverhältnis besteht.
Der Immobilienmakler erklärt, dass er – entgegen dem in der Immobilienwirtschaft üblichen Geschäftsgebrauch des Doppelmaklers – einseitig nur für den Vermieter tätig ist.Infrastruktur / EntfernungenGesundheitArzt <1.000mApotheke <500mKlinik <1.000mKrankenhaus <3.000mKinder & SchulenSchule <500mKindergarten <500mUniversität <1.000mHöhere Schule <2.500mNahversorgungSupermarkt <500mBäckerei <500mEinkaufszentrum <1.500mSonstigeGeldautomat <1.000mBank <1.000mPost <1.000mPolizei <1.500mVerkehrBus <500mU-Bahn <1.500mStraßenbahn <500mBahnhof <1.000mAutobahnanschluss <500mAngaben Entfernung Luftlinie / Quelle: OpenStreetMap
Fermoso Immobilientreuhand GmbH
Agent Name

Dean Banovic

Fermoso Immobilientreuhand GmbH

db@fermoso.at

Energie/Heizung

Befeuerung: Fernwärme

HWB (kWh/m²/Jahr): 15.5

HWB Energieklasse: A

fGEE: 0.65

fGEE Energieklasse: A+

Anbieter


Anfragen

Ergebnisse werden geladen ...