77.05 m² 2.040 € 3 Zimmer

Moderne 3 Zimmer mit Balkon (teilmöbliert) und vielen Extras im Haus!

05.01.2026

Objekt Standort

A-1100 Wien

marker Entfernung sowie Fahrtzeit (PKW) zu deinem Standort berechnen
oder
Die Route konnte nicht ermittelt werden

Allgemeine Informationen

Objekt ID: 3904
  • Vergabeart
    Miete
  • monatliche kosten
    2.040 €
  • Kaution
    6793.92€
  • Wohnfläche
    77.05 m²
  • Zimmer
    3
  • Provision
    Gemäß Erstauftraggeberprinzip bezahlt der Abgeber die Provision.

Ausstattung

  • Klimatisiert
  • Fahrstuhl
  • Barrierefrei
  • Sauna
  • Garage
  • Abstellraum

Freiflächen

  • Balkon
  • Garten

Beschreibung

Moderne 3 Zimmer mit Balkon (teilmöbliert) und vielen Extras im Haus!

3 Zimmer (teilmöbliert) mit Balkon direkt beim Belvedere mit viel Wohnkomfort! 


Beschreibung:

Genießen Sie den Ausblick über den Dächern von Wien und den Flair dieser exklusiven und einzigartigen Architektur / Säulenkonstruktion, das einzigartige urbane Wohngefühl mit Weitblick, Komfort und vielen Extras. Zeitlose, moderne Wohnungen mit smarter Ausstattung in einem der attraktivsten zentrumsnahen Stadtquartiere in Wien.

Ein großer SPA- und Fitnessbereich (im Hotelbereich) und eine atemberaubende Skybar erwarten Sie mit einem wunderschönen Ausblick!

In unmittelbarer Nachbarschaft des historischen Gartens von Schloss Belvedere begeistern die exklusiven Wohnungen im Quartier Belvedere, dank eines außergewöhnlichen architektonischen Konzepts mit imposanten Ausblicken. Durchdachter & exklusiver Wohnkomfort in jedem Detail.

 

 

Raumaufteilung:

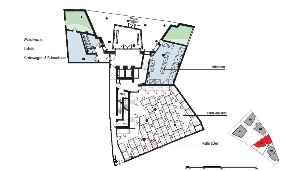
Vorraum, Wohnküche mit Balkon, Zwei Schlafzimmer, Badezimmer, WC, Abstellraum 

 

Ihre Vorteile der Anlage auf einen Blick:

Genießen Sie das einzigartige Wohngefühl in der "Stelzenkonstruktion", welche ab 8 Metern Höhe aufwärts atemberaubende Panoramablicke über die Stadt ermöglicht. Jede Einheit verfügt über Freiflächen wie Balkone, Terrassen, Loggien, die den Wohnraum auf besondere Weise erweitern. Für Ihre Bequemlichkeit werden Garagenplätze im Haus zur zusätzlichen Anmietung angeboten. Tauchen Sie ein in pure Entspannung im Fitness- und SPA-Bereich, während Sie die Vorteile der Lobby, Lounge und des integrierten Restaurants genießen. Praktische Annehmlichkeiten wie eine Waschküche mit WC beim Eingang, ein Fahrrad- und Kinderwagenabstellraum sowie ein hauseigener Spielplatz sorgen für ein komfortables und familienfreundliches Ambiente. Die Kellerabteile sind mit Steckdosen ausgestattet und eignen sich ideal für E-Bikes. Unsere barrierefreie Anlage gewährleistet höchste Zugänglichkeit mit elektrisch zu öffnenden Türen im Eingangsbereich, die auch Menschen mit eingeschränkter Mobilität ein komfortables Zuhause bieten.

 

Highlights


exklusives Carsharing: unabhängige Mobilität mit 2 hauseigenen E-Fahrzeugen / E-Mobilität /
Garage: E-Tankstellen
Fahrradvergnügen: Ausgebaute Radwege & Citybikes vor der Türe
Transportmobilität inhouse: Übergroße Liftanlagen (Fahrrad, Großmöbel etc.)
bequemes Parken: großzügige Garagen mit breiten Rampen
barrierefreie Zugänge: behindertengerechte, elektrisch zu öffnende Zugangstüren (Haus 2)
Smart Home Lösung
Eichen-Parkettböden in den Wohnräumen
raumhohe, französische Fenster (sehr helle Zimmer / viel Licht)
einbruchsichere Türe mit Videogegensprechanlage und Alarmsystem
intelligentes Beschattungssystem (Sonnenschutz)  inkl. Zentralschalter für ein behagliches Wohnraumklima
Fußbodenheizung & Deckenkühlung (Kühldecken) für ein angenehme Wohnraumtemperatur 
hohe Materialqualität in den Sanitärräumen und modernste Sanitärtechnologie („Tornado-Flush“ im WC / spülrandlose Keramik)


 

Lage und Infrastruktur:

Die Apartments befinden sich inmitten der pulsierenden Stadt Wien und liegen lediglich 5 Gehminuten vom Wiener Hauptbahnhof entfernt und gewährleistet somit eine optimale Anbindung an das U-Bahn-Netz. Die bestmögliche Erreichbarkeit sämtlicher öffentlicher Verkehrsmittel, darunter Busse, Straßenbahnen und Schnellbahnen, macht die Lage besonders attraktiv. Auch ist an Wochenenden die Nahversorgung durch Geschäfte (des täglichen Bedarfs) direkt am Hauptbahnhof gewährleistet. Das Shoppingerlebnis ist nur 3 Gehminuten von der Shopping-Mall - ebenfalls am Hauptbahnhof liegend - entfernt. Ein stadtnaher Wohnsitzt bietet nicht nur die Nähe zum Stadtzentrum, sondern auch ein reichhaltiges Kulturangebot in Gehweite. 

 

Der Bahnhofcity Wien Hauptbahnhof bietet Zugverbindungen in alle möglichen Richtungen, und die U-Bahn-Stationen Keplerplatz und Südtirolerplatz/Hauptbahnhof sind bequem zu erreichen. Die S-Bahnen S1, S2, S3, S60, S80, Straßenbahnen D, 18, O sowie die Autobusse 69A und 13A bieten eine perfekte Verkehrsanbindung. Egal ob mit dem Auto, Fahrrad oder den öffentlichen Verkehrsmitteln - die Lage ist optimal.

 

Für Reisende entsteht durch die Direktverbindung zum Flughafen durch den Railjet vom Hauptbahnhof nochmal einen großen Pluspunkt. Erholungssuchende profitieren von einer privaten Gartenanlage, einem Grünareal vor der Haustüre sowie der Nähe zum Schweizergarten und dem Botanischen Garten des Belvedere.

 

Konditionen:

Vermietet wird auf eine Mietdauer von 4 Jahren mit Verlängerungsmöglichkeit;

Kündigungsverzicht: 1 Jahr; Kündigungsfrist: 3 Monate;

Gesamtmiete (inkl. BK, Heiz- und Warmwasserkosten, Kühlung, Lift und Steuern): € 2.264,64

 

Kaution: € 6.793,92

Vertragserrichtung: € 360, -

provisionsfrei für den/die Mieter*in

 

Strom wird auf den/die Mieter*in umgemeldet.

Garagenstellplätze bei Bedarf separat anmietbar.

Eine Haushaltsversicherung wird empfohlen.

 

 

Hinweis:

Dies sind keine Originalbilder!

Die Wohnung wird teilmöbliert vermietet! Diverse Fotos stammen von nebenliegenden oder ähnlichen Wohnungen und dienen daher als gute Veranschaulichung und bieten gleichzeitig die Möglichkeit zum Vergleich! Zimmeraufteilung und Ausblick entsprechen den Fotos. 

 

 

Kontakt:

Bitte beachten Sie, dass wir aufgrund der Nachweispflicht gegenüber dem Eigentümer nur Anfragen mit vollständiger Angabe der Anschrift bearbeiten können.

Wir senden Ihnen gerne weitere und detaillierte Beschreibungen, sowie Besichtigungstermine zu, sobald wir Ihre Anfrage erhalten haben.

Wir bitten Sie daher um eine E-Mail-Anfrage an: stifter@pr-immobilien.atNoch nichts gefunden? Wir informieren Sie über geeignete Immobilienangebote noch vor allen anderen.
Legen Sie jetzt Ihren individuellen Suchagenten unter folgendem Link an. Wir schicken Ihnen passende Immobilien exklusiv vorab zu.
Suchagent anlegen - https://pr-immobilien-real-estate.service.immo/registrieren/de
Der Immobilienmakler erklärt, dass er – entgegen dem in der Immobilienwirtschaft üblichen Geschäftsgebrauch des Doppelmaklers – einseitig nur für den Vermieter tätig ist.Infrastruktur / EntfernungenGesundheitArzt <500mApotheke <500mKlinik <500mKrankenhaus <1.500mKinder & SchulenSchule <1.000mKindergarten <500mUniversität <1.500mHöhere Schule <1.500mNahversorgungSupermarkt <500mBäckerei <500mEinkaufszentrum <1.000mSonstigeGeldautomat <500mBank <500mPost <500mPolizei <500mVerkehrBus <500mU-Bahn <1.000mStraßenbahn <500mBahnhof <500mAutobahnanschluss <1.500mAngaben Entfernung Luftlinie / Quelle: OpenStreetMap
PR-IMMOBILIEN / REAL ESTATE
Agent Name

Marissa Stifter

PR-IMMOBILIEN / REAL ESTATE

stifter@pr-immobilien.at

Energie/Heizung

Befeuerung: Fernwärme

HWB (kWh/m²/Jahr): 26.5

HWB Energieklasse: A

fGEE: 0.72

fGEE Energieklasse: A

Anbieter


Anfragen

Ergebnisse werden geladen ...