183 m² 795.000 € 5 Zimmer

EINFAMILIENHAUS IN RUHELAGE | Ziegelhaus | großzügig, hell & hochwertig ausgestattet | mit Garten & Stellplatz

10.10.2025

Objekt Standort

Telephonweg , A-1220 Wien

marker Entfernung sowie Fahrtzeit (PKW) zu deinem Standort berechnen
oder
Die Route konnte nicht ermittelt werden

Allgemeine Informationen

Objekt ID: 439
  • Vergabeart
    Kauf
  • Kaufpreis
    795.000 €
  • Wohnfläche
    183 m²
  • Zimmer
    5
  • Provision
    3% des Kaufpreises zzgl. 20% USt.

Ausstattung

  • Einbauküche
  • Abstellraum
  • Parkplatz

Freiflächen

  • Balkon
  • Garten
  • Terrasse

Beschreibung

EINFAMILIENHAUS IN RUHELAGE | Ziegelhaus | großzügig, hell & hochwertig ausgestattet | mit Garten & Stellplatz

IMPULS Immobilien bietet nachfolgendes Objekt ab sofort zum KAUF an:


Modernes Einfamilienhaus in Ziegelmassivbauweise mit sonnigem Garten und viel Wohnkomfort im 22. Bezirk von Wien


HERZLICH WILLKOMMEN ...


… im gefragten 22. Wiener Gemeindebezirk! Hier erwartet Sie ein hochwertiges Neubau-Einfamilienhaus in Ziegelmassivbauweise. Sorgfältig geplant, modern ausgestattet und in ruhiger Lage gelegen – ein Zuhause, das keine Wünsche offenlässt.


FACTBOX



  • Ziegelmassivhaus

  • ca. 183 m² Wohnfläche (EG, OG, KG)

  • große, helle Wohnküche

  • separates WC im EG

  • 1 Zimmer im EG

  • 3 weitere Zimmer im OG

  • 2 Badezimmer im OG

  • Abstellraum

  • Terrasse

  • attraktiver Garten

  • Autoabstellplatz mit E-Anschluss

  • Keller mit 2 großen Räumen


ÜBER DAS HAUS


Dieses Einfamilienhaus aus Ziegelmassivbauweise befindet sich in ruhiger Lage am Telephonweg. Auf drei Ebenen (EG, OG und KG) bietet es viel Platz für die ganze Familie. Highlight ist der großzügige, gut nutzbare Garten, der für Erholung und Freizeitgestaltung ideal ist.


Hochwertige Parkettböden, Fußbodenheizung auf allen Ebenen (Vaillant Luft-Wasser-Wärmepumpe) und Lärchenholz-Beläge auf Balkon und Terrasse sorgen für ein angenehmes Wohnambiente.
 



  • ERDGESCHOSS:
    Beim Betreten des Hauses gelangen Sie in einen offenen Vorraum. Gleich linker Hand befindet sich ein separates WC mit Handwaschbecken, rechts ein ca. 11 m² großes Zimmer mit Blick ins Grüne. Der lichtdurchflutete Wohnbereich (ca. 36 m²) bietet reichlich Platz für eine großzügige Küche und ein einladendes Wohnzimmer. Zwei Fixverglasungen und eine Schiebetüre lassen viel Tageslicht herein und verbinden das Innere mit dem Außenbereich. Von hier aus geht es auf die ca. 25 m² große Terrasse und weiter in den rund 168 m² großen, sonnigen Garten – perfekt zum Entspannen oder Garteln.
    Direkt neben dem Haus befindet sich ein privater Autoabstellplatz mit E-Anschluss.
     

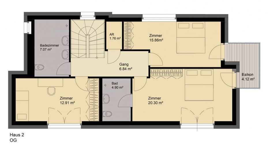
  • 1. STOCK:
    Eine Stiege führt in den 1. Stock, wo drei gut geschnittene Zimmer (ca. 13, 16 und 20 m²) auf Sie warten. Das Geschoss punktet zudem mit zwei modernen Bädern: einem großzügigen Familienbad mit riesiger, bodenebener Dusche, WC und Doppelwaschtisch sowie einem en suite Bad beim größten Schlafzimmer mit Dusche, WC und Waschtisch. Zwei Zimmer haben direkten Zugang zu einem gemütlichen Balkon. Ein praktischer Abstellraum rundet das Angebot im Obergeschoss ab.
     

  • KELLERGESCHOSS:
    Das Untergeschoß umfasst zwei großzügige Lagerräume inkl. Technik-/Heizraum und überzeugt mit einer angenehmen Raumhöhe von ca. 2,5 m.



Ein weiteres Haus ist im vorderen Bereich des Grundstücks ebenfalls zu haben. Mit dem Kauf erwerben sie Wohnungseigentum am jeweiligen Haus und dessen Grundstücksanteil.


ZUR LAGE & ZUR INFRASTRUKTUR


Dieses schöne Objekt liegt im beliebten 22. Bezirk, in Essling, unweit der Breitenleer Straße.


Trotz der angenehmen Ruhelage genießen Sie eine gute Infrastrukur. In nur 8 Minuten erreichen Sie mit dem Auto die Auffahrt zur S2 (Wiener Nordrand Schnellstraße) die Sie in Windeseile zur Wiener Tangente und so in die Wiener City bringt. Das Einkaufszentrum "City Gate" liegt nur 15 Fahrminuten entfernt.


Radeln, Spazieren und Erholung sind abseits vom Lärm der Großstadt direkt vor der Haustüre möglich. In einem engen Radius um das Objekt befinden sich herrliche Naherholungsgebiete. Die Wiener Donauinsel erreichen Sie mit dem Auto in ca. einer Viertelstunde, und auch das Naturschutzgebiet Lobau liegt ganz in der Nähe. Vor der eigenen Haustüre lässt es sich ebenfalls herrlich die Seele baumeln lassen. Direkt an das Grundstück grenzt unbebautes Grünland. Feldwege laden zu Radausfahrten und Spaziergängen ein.


Auch öffentlich sind Sie gut angebunden. Nur eine Gehminute entfernt befindet sich die Station der Buslinie 89A, dieser bringt Sie in nur 15 Minuten zur U2-Station "Seestadt".


Alle Einrichtungen des täglichen Bedarfs sind innerhalb weniger Minuten erreichbar!


INTERESSIERT?


Gerne stehen wir jederzeit für einen persönlichen Termin oder Rückfragen aller Art
unter 
office@impuls-immobilien.at bzw. telefonisch unter 0650/8566764 zur Verfügung!


Wir weisen darauf hin, dass zwischen dem Vermittler und dem zu vermittelnden Dritten ein familiäres oder wirtschaftliches Naheverhältnis besteht.


Infrastruktur / Entfernungen

Gesundheit
Arzt <3.700m
Apotheke <4.225m
Klinik <4.400m
Krankenhaus <6.925m
Kinder & Schulen
Schule <2.750m
Kindergarten <3.925m
Universität <4.475m
Höhere Schule <4.575m
Nahversorgung
Supermarkt <2.725m
Bäckerei <2.975m
Einkaufszentrum <5.650m
Sonstige
Bank <4.500m
Geldautomat <4.200m
Post <4.475m
Polizei <4.625m
Verkehr
Bus <75m
U-Bahn <3.650m
Straßenbahn <3.675m
Bahnhof <3.625m
Autobahnanschluss <2.050m
Angaben Entfernung Luftlinie / Quelle: OpenStreetMap

IMPULS Immobilien
Agent Name

Markus Verner

Energie/Heizung

Befeuerung:

HWB (kWh/m²/Jahr): 41.5

HWB Energieklasse: B

fGEE: 0.58

fGEE Energieklasse: A+

Anbieter


Anfragen

Ergebnisse werden geladen ...