485.22 m² 2.950.000 € 10 Zimmer

Jahrhundertwendevilla mit Seltenheitswert – im Bestand nutz- und renovierbar oder als attraktives 4-Parteien-Projekt übernehmbar

13.12.2025

Objekt Standort

A-1140 Wien

marker Entfernung sowie Fahrtzeit (PKW) zu deinem Standort berechnen
oder
Die Route konnte nicht ermittelt werden

Allgemeine Informationen

Objekt ID: 4767
  • Vergabeart
    Kauf
  • Kaufpreis
    2.950.000 €
  • Wohnfläche
    485.22 m²
  • Grundfläche
    939.66 m²
  • Zimmer
    10
  • Provision
    106.200,00 € inkl. 20% USt.

Ausstattung

  • Einbauküche
  • Abstellraum

Freiflächen

  • Balkon
  • Garten
  • Terrasse

Beschreibung

Jahrhundertwendevilla mit Seltenheitswert – im Bestand nutz- und renovierbar oder als attraktives 4-Parteien-Projekt übernehmbar

Zum Verkauf gelangt ein dreistöckiges, historisches Haus in der Nähe des Baumgartner-Casino-Parks, das entweder im Bestand übernommen und renoviert werden kann oder in ein modernes 4-Parteienhaus umgewandelt werden kann. 

Das Projekt:

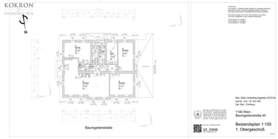
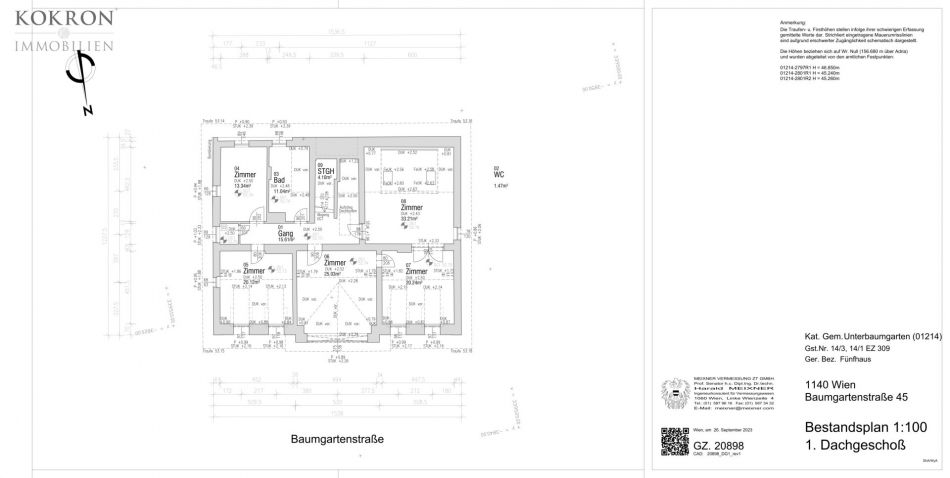
Das Projekt (Planungsphase) in der Baumgartenstraße in 1140 Wien umfasst die Komplettsanierung und Erweiterung (Dachausbau) eines bestehenden Gebäudes, das in ein modernes Wohnhaus mit vier exklusiven Wohneinheiten umgewandelt wird. Jede der vier Wohnungen bietet eine großzügige Wohnfläche von 190 m², die sich durch eine harmonische Verbindung von klassischen Elementen und modernen Akzenten auszeichnet. Darüber hinaus verfügt jede Einheit über großzügige Außenbereiche, die den Wohnkomfort der Bewohner erhöhen. Je nach Etage bieten die Wohnungen Balkone, private Gärten oder Dachterrassen, die nicht nur entspannende Orte, sondern auch einen schönen Ausblick auf die Umgebung bieten. Das Projekt bietet somit die perfekte Kombination aus urbanem Leben und einem ruhigen, privaten Rückzugsort – ideal für Familien, Paare und Singles, die großzügigen Wohnraum in einer gut angebundenen Lage suchen.

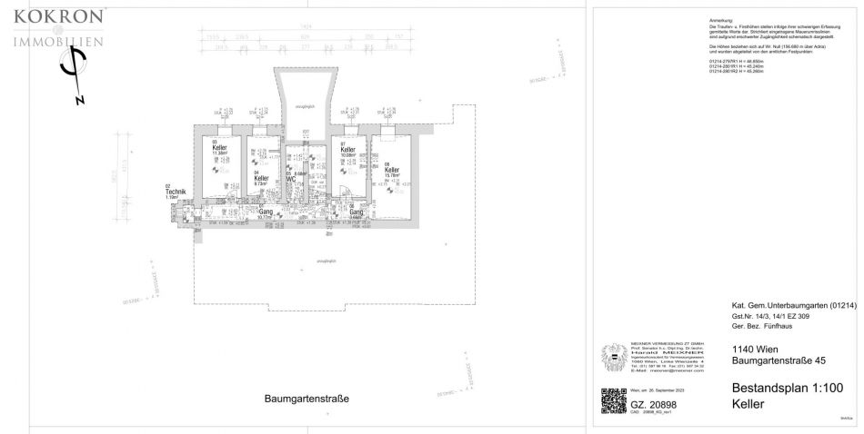
Die Villa besteht aus 3 Stockwerken. Die Garage bietet Platz für 2 Autos und es gibt 1 Stellplatz am Grundstück. Der Garten lädt zum Sonnen, Grillen und Entspannen ein.

Neben seiner Funktion als hochwertige Wohnimmobilie eignet sich das Gebäude dank seines repräsentativen Charakters, der zentralen Lage und der großzügigen Grundrisse auch hervorragend für die gewerbliche Nutzung – beispielsweise für Arztpraxen, Anwaltskanzleien oder Steuerberatungsbüros.

Weitere Fakten:


Das Haus wurde 1995 aufwändig renoviert und luxuriös ausgestattet.
2020 wurde die Fassade erneuert und großteils thermisch saniert.
Im ca. 693 m² großen, südseitig gelegenen, gepflegten Garten befindet sich eine ca. 25 m² große überdachte Terrasse.
Das Bestandshaus unterliegt nicht dem Denkmalschutz.
Bauklasse II bis 10,5 m Gebäudehöhe.


Besichtigungen:

Hat diese Immobilie Ihr Interesse geweckt? Ich freue mich auf Ihre Anfrage! Für weitere Fragen stehe ich Ihnen gerne jederzeit zur Verfügung! Lediglich Anfragen mit vollständigem Namen, einer Telefonnummer sowie einer E-Mail-Adresse können unsererseits bearbeitet werden. Die von uns bereitgestellten Informationen beruhen auf Angaben des Abgebers. Für die Richtigkeit und Vollständigkeit der Angaben kann keine Gewähr bzw. Haftung übernommen werden. Änderungen vorbehalten!
Hinweis gemäß Energieausweisvorlagegesetz: Ein Energieausweis wurde vom Eigentümer bzw. Verkäufer, nach unserer Aufklärung über die generell geltende Vorlagepflicht, sowie Aufforderung zu seiner Erstellung noch nicht vorgelegt. Daher gilt zumindest eine dem Alter und der Art des Gebäudes entsprechende Gesamtenergieeffizienz als vereinbart. Wir übernehmen keinerlei Gewähr oder Haftung für die tatsächliche Energieeffizienz der angebotenen Immobilie.
Wir weisen darauf hin, dass zwischen dem Vermittler und dem zu vermittelnden Dritten ein familiäres oder wirtschaftliches Naheverhältnis besteht.
Der Vermittler ist als Doppelmakler tätig.Infrastruktur / EntfernungenGesundheitArzt <500mApotheke <500mKlinik <2.000mKrankenhaus <1.500mKinder & SchulenSchule <500mKindergarten <500mUniversität <1.500mHöhere Schule <3.500mNahversorgungSupermarkt <500mBäckerei <500mEinkaufszentrum <3.000mSonstigeGeldautomat <500mBank <500mPost <500mPolizei <1.000mVerkehrBus <500mU-Bahn <500mStraßenbahn <500mBahnhof <500mAutobahnanschluss <5.000mAngaben Entfernung Luftlinie / Quelle: OpenStreetMap
Kokron Immobilien e.U.
Agent Name

Gisela Kokron

Kokron Immobilien e.U.

kokron@kokron-immobilien.at

Energie/Heizung

Heizungsart: Etagenheizung

Befeuerung: Gas

Anbieter


Anfragen

Ergebnisse werden geladen ...