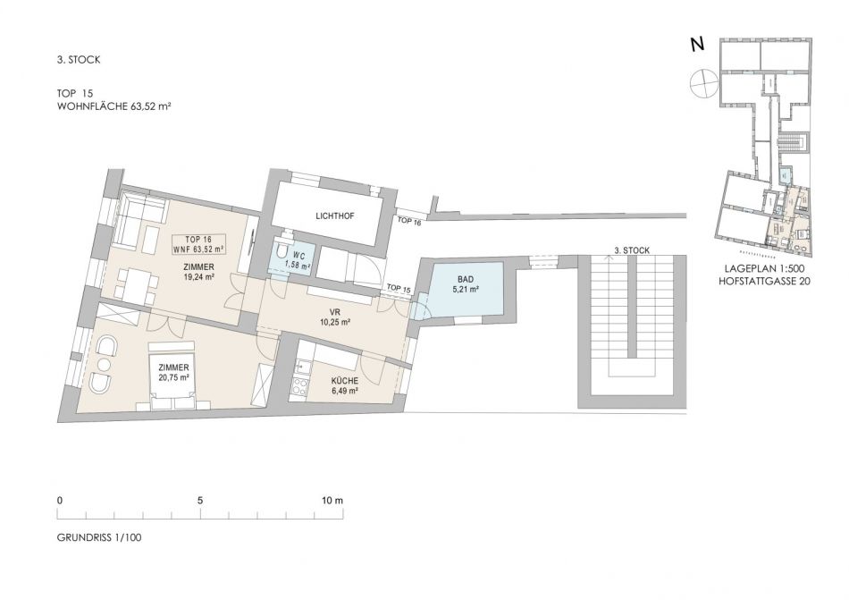
63.52 m² 489.000 € 2 Zimmer

Charmante und geräumige 2-Zimmer-Altbauwohnung nahe Währinger Straße

23.03.2026

Objekt Standort

Hofstattgasse , A-1180 Wien

marker Entfernung sowie Fahrtzeit (PKW) zu deinem Standort berechnen
oder
Die Route konnte nicht ermittelt werden

Allgemeine Informationen

Objekt ID: 5735/3796
  • Vergabeart
    Kauf
  • Kaufpreis
    489.000 €
  • Wohnfläche
    63.52 m²
  • Zimmer
    2
  • Provision
    3% des Kaufpreises zzgl. 20% USt.

Ausstattung

  • Einbauküche
  • Fahrstuhl

Beschreibung

Charmante und geräumige 2-Zimmer-Altbauwohnung nahe Währinger Straße

Charmante 2-Zimmerwohnung im beliebten 18. Bezirk zum Kauf!


Diese neu sanierte  Altbau-Wohnung befindet sich in einem schönen Stil-Altbau in einer ruhigen Wohnlage des 18. Wiener Gemeindebezirkes. Die Fassade sowie das Stiegenhaus wurden vor Kurzem saniert und das Haus bietet den Eigentümern ein tolles Flair. Die Wohnung besticht durch die typischen Altbauelemente wie hohe Räumlichkeiten, wunderschönen Fischgrätparkettboden und den liebevoll renovierten, historischen Türen. Bei der Sanierung wurde höchstes Augenmerk darauf gelegt, den Charme dieser wundervollen Altbau-Wohnung zu bewahren. Die Wohnung bietet viel Platz und verleiht eine sehr angenehme Wohnatmosphäre, aufgeteilt auf 2 Zimmer und einer separaten Küche, die auch Platz für einen eigenen Essplatz bietet. Die zwei sehr großen und helle Wohnräume mit hohen Fenstern sind auf die ruhige Hofstattgasse ausgerichtet. Hervorzuheben ist auch das sehr große Badezimmer mit Fenster in den schönen Innenhof.
Überzeugen Sie sich selbst von dieser schönen und stilvollen Wohnung im Herzen des beliebten 18. Bezirkes.


Raumaufteilung:



  • Vorraum

  • Wohnzimmer

  • Schlafzimmer

  • Küche

  • Bad

  • WC


Ein Lift wird seitens des Hauseigentümers in den  nächsten drei Jahren errichtet. Ein Fahrrad-Abstellplatz ist im Innenhof vorhanden.
Im Zuge der derzeitigen Parifizierung können sich die Betriebskosten und Rücklage noch geringfügig verändern.


Lage:


Das Objekt befindet sich im 18. Wiener Gemeindebezirk in der Nähe der Gentzgasse und der Währinger Straße. Zahlreiche Geschäfte des täglichen Bedarfs befinden sich in unmittelbarer Nähe und bieten zusammen mit der öffentlichen Verkehrsanbindung eine sehr gute Infrastruktur. Es gibt mehrere Kindergärten und Schulen in der Umgebung. Der nahe Türkenschanzpark (ca. 10 Gehminuten) bietet Erholung im Grünen.
 


Öffentliche Verkehrsmittel


- Straßenbahnlinien 40 und 41


- U-Bahn U6 Währinger Straße


- Bahnhof Wien Gersthof: Schnellbahn S45


unverbindliche Besichtigung:


Wir freuen uns, Ihnen das Objekt jederzeit persönlich vorzustellen zu dürfen.


Kontaktieren Sie gerne Frau Petra Gepp persönlich unter +43 660 201 89 47 sowie auch unter gepp@thurner-realitaeten.atUnser Büro erreichen Sie unter office@thurner-realitaeten.at.


Nebenkosten: 


Nebenkosten:


Grundbucheintragung: 1,1% d.KP. 


Grunderwerbssteuer: 3,5% d.KP.


Maklerprovision: 3% d.KP. + 20% USt. 


Die Errichtung und Durchführung des Kaufvertrages erfolgt durch Tiefenthaler Gnesda Rechtsanwälte GmbH zu einem Pauschalhonorar von 1,2% des Kaufpreises zzgl. USt. + Barauslagen


Maklervereinbarung: Wir ersuchen um Verständnis, dass wir bei Anfragen zur Objektadresse, bzw. Besichtigungstermin aufgrund neuer gesetzlicher Bestimmungen Unterlagen erst dann zusenden können, wenn Sie vorab bestätigen, dass Sie unser sofortiges Tätigwerden wünschen und über Ihre Rücktrittsrechte aufgeklärt wurden. Sie bekommen nach Ihrer schriftlichen Anfrage mit vollständiger Angabe des Namens, Anschrift und Telefonnummer ein E-Mail, in dem Sie diese Punkte bestätigen müssen.



Haftungsausschluss:  Wir weisen darauf hin, dass sämtliche Daten im vorliegenden Angebot sowie die von unserem Büro an Sie weitergegebenen Auskünfte, vom Eigentümer der Immobilie zur Verfügung gestellt wurden. Ebenso sind Informationen von Dritten (z.B. behördliche Informationen) eingeholt worden, auch für diese können wir unsererseits keinerlei Haftung für deren uneingeschränkte Richtigkeit übernehmen.


Auf ein wirtschaftliches Naheverhältnis mit dem Abgeber, bedingt durch regelmäßige Geschäftsbeziehungen, wird hingewiesen.
 


Wir weisen darauf hin, dass zwischen dem Vermittler und dem zu vermittelnden Dritten ein familiäres oder wirtschaftliches Naheverhältnis besteht.


Der Vermittler ist als Doppelmakler tätig.


Infrastruktur / Entfernungen

Gesundheit
Arzt <250m
Apotheke <250m
Klinik <750m
Krankenhaus <1.000m
Kinder & Schulen
Schule <250m
Kindergarten <250m
Universität <1.000m
Höhere Schule <250m
Nahversorgung
Supermarkt <250m
Bäckerei <250m
Einkaufszentrum <1.250m
Sonstige
Geldautomat <500m
Bank <500m
Post <500m
Polizei <500m
Verkehr
Bus <250m
U-Bahn <1.000m
Straßenbahn <250m
Bahnhof <750m
Autobahnanschluss <2.250m
Angaben Entfernung Luftlinie / Quelle: OpenStreetMap

Agent Name

Petra Gepp

THURNER REALITÄTEN GMBH

gepp@thurner-realitaeten.at

Energie/Heizung

Heizungsart: Etagenheizung

Befeuerung: Gas

HWB (kWh/m²/Jahr): 165

HWB Energieklasse: E

fGEE: 2.37

fGEE Energieklasse: D

Anbieter


Anfragen

Ergebnisse werden geladen ...