Sommer am Teich - im Leo am Teich - Wohnen am Wasser
Objekt Standort
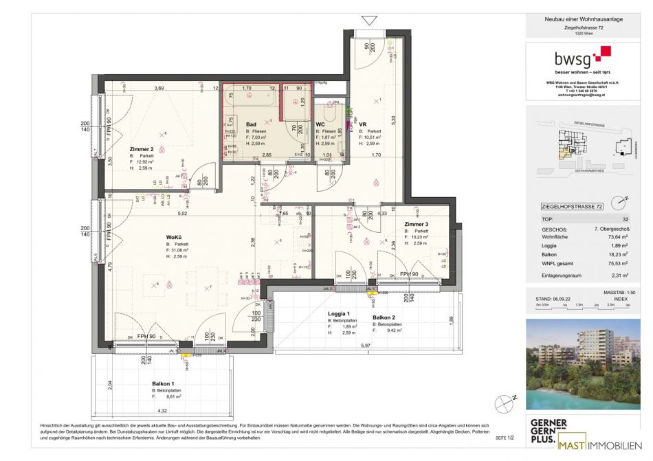
Ziegelhofstraße , A-1220 Wien
Allgemeine Informationen
Objekt ID: 5387/7457-
VergabeartKauf
-
Kaufpreis483.915 €
-
Wohnfläche73.64 m²
-
Nutzfläche75.53 m²
-
Zimmer3
-
ProvisionProvisionsfrei
Ausstattung
-
Fahrstuhl
Beschreibung
Sommer am Teich - im Leo am Teich - Wohnen am Wasser
Direkt beim Hirschstettner Badesee entstehen 99 freifinanzierte Eigentumswohnungen. Neben dem idyllischen Badeteich mit Erholungsmöglichkeiten und Spielplätzen rund um den Teich bietet das neue Stadtgebiet grundlegende Einrichtungen zur Nahversorgung. Die Gebäude zeichnen sich durch eine Höhenstaffelung in vier vorgegebenen Bauklassen mit zwei bis maximal elf Geschoßen aus. Auf diese Weise wird eine ausreichende Belichtung der Gebäude und des Freiraums gewährleistet. Bei der Planung haben wir auch an Selbstversorger gedacht: bestehende Gewächshäuser sollen gemeinschaftlich genutzt werden. Ein großer Anteil der Dachflächen pro Bauplatz werden begrünt und auch begehbar sein.
Des Weiteren legen wir ein besonderes Augenmerk auf den optimalen Nutzungsmix von gewerblich und gemeinschaftlich genutzten Flächen: In den Erdgeschoßzonen ist Platz für Supermärkte, Lokale, eine Apotheke und Bäckerei sowie einen Kindergarten. Gemeinschaftsräume wie eine Bibliothek, einen Spieleverleih- und Multifunktionsraum bieten Möglichkeiten für eine individuelle Freizeitgestaltung.
Wasser ist ein charakteristisches Element des Gebietes und wird das neue Stadtviertel prägen. Die bestehenden Freiräume am Hirschstettner Badeteich werden durch Cafés und Aufenthaltsbereiche aufgewertet.
Ausreichend Grün- und Freiräume zu gestalten, ist uns besonders wichtig. Geplant sind Kinder- und Jugendspielplätze, Sportflächen für die aktiven Bewohner:innen und Grünflächen für Erholungssuchende.
Im vorwiegend autofreien Viertel überwiegen Rad- und Fußwege. Dennoch kommen Autobesitzer mit zahlreichen Tiefgaragen-Parkplätzen nicht zu kurz. Mobilitätsstationen bieten Bike und Carsharing; aber auch Serviceleistungen wie eine Fahrradreparaturwerkstatt an.
Für Elektrofahrzeugbesitzer:innen: Alle Stellplätze der BWSG-Objekte werden für die E-Mobilität vorbereitet.
Infrastruktur / Entfernungen
Gesundheit
Arzt <300m
Apotheke <500m
Klinik <775m
Krankenhaus <3.000m
Kinder & Schulen
Schule <400m
Kindergarten <150m
Universität <3.075m
Höhere Schule <3.025m
Nahversorgung
Supermarkt <550m
Bäckerei <600m
Einkaufszentrum <1.450m
Sonstige
Bank <775m
Geldautomat <550m
Post <825m
Polizei <900m
Verkehr
Bus <175m
U-Bahn <1.225m
Straßenbahn <450m
Bahnhof <1.225m
Autobahnanschluss <1.100m
Angaben Entfernung Luftlinie / Quelle: OpenStreetMap

Stefanie Vidovic
MA.ST Immobilien & Design e.U.
office@mast-immo.atEnergie/Heizung
Heizungsart: Fernwärme
HWB (kWh/m²/Jahr): 52.57
HWB Energieklasse: C
fGEE: 0.74
fGEE Energieklasse: A