Mehr Stil pro Quadratmeter - Wohnen mit Fischgrätflair! Erstbezug + Traumhaft schönes Altbauhaus + Perfekte Infrastruktur und Anbindung + Neue Einbauküche! Jetzt zugreifen!
Objekt Standort
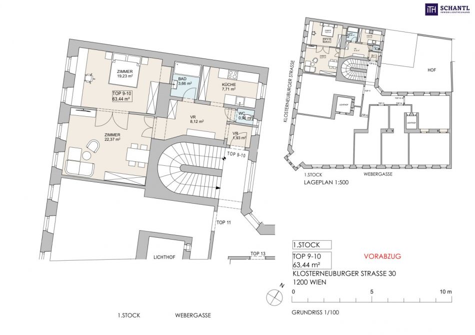
Klosterneuburger Straße , A-1200 Wien
Allgemeine Informationen
Objekt ID: 288860-
VergabeartKauf
-
Kaufpreis369.000 €
-
Wohnfläche63.44 m²
-
Nutzfläche63.44 m²
-
Zimmer2
-
Provision3% des Kaufpreises zzgl. 20% USt.
Ausstattung
-
Einbauküche
Beschreibung
Mehr Stil pro Quadratmeter - Wohnen mit Fischgrätflair! Erstbezug + Traumhaft schönes Altbauhaus + Perfekte Infrastruktur und Anbindung + Neue Einbauküche! Jetzt zugreifen!
Alte Mauern, neues Glück!
Mehr Stil pro Quadratmeter - Wohnen mit Fischgrätflair! Erstbezug + Traumhaft schönes Altbauhaus + Perfekte Infrastruktur und Anbindung + Neue Einbauküche! Jetzt zugreifen!
Worauf warten Sie?
Hier wohnt der gute Geschmack schon länger!
Ihre neue Wohnung wird Sie restlos begeistern und teilt sich in einen geräumigen Vorraum mit Platz für eine Garderobe und Stauraum, ein separates WC mit Handwaschbecken und Fenster, ein stylisches Badezimmer mit Walk-In Dusche und Waschmaschinenanschluss, eine separate und voll ausgestattete Küche mit Fenster, ein gemütliches Wohn-Esszimmer sowie ein kuscheliges und großzügiges Schlafzimmer.
Schauen Sie sich dieses perfekte Raumkonzept sowie das schöne Altbauhaus an und überzeugen Sie sich selbst!
Ein Lift wird noch vetraglich gesichert und auf Kosten des Verkäufers in den kommenden 3 Jahren eingebaut!
Wohnfläche: ca. 63,44m² + Kellerabteil
Kaufpreis: € 369.000.-
Bezug: ab sofort
Diese Wohnungen haben bereits glückliche, neue Eigentümer: TOP 14, TOP 31-32
Worauf warten Sie noch? Vereinbaren Sie noch, vereinbaren Sie heute noch einen Termin!
www.schantl-ith.at
Bei konkretem Interesse senden wir Ihnen sehr gerne weiterführende Dokumente zu, wie:
o Grundbuchauszug
o Wohnungseigentumsvertrag
o Nutzwertgutachten
o Eigentümerversammlungsprotokoll (Falls vorhanden) etc...
Unser Service für Sie: Wenn Sie sich für diese Immobilie entschieden haben, begleiten wir Sie gerne vom Kaufanbot weg inkl. Klärung von Sonderwünschen und der Vertragsunterzeichnung über die Wohnungsübergabe bis hin zu diversen Ummeldungen wie Strom und Gas. Entsprechende Formulare oder auch Meldezettel stellen wir Ihnen sehr gerne zur Verfügung.
Gerne unterstützen wir Sie auch bei der Finanzierung Ihres Traumobjekts und finden mit unseren langjährigen Partnern die besten Konditionen für Sie.
Vereinbaren Sie noch heute einen Termin, wir beraten Sie gerne!
Wir weisen darauf hin, dass zwischen dem Vermittler und dem zu vermittelnden Dritten ein familiäres oder wirtschaftliches Naheverhältnis besteht.
Der Vermittler ist als Doppelmakler tätig.
Infrastruktur / Entfernungen
Gesundheit
Arzt <250m
Apotheke <250m
Klinik <1.000m
Krankenhaus <1.500m
Kinder & Schulen
Schule <250m
Kindergarten <250m
Universität <750m
Höhere Schule <1.000m
Nahversorgung
Supermarkt <250m
Bäckerei <250m
Einkaufszentrum <1.250m
Sonstige
Geldautomat <250m
Bank <250m
Post <500m
Polizei <500m
Verkehr
Bus <250m
U-Bahn <500m
Straßenbahn <250m
Bahnhof <500m
Autobahnanschluss <1.250m
Angaben Entfernung Luftlinie / Quelle: OpenStreetMap

Samir Agha-Schantl
Schantl ITH Immobilientreuhand GmbH
samir.agha-schantl@schantl-ith.atEnergie/Heizung
Heizungsart: Etagenheizung
Befeuerung: Gas
HWB (kWh/m²/Jahr): 120.8
HWB Energieklasse: D
fGEE: 3.76
fGEE Energieklasse: F