Starten Sie Ihr Business! Gewerbliches Wohnen/Kurzzeitvermietung! Bestandsfreies Zinshaus in TOP-Lage gleich bei der U-Bahn Ottakring! Optimale Grundrisse + Beste Infrastruktur!
Objekt Standort
Enenkelstraße , A-1160 Wien
Allgemeine Informationen
Objekt ID: 282038-
VergabeartKauf
-
Kaufpreis2.990.000 €
-
Wohnfläche1147 m²
-
Nutzfläche1273 m²
-
Grundfläche680 m²
-
Provision3% des Kaufpreises zzgl. 20% USt.
Freiflächen
-
Balkon
-
Garten
-
Terrasse
Beschreibung
Starten Sie Ihr Business! Gewerbliches Wohnen/Kurzzeitvermietung! Bestandsfreies Zinshaus in TOP-Lage gleich bei der U-Bahn Ottakring! Optimale Grundrisse + Beste Infrastruktur!
Starten Sie Ihr Business! Gewerbliches Wohnen/Kurzzeitvermietung! Bestandsfreies Zinshaus in TOP-Lage gleich bei der U-Bahn Ottakring! Optimale Grundrisse + Beste Infrastruktur!
TOP Gelegenheit!
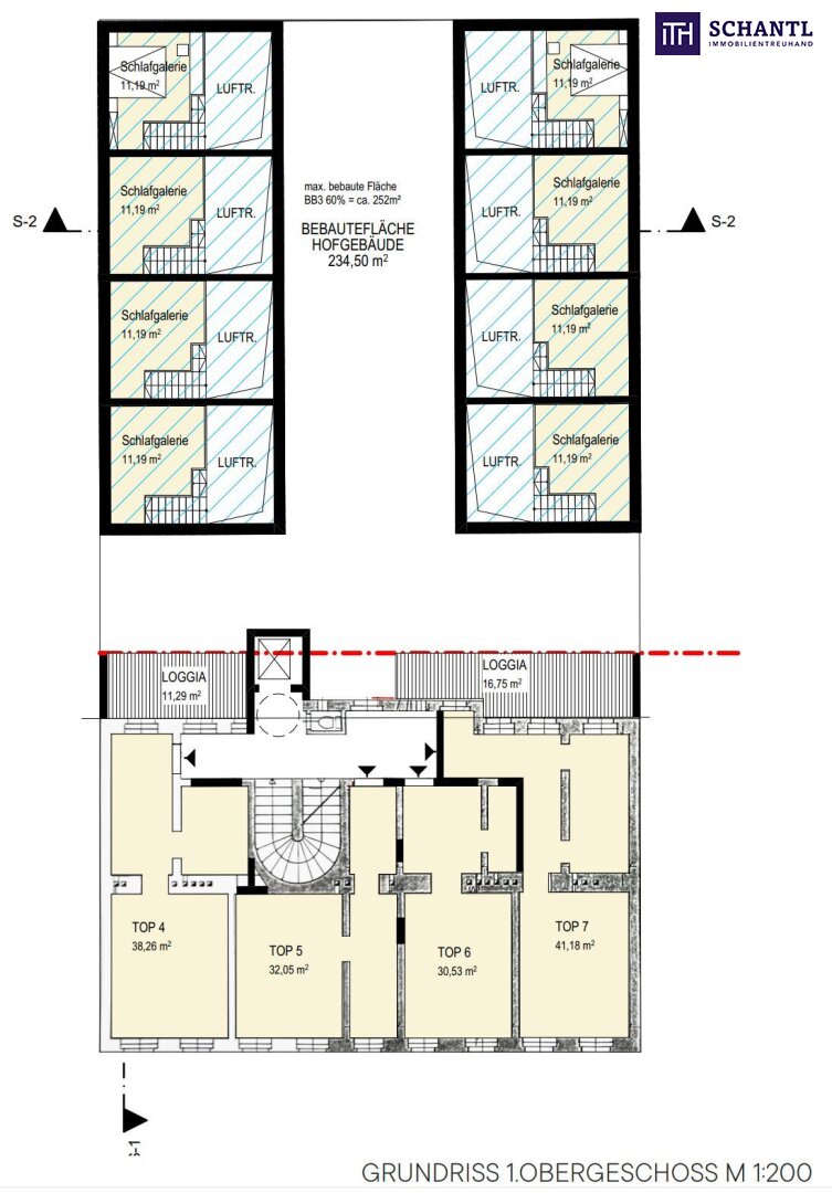
Dieses bestandsfreie Zinshaus bietet viele Möglichkeiten! Es gibt aktuell eine Studie für einen Bestandsumbau und einen DG-Ausbau für eine gewerbliche Vermietung! Optimal geplante, kompakte Einheiten, kleine Balkone/Loggien/Terrassen und Gärten sowie eine perfekte Infrastruktur runden das perfekte Angebot ab.
Facts:
+ Grundstücksfläche ca. 680m², davon ca. 510m² bebaute Fläche
+ Bestand Straßentrakt + Hofgebäude aktuell: ca. 742m²
+ Straßentrakt Bestand: 8 Einheiten (7 Wohnungen + 1 Geschäftslokal)
+ Ausbau: ca. 405 m²: 6 Wohnungen mit Flächen von 40 bis 90 m², alle mit privaten Freiflächen
+ Hoftrakt: ca. 312 m²: 4 neue Wohneinheiten mit Flächen von 38 bis 106 m² und privaten Freiräumen sowie Allgemeinflächen
+ Geplant: 18 Einheiten
+ Flächenwidmung: GB Gemischtes Baugebiet Bauklasse 3, geschlossene Bauweise, max. Trakttiefe 14m,
Kaufpreis: € 2.990.000.-
Worauf warten Sie noch? Wir beraten Sie gerne!
www.schantl-ith.at
Wir weisen darauf hin, dass zwischen dem Vermittler und dem zu vermittelnden Dritten ein familiäres oder wirtschaftliches Naheverhältnis besteht.
Der Vermittler ist als Doppelmakler tätig.
Infrastruktur / Entfernungen
Gesundheit
Arzt <250m
Apotheke <250m
Klinik <250m
Krankenhaus <750m
Kinder & Schulen
Schule <250m
Kindergarten <250m
Universität <1.000m
Höhere Schule <1.000m
Nahversorgung
Supermarkt <250m
Bäckerei <250m
Einkaufszentrum <1.250m
Sonstige
Geldautomat <250m
Bank <250m
Post <500m
Polizei <500m
Verkehr
Bus <250m
U-Bahn <250m
Straßenbahn <500m
Bahnhof <250m
Autobahnanschluss <5.250m
Angaben Entfernung Luftlinie / Quelle: OpenStreetMap

Samir Agha-Schantl
Schantl ITH Immobilientreuhand GmbH
samir.agha-schantl@schantl-ith.at