70.93 m² 530.816 € 3.5 Zimmer

NEUBAUWOHNUNG MIT 2 BALKONE

02.03.2026

Objekt Standort

A-1230 Wien

marker Entfernung sowie Fahrtzeit (PKW) zu deinem Standort berechnen
oder
Die Route konnte nicht ermittelt werden

Allgemeine Informationen

Objekt ID: 56265
  • Vergabeart
    Kauf
  • Kaufpreis
    530.816 €
  • Wohnfläche
    70.93 m²
  • Zimmer
    3.5
  • Provision
    3% des Kaufpreises zzgl. 20% USt.

Ausstattung

  • Barrierefrei

Freiflächen

  • Balkon

Beschreibung

NEUBAUWOHNUNG MIT 2 BALKONE


Zum Verkauf gelangen 16 topmoderne, schlüsselfertige Wohnungen mit Außenflächen (Garten, Balkon, Terrassen) sowie 1 Gechäftslokal und 9 Tiefgaragen-Stellplätze.


Die ideal aufgeteilten 1 bis 4 Zimmer Wohnungen können auch als Anlegerwohnungen zum Nettopreis (auf Anfrage) erworben werden.


Ausgestattet mit moderner und hochwertiger Technik sowie zeitlosem Design bieten sie außergewöhnlichen Wohnkomfort.


Die Wohnungen sind vorraussichtlich ab dem 4. Quartal 2024 bezugsfertig.


Highlights:



  • Ziegelmassiv Bauweise

  • Dämmung für niedrigen Heizbedarf

  • Luft-Wasser-Wärmepumpe mit PV-Unterstützung für optimalen Energieverbrauch

  • Dielen-Parkettboden

  • Fussbodenheizung

  • 3-Fach Isolierverglasung Fenster inkl. UV-Schutz

  • Vorbereitung für Kimaanlagen (Split-Geräte) in den Wohnungen

  • E-Ladestation für jeden Garagenplatz

  • Abstellraum für Kinderwagen/Fahrrad

  • Lift

  • Keller


Sollten Sie an diesem Objekt Interesse haben und einen Besichtigungstermin wünschen oder sonstige Fragen haben, so ersuchen wir Sie, sich mit uns in Verbindung zu setzen.


Top 1: Geschäftslokal 28m³


Top 2: Gartenwohnung 37m²


Top 4: 71m² + 2 Balkone


Top 5: 73m² + 2 Balkone


Top 6: 39m²


Top 7: 38m²


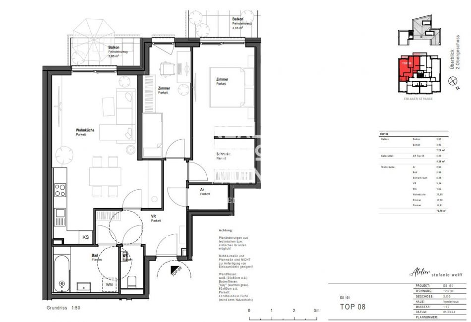
Top 8: 73m² + 2 Balkone


Top 9: 73m² + 2 Balkone


Top 11: 39m²


Top 12: 85m² Dachgeschoss + Terrasse


Top 13: 115m² Dachgeschoss + Terrasse


Top 16: 52m² Stadthaus + Garten


Top 18: 88m² Stadthaus + Dachterrasse

Der Verkaufspreis für Anleger beträgt 431.800€ netto.


Infrastruktur / Entfernungen

Gesundheit
Arzt <500m
Apotheke <500m
Klinik <2.000m
Krankenhaus <2.000m
Kinder & Schulen
Schule <1.000m
Kindergarten <500m
Universität <5.000m
Höhere Schule <4.500m
Nahversorgung
Supermarkt <500m
Bäckerei <1.500m
Einkaufszentrum <1.000m
Sonstige
Geldautomat <500m
Bank <1.500m
Post <1.500m
Polizei <1.500m
Verkehr
Bus <500m
U-Bahn <1.000m
Straßenbahn <3.000m
Bahnhof <500m
Autobahnanschluss <1.000m
Angaben Entfernung Luftlinie / Quelle: OpenStreetMap

Agent Name

Philipp Stummer

Real Immo Wien Immobilientreuhand - Inh. Gerald Frank

stummer@realimmo.wien

Anbieter


Anfragen

Ergebnisse werden geladen ...