85.5 m² 799.000 € 3 Zimmer

VERKAUFSSTART - PERFEKTES REFUGIUM MIT FERNBLICK IN TOPLAGE

07.04.2026

Objekt Standort

A-1170 Wien

marker Entfernung sowie Fahrtzeit (PKW) zu deinem Standort berechnen
oder
Die Route konnte nicht ermittelt werden

Allgemeine Informationen

Objekt ID: 6252
  • Vergabeart
    Kauf
  • Kaufpreis
    799.000 €
  • Wohnfläche
    85.5 m²
  • Zimmer
    3
  • Provision
    3% des Kaufpreises zzgl. 20% USt.

Ausstattung

  • Klimatisiert
  • Fahrstuhl
  • Barrierefrei
  • Rolladen
  • Garage
  • Abstellraum

Freiflächen

  • Terrasse

Beschreibung

VERKAUFSSTART - PERFEKTES REFUGIUM MIT FERNBLICK IN TOPLAGE

EXKLUSIVES WOHNEN MIT WEITBLICK UND MEHRWERT

Am Rande von Dornbach, dem exklusiven und charmanten Stadtteil am westlichen Stadtrand von Wien, steht ein einzigartiges Neubauprojekt kurz vor der Fertigstellung. Genießen Sie eine urbane Oase mit perfekter Infrastruktur und Verkehrsanbindung und die Nähe zu den schönsten Grünoasen Wiens mit all seinen Freizeitmöglichkeiten. Die „SANDLEITEN – Signature Homes“ liegen in unmittelbarer Nähe zum wunderschönen Kongresspark und verbinden energieeffiziente Bauweise, modernes Design, exklusive Ausstattung und durchdachte Raumkonzepte mit höchster Wohnqualität zu einem harmonischen Gesamtbild.

 

WOHNVIELFALT MIT FREIRAUM FÜR JEDES LEBENSKONZEPT

Insgesamt entstehen 29 hochwertige Eigentumswohnungen mit großzügigen Freiflächen von bis zu 80 m², sowie ein kleines Geschäftslokal. Die den oberen Geschoße begeistern mit einem beeindrucken Fernblick. 

Die Bandbreite der Wohnungen reicht von kompakten 2-Zimmerr-Einheiten ab ca. 45 m² bis hin zu großzügigen 5-Zimmer-Familienwohnungen mit bis zu 130 m² Wohnfläche – ein durchdachtes Angebot für Singles, Paare und Familien gleichermaßen.

Jeder Wohnung ist ein eigener Einlagerungsraum zugeordnet. Für zusätzlichen Komfort stehen den Bewohnern ein Fahrradraum, ein Kinderwagenabstellraum sowie ein Kleinkinderspielplatz zur gemeinschaftlichen Nutzung zur Verfügung.

Die Kaufpreise beginnen bei EUR 349.000 für eine 2-Zimmer-Wohnung und reichen bis EUR 1.633.000 für das exklusive Dachgeschoss-Penthouse.

 

13 Tiefgaragenstellplätze im Haus – mit E-Ladevorbereitung 

Bei Bedarf kann ein Pkw-Stellplatz in der hauseigenen Tiefgarage zum Kaufpreis von EUR 45.000 erworben werden.

Insgesamt stehen 13 Stellplätze zur Verfügung. Sämtliche Stellplätze sind bereits für die Installation einer E-Ladestation vorbereitet.

 

ENERGIEEFFIZIENTE BAUWEISE & HOCHWERTIGE AUSSTATTUNG - DIE FAKTEN ÜBERZEUGEN


Tiefgarage mit modernen E-Ladestationen für nachhaltige Mobilität
Fußbodenheizung und Warmwasseraufbereitung mit energieeffizienter Luft-Wasser-Wärmepumpe.
Photovoltaikanlage, die den allgemeinen Stromverbrauch umweltfreundlich deckt
Vorbereitung für Klimaanlage, die selbst an heißen Tagen ein angenehmes Raumklima schafft
Großzügige und bodentiefe Fensterfronten für lichtdurchflutete und einzigartige Räume
3-fach verglaste Wärmeschutzfenster mit Aludeckschale in bronze– maximale Energieeffizienz und langlebige Qualität
Elektrische, außenliegende Raffstores in bronze und solargesteuerte Außenbeschattung bei Dachflächenfenstern
Sicherheitstüren der Klasse WK III - reduziert Risiko und Versicherungskosten
Videotürsprechanlage mit App-Steuerung
exklusive Innentüren – flächenbündig mit Holzzargen - Klimaklasse A, und einer Höhe von 2,20 m 
hochwertiger Mehrschicht Markenparkett „Landhausdiele“ in Eiche 
hochwertige und stilvolle Sanitärausstattung, die sich deutlich vom Standard abhebt
WC-System von Fa. Tece - d.h. vorbereitet für WC-Dusche als Alternative zu Bidet uvm.
Terrassengeländer aus Echtglas mit Edelstahlprofilen
Innenwände mit doppelten Gipskartonplatten für bessere Geräuschdämmung und Stabilität
Video-Gegensprechanlage


 

ALLES AUS EINER HAND - FÜR MEHR QUALITÄT, FLEXIBILITÄT UND SICHERHEIT

Dem Bauträger ist es ein Anliegen, sich deutlich von allen anderen Anbietern zu unterscheiden und Ihnen das Beste zu bieten. Hier vereinen sich die höchsten Ansprüche an Qualität, Design und Funktionalität mit nachhaltiger und energieeffizienter Bauweise. Die Referenzprojekte sprechen für sich.

Durch die Integration der Bauleistung in das eigene Unternehmen bestehen ein hohes Eigeninteresse an einer mängelfreien und termingerechten Umsetzung und viele weitere Vorteile für die Kunden:


Mehrwert durch höhere Ausstattungsqualität zu konkurrenzfähigen Preisen
Qualitätssicherung durch kontinuierlicher Bauüberwachung
Mehr Klarheit bei Verantwortlichkeit und Haftung
Mehr Flexibilität und einen Ansprechpartner bei allfälligen Sonderwünschen (nur noch kurze Zeit möglich!)
Sichtbare Expertise - Referenzobjekte des Bauträgers ermöglichen auch die Prüfung der Qualität der tatsächlichen Bauausführung bei früheren Projekten


 EINZIGARTIGE 3-ZIMMER-WOHNUNG MIT SÜDSEITIGER TERRASSE UND FERNBLICK!

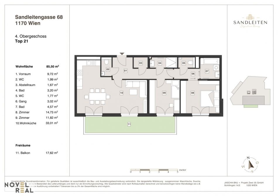
Top 21 - 4. Obergeschoß

Die Wohnung überzeugt nicht nur mit seiner hervorragenden Raumaufteilung, viel Stauraum, sowie mit zwei Bädern und zwei separaten Toiletten, sondern auch durch die große Terrasse mit Fernblick bis zu den Wiener Bergen.

Der weitläufige Wohn-, Koch- und Essbereich bildet das kommunikative Zentrum der Einheit und öffnet sich, ebenso wie eines der Schlafzimmer, direkt zur südseitigen Terrasse, die den Wohnraum ins Freie erweitert und für eine hohe Wohnqualität sorgt.

 

Das perfekte Refugium für anspruchsvolle Stadtbewohner mit Weitblick!

Raumaufteilung im Überblick:


Wohnküche: Großzügiger, offen gestalteter Wohnbereich mit Zugang zur Terrasse
Großzügiges Schlafzimmer mit viel Stauraum
Perfektes Zimmer für Kinder, Gäste oder Office mit Zugang zur Terrasse
Zwei Badezimmer mit Walk In-Dusche bzw. Badewanne
Zwei separate Toiletten mit Handwaschbecken
Abstellraum 
Zentraler Vorraum mit Platz für Kleiderschrank und Kommode
Südseitige Terrasse mit Fernblick bis zu den Wiener Bergen


 

IHRE ANLAGE MIT ZUKUNFT

Dieses Neubauprojekt kombiniert hochwertige Ausstattung und Bauweise, nachhaltige Planung und eine hervorragende Infrastruktur und Verkehrsanbindung in einer urbanen und begehrten Lage im grünen Westen von Wien – in fußläufiger Entfernung zu zwei namhaften Krankenhäusern und renommierten Unternehmen.

Dies schafft ideale Voraussetzungen für eine langfristig erfolgreiche Vermietung und stabile Wertentwicklung.

 

URBANES WOHNEN AM RANDE VON DORNBACH - EINE LAGE DIE ÜBERZEUGT

Die „SANDLEITEN – Signature Homes“ liegen in unmittelbarer Nähe zum wunderschönen Kongresspark am Rand von Dornbach, einer der begehrten und exklusiven Lagen im Westen von Wien.

Diese Lage ist nicht nur ein Paradies für Erholungssuchende, Sportler und Familien, sondern bietet auch eine unvergleichbare Infrastruktur und Verkehrsanbindung.

Hier finden Sie in fußläufiger Entfernung große Einkaufsmärkte, ebenso wie einen charmanten Grünmarkt und kleine Fachgeschäfte und eine Vielfalt von Gastronomiebetrieben – von charmanten Heurigen, guten Restaurants bis zu Fast Food Lokalen.

Unmittelbar vor der Haustüre oder in fußläufiger Entfernung haben Sie ein so breites und einzigartiges Angebot an öffentlichen Verkehrsmitteln, die Sie nicht nur direkt in die Innenstadt bringen, sondern quer durch ganz Wien und in alle Himmelsrichtungen – dies ist einzigartig und der Grund, weshalb die U-Bahnlinie U5 genau dorthin gebaut wird.

Nach Ihrer Anfrage übermitteln wir Ihnen gerne ein detailliertes Lage-Exposé, aber hier schon mal vorweg ein Einblick in diese unbeschreiblich tolle Lage:

Öffentliche Verkehrsmittel in fußläufiger Entfernung

Straßenbahnlinie 2: Dornbach – Josefstadt (U6) – Rathaus bis Schwedenplatz (U2, U3, U4) – Taborstraße - Brigittenau

Straßenbahnlinie 10: Dornbach – Ottakring (U3) – Hietzing – Unter St. Veit

Straßenbahnlinie 43: Neuwaldegg – Alser Straße (U6) – Josefstadt (5, 13A) – Schottentor (U2)

Buslinie 10A: Heiligenstadt (U4/S) – Döbling – Gersthof – Schmelz – Schönbrunn - Meidling

Schnellbahn S45: Handelskai – Heiligenstadt (U4/S) – Döbling – Gersthof – bis Hütteldorf Bhf.

Die U-Bahnlinie U3 erreichen Sie innerhalb von 20 Gehminuten oder 13 Minuten mit der Straßenbahn.

Einkaufsparadies in fußläufiger Entfernung

Interspar, Hofer, Lidl, Billa, Spar Gourmet, Bipa, Baumarkt, Apotheken, Trafiken, Bäcker, Drogerie, Blumen, Fleischer, sowie Post und Bank. Nach einem kleinen Spaziergang erreichen Sie auch den Ottakringer Bahnhof Markt bei der Station der Linie U3.

Freizeitangebot für fast alle Bedürfnisse

Die Sport & Fun Halle Ottakring (Basketball, Beachvolleyball, Badminton, Tischtennis uvm) liegt fast vor der Haustüre, ebenso wie das Kongressbad und der weitläufige Kongresspark.

Weiters finden Sie im näheren Umfeld Fitnessstudios, das berühmte Sportzentrum Marswiese (Tennis, Klettern, Teamsport), das Schafbergbad, sowie die den Pötzleinsdorfer Schloßpark und den Schwarzenbergpark. Sie können aber auch einfach mal einen kleinen Spaziergang zum Schloss Wilhelminenberg machen.

Schulen und Kindergärten

In fußläufiger Entfernung finden Sie zahlreiche private und städtische Kindergärten, ebenso wie Volksschulen, aber auch die HTL Ottakring.

Medizinische Versorgung

Krankenhaus Göttlicher Heiland, Klinikum Ottakring und zahlreiche Ärzte und Therapeuten liegen ebenfalls in fußläufiger Entfernung.

 

 

Aus rechtlichen Gründen bitten wir um Verständnis, dass wir nur Anfragen per Mail beantworten, wenn Sie uns Ihren vollständigen Namen samt Mailadresse und Mobilnummer bekanntgeben.

Alle Angaben basieren alleinig auf Informationen, die uns von unserem Auftraggeber übermittelt wurden. Trotz aller Sorgfalt können wir für die Richtigkeit, Vollständigkeit und Aktualität dieser Angaben keine Gewähr übernehmen. Jegliche Weitergabe der übermittelten Daten an Dritte ist nicht gestattet. Der Maklervertrag kommt durch schriftliche Vereinbarung oder Inanspruchnahme unserer Maklertätigkeit zustande. Der Makler kann als Doppelmakler tätig werden. Sollte das von uns nachgewiesene Objekt bereits bekannt sein, teilen sie uns dies bitte unverzüglich mit.

Die Maklergebühr ist ausschließlich bei Zustandekommen eines gültigen Rechtsgeschäfts fällig. Es wird ausdrücklich auf die Nebenkostenübersicht hingewiesen. Bei den Visualisierungen und Abbildungen der Immobilie (insbesondere von Inneneinrichtungen) kann es sich um Symbolfotos bzw. fototechnisch optimierte Fotos handeln. Hiermit weisen wir auf das Bestehen eines familiären und/oder wirtschaftlichen Naheverhältnisses zum Vermieter/Verkäufer hin. 

 

 
Wir weisen darauf hin, dass zwischen dem Vermittler und dem zu vermittelnden Dritten ein familiäres oder wirtschaftliches Naheverhältnis besteht.
Der Vermittler ist als Doppelmakler tätig.Infrastruktur / EntfernungenGesundheitArzt <500mApotheke <500mKlinik <1.500mKrankenhaus <1.000mKinder & SchulenSchule <500mKindergarten <500mUniversität <2.000mHöhere Schule <2.000mNahversorgungSupermarkt <500mBäckerei <500mEinkaufszentrum <500mSonstigeGeldautomat <500mBank <500mPost <500mPolizei <1.000mVerkehrBus <500mU-Bahn <1.000mStraßenbahn <500mBahnhof <1.000mAutobahnanschluss <5.000mAngaben Entfernung Luftlinie / Quelle: OpenStreetMap
Agent Name

Vassilena Valkova

Novel Real Immobilien GmbH

vv@novel-real.at

Energie/Heizung

Befeuerung:

HWB (kWh/m²/Jahr): 24.6

HWB Energieklasse: A

fGEE: 0.72

fGEE Energieklasse: A

Anbieter

Agent Name

Vassilena Valkova

+43 650 5870011 vv@novel-real.at

Anfragen

Ergebnisse werden geladen ...